
Predaj domu 6+1 • 187 m² bez realitkyBergweg 92, , Bádensko-Wurttembersko
Bergweg 92, , Bádensko-WurttemberskoMHD 7minút pešo • Parkovanie • GarážTento výnimočný dom zaujme s pozemkovou plochou 287 m² a priestranným obytným priestorom cca 187 m². Na pozemku sa zmestia až tri vozidlá.
Poloha, veľkosť a vybavenie v tejto kombinácii sú zriedkavé. Dom pôsobí premyslene usporiadanými priestormi, kvalitným interiérom, vysokými stropmi aj očarujúcim výhľadom do zelene. Veľká juhozápadná terasa a záhrada vytvárajú oázu pohody s dostatkom priestoru na rozvoj.
Modernizácia a energetická efektivita na vysokej úrovni:
Dom bol postavený v roku 2003 a v roku 2021 prešiel komplexnou modernizáciou – medzi iným boli kúpeľne, podlahy, kuchyňa, dvere a spálňa kvalitne obnovené a na hornom poschodí bola inštalovaná klimatizácia. Dom navyše disponuje moderným fotovoltaickým systémom s 19 solárnymi panelmi, ktorý prispieva k znižovaniu nákladov na energiu. Podlahové kúrenie zabezpečuje príjemné teplo v kúpeľniach a obytných priestoroch, pričom elektrické rolety na všetkých oknách ponúkajú komfort, bezpečnosť a optimálnu reguláciu svetla v celom dome. Plynové kúrenie bolo v roku 2023 úplne vymenené za podstatne efektívnejší systém.
Na hlavných obytných poschodiach (prízemie a prvé poschodie) je položená pekná dubová parketa a svetlý prírodný vinylový podlahový kryt. Zakázková vstavaná kuchyňa s kamennou pracovnou doskou a high-end spotrebičmi nespraví žiadne želania. Útulný krb v obývacej izbe dokonale dopĺňa príjemnú atmosféru domova.
S celkovo 6 izbami ponúka dom flexibilné možnosti usporiadania. Svetlé obývacie priestory s otvoreným krbom a priamym vstupom na terasu tvoria srdce domu. Záhrada je ideálna pre rodiny s deťmi alebo na vytvorenie súkromnej oddychovej zóny.
Na hornom poschodí vás čaká veľká spálňa, detská izba a priestranná kúpeľňa s bezbariérovou sklenenou sprchou, dvojitým umývadlom a kvalitnými sanitárnymi zariadeniami. Obe miestnosti sú vybavené modernou klimatizáciou (z roku 2021) a vinylovou podlahou.
V prízemí sa nachádzajú ďalšie dve univerzálne využiteľné miestnosti (napr. kancelária, hobby izba), druhá kúpeľňa a praktická práčovňa/technická miestnosť. Samostatná pivničná skladovacia miestnosť rozširuje ponuku priestoru.
Záhrada orientovaná na juhozápad ponúka veľa slnka, pokoj a malebný výhľad do zelene. Či už ide o záhradný nábytok, detské ihriská, pestovanie zeleniny alebo wellness oázu – tento vonkajší priestor určite nesklame.
Prízemie:
- 66,43 m² obytného priestoru
- Veľká garáž s dodatočnou skladovacou miestnosťou
- Práčovňa/technická miestnosť
- Hobby izba (kancelária/izba pre hostí)
- Spálňa
- Kúpeľňa s denným osvetlením so sprchou, bidetom, WC a podlahovým kúrením
Prvé poschodie:
- 75,75 m² obytného priestoru
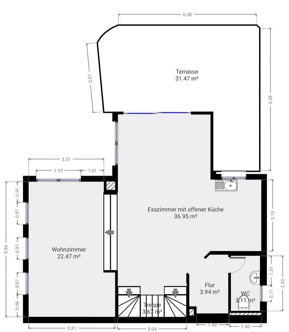
- Obytná časť s krbom na drevo
- Jedálenská časť
- Otvorená moderná kuchyňa
- Spiatočná komora
- Hosťovská toaleta
- Juhozápadná terasa s markízou a záhradou
Podkrovie:
- 45,8 m² obytného priestoru
- 2 detské izby
- Moderné kúpeľne
- Prístup na odkrytý strop/pospacie priestory
Vybavenie
- Stavba: Masívna
- Energetická trieda: B, platná do roku 2031
- Plynové centrálne kúrenie 2023
- Solárny systém
- Klimatizácia s konvertorovou technológiou z roku 2021
- Elektrické rolety
- Parketa z prírodného dreva na prvom poschodí
- Vinylová podlaha v prízemí a na podkroví
- Moderná kuchyňa s vinotiekou
- Vzájomná komunikácia s kamerou a otváračom dverí na odtlačky prstov od spoločnosti Busch Jäger
- Podlahové kúrenie v obývacej a jedálenskej časti a v kúpeľniach
- Sieťové káblovanie a WLAN vo všetkých častiach domu
- Zberná nádrž (cisterna)
- Záhradná chata
- Parkovacie miesto: veľká garáž – 8,5 m hĺbka a 2,8 m výška so vstupom do domu + 2 vonkajšie parkovacie miesta
- Elektrická garážová brána so vstupom do domu
- Kvalitné proti hmyzu siete v obytných a spálňových priestoroch
- Sieťové káblovanie s CAT7
Aidlingen ponúka atraktívnu kombináciu prírodného, pokojného prostredia a zároveň výbornú infraštruktúru. Rodiny majú výhodu z širokej ponuky škôl a materských škôl, zatiaľ čo dochádzajúci ocenia rýchle spojenie so štutgartským regiónom. To robí z tohto miesta ideálny domov pre ľudí, ktorí si cenia kvalitu života, komunitu a výbornú dopravnú dostupnosť.
Deufringen, časť Aidlingenu, sa nachádza približne 10 km západne od Böblingenu, zasadený v malebnom Heckengäu medzi strednými horami Čierny les a Švédska Alb. Okolitá krajina je charakteristická prírodnými chránenými a rekreačnými oblasťami.
Dopravné spojenie je vynikajúce: cez blízku diaľnicu A81, dostupnú cez prístupové cesty Ehningen alebo Gärtringen, sa rýchlo dostanete smerom do Štutgartu alebo na juh. Okrem toho existujú pravidelné autobusové linky, ktoré priamo spájajú Aidlingen s Böblingenom, Sindelfingenom a Calwom. Osobitne praktická je linka k stanici Ehningen, odkiaľ je možné pohodlne cestovať do Štutgartu pomocou S-Bahn (S1). Rovnako sú aj železničné stanice v Ehningen a Weil der Stadt dostupné autom za pár minút.
Pre rodiny ponúka Aidlingen vynikajúce vzdelávacie príležitosti. Okrem centrálne umiestnenej Buchhalden-Grundschule sa tu nachádza aj škola Schallenbergschule v Deufringen/Dachtel, ktorá osloví svojím športovo a pohybovo orientovaným konceptom a disponuje vlastnou telocvičňou a bazénom pre výučbu plávania.
Ďalej, moderná Sonnenberg-Werkrealschule kladie veľký dôraz na praktickú, profesijnú prípravu.
Aj starostlivosť o najmenších je v Aidlingene výborne zorganizovaná. Viaceré komunálne a súkromné materské školy, napríklad Kindergarten Sonnenschein, zaisťujú láskavú a profesionálnu starostlivosť.
Parametre nehnuteľnosti
| Vek | Nad 50 rokov |
|---|---|
| Stav | Po rekonštrukcii |
| Číslo inzerátu | 1001655 |
| Úžitková plocha | 187 m² |
| Celkové poschodia | 3 |
| Dostupné od | 10. 4. 2026 |
|---|---|
| Dispozícia | 6+1 |
| PENB | B - Veľmi úsporné |
| Plocha pozemku | 287 m² |
| Cena za jednotku | 4 465,24 € / m2 |
Čo táto nehnuteľnosť ponúka?
| Pivnica | |
| Parkovanie | |
| Terasa |
| Garáž | |
| MHD 7 minút pešo |
V okolí nehnuteľnosti nájdete
Stále hľadáte to pravé?
Nastavte si strážneho psa. Ponuky vybrané na mieru dostanete súhrnne 1× denne e-mailom. S Premium profilom máte po ruke rovno 5 strážcov a keď sa niečo objaví, informujú vás obratom.





















