
Prenájom bytu 1+1 • 37 m² bez realitkyZenklova, Praha - Kobylisy
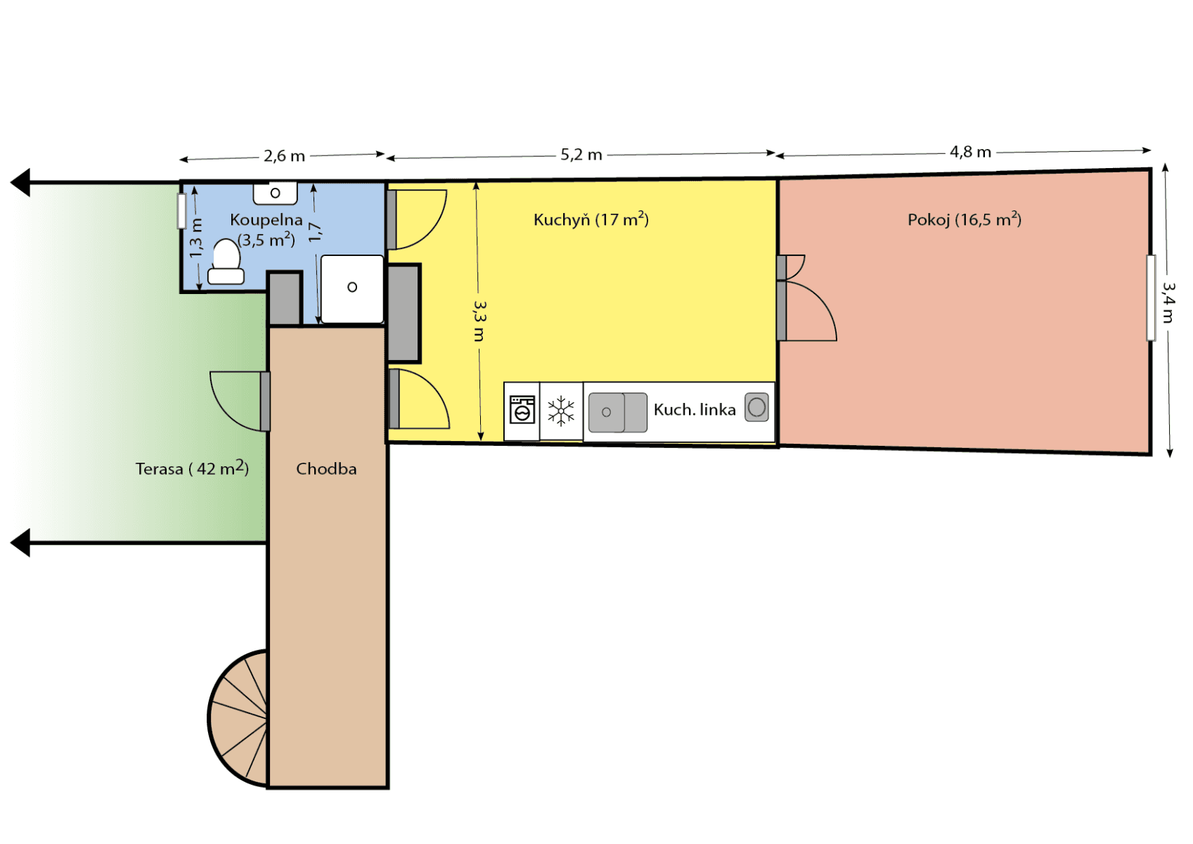
Nabízím k pronájmu útulný a kompletně zařízený byt o dispozici 1+1 a výměře 37 m², který se nachází v 1. patře rodinného domu. Byt tvoří samostatnou bytovou jednotku a nabízí příjemné a klidné bydlení s dostatkem soukromí.
Byt je plně vybavený – k dispozici je kuchyňská linka se spotřebiči, lednice, pračka a koupelna se sprchovým koutem a toaletou. Díky praktickému uspořádání je byt vhodný pro jednotlivce nebo pár, kteří hledají pohodlné bydlení na dobře dostupném místě.
Velkou výhodou je výborná lokalita nedaleko stanice metra Kobylisy. V okolí se nachází veškerá občanská vybavenost, obchody, plavecký bazén i parky pro volnočasové aktivity a relaxaci.
Pouze česky mluvící nájemníci, nekuřáci.
Parametre nehnuteľnosti
| Dostupné od | 15. 3. 2026 |
|---|---|
| Konštrukcia budovy | Tehla |
| Vybavené | Vybavené |
| Číslo inzerátu | 1001553 |
| Úžitková plocha | 37 m² |
| Stav | Dobrý |
|---|---|
| Dispozícia | 1+1 |
| Poschodie | Prízemie |
| Umiestnenie | Centrum mesta |
| Cena za jednotku | 405 CZK / m2 |
V okolí nehnuteľnosti nájdete
Stále hľadáte to pravé?
Nastavte si strážneho psa. Ponuky vybrané na mieru dostanete súhrnne 1× denne e-mailom. S Premium profilom máte po ruke rovno 5 strážcov a keď sa niečo objaví, informujú vás obratom.
















