
Predaj domu • 277 m² bez realitkyButzweiler Str. 52, , Porýnie-Falcko
Tento priestranný, masívne postavený dom bol postavený približne v roku 1976 a v priebehu rokov bol neustále modernizovaný. Vďaka početným rekonštrukciám vzniká fiktívny rok výstavby okolo 1997. Nehnuteľnosť sa nachádza v pokojnej a príjemnej obytné časti Kordelu a zaujme premysleným rozložením miestností a udržiavaným celkovým stavom.
Dom ponúka rôzne možnosti využitia:
Ideálne sa hodí ako priestranný rodinný dom, viacgeneračný dom alebo ako dom s príslušenstvom (samostatným bytom). S malými úpravami je túto nehnuteľnosť možné bez problémov využiť aj ako trojrodinný dom.
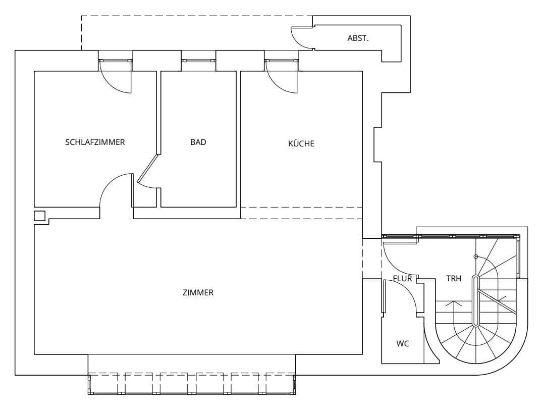
Na prízemí sa nachádza priestranná a svetlá obývacia izba so spojenou kuchyňou. Okrem toho tu je ďalšia izba, ktorá sa ideálne hodí ako izba pre hostí alebo kancelária, s priamym prístupom do kúpeľne.
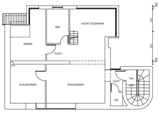
Prvé poschodie disponuje dvoma spálňami, kúpeľňou a ďalšou veľkou obývacou izbou so spojenou kuchyňou.
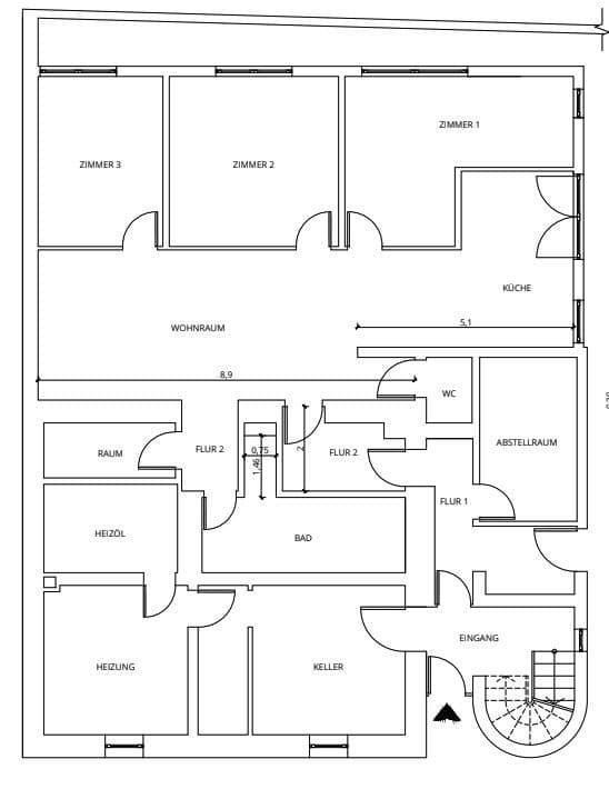
Na podkroví sa nachádza štúdio izba a kompaktná kúpeľňa, čím vzniká ďalší obytný priestor s rôznymi možnosťami využitia.
Dom je úplne podzemný a ponúka niekoľko pivničných miestností s dostatkom miesta na uskladnenie. V podzemnom podlaží sa navyše nachádzajú tri spálne, veľká obývacia izba s integrovanou kuchyňou a kúpeľňa s toaletu pre hostí.
Z prízemia máte priamy prístup na priestrannú terasu, ktorá pozýva na oddych a setrvávanie.
Energetický preukaz je momentálne vyhotovovaný.
Dopyty od maklérov nie sú výslovne žiadané a nebudú zodpovedané.
Parametre nehnuteľnosti
| Vek | Nad 50 rokov |
|---|---|
| Stav | Veľmi dobrý |
| Úžitková plocha | 277 m² |
| Celkové poschodia | 3 |
| Dostupné od | 15. 3. 2026 |
|---|---|
| Číslo inzerátu | 1001466 |
| Plocha pozemku | 803 m² |
| Cena za jednotku | 899 € / m2 |
Čo táto nehnuteľnosť ponúka?
| Pivnica | |
| Parkovanie | |
| Terasa |
| Garáž | |
| MHD 5 minút pešo |
V okolí nehnuteľnosti nájdete
Stále hľadáte to pravé?
Nastavte si strážneho psa. Ponuky vybrané na mieru dostanete súhrnne 1× denne e-mailom. S Premium profilom máte po ruke rovno 5 strážcov a keď sa niečo objaví, informujú vás obratom.
































