Prenájom domu 5+1 • 133 m² bez realitkyWolfsburg Wolfsburg Niedersachsen 38440
Wolfsburg Wolfsburg Niedersachsen 38440MHD 1 minúta pešo • ParkovanieModerné zrekonštruované smart‑energy rodinné bývanie vo Wolfsburgu‑Mitte s rozľahlou záhradou, fotovoltaickou elektrárňou a infraštruktúrou pre home office. 25 kW fotovoltaická inštalácia s batériovým úložiskom, Wallbox, gigabitová sieť vo všetkých izbách a kompletná energetická rekonštrukcia. Priestranné rozloženie s podkrovným štúdiom, terasou a 64 m² pivnicou. Ideálne pre rodiny alebo profesionálov s nárokom na komfort, techniku a udržateľnosť.
Prízemie: obývacia izba, moderná kuchyňa, hostinské WC (60 m²)
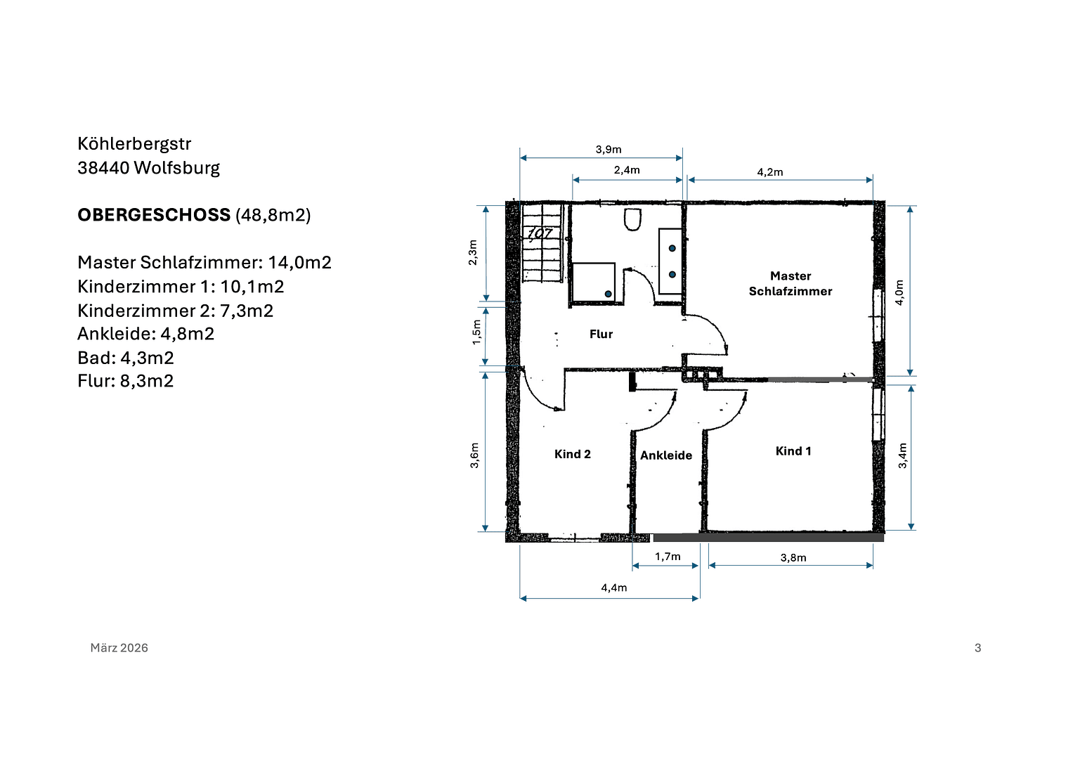
Poschodie: 3 spálne a moderná kúpeľňa (48,8 m²)
Podkrovné štúdio: klimatizovaný priestor – ideálny pre home office (18 m²)
Pivnica: miestnosť pre hobby, práčovňa, bicyklová miestnosť a technická miestnosť (64 m²)
Nehnuteľnosť sa nachádza v centrálnej a zároveň pokojnej lokalite vo Wolfsburgu na Köhlerbergu. Volkswagen, centrum, školy, materské školy a nákupné možnosti sú rýchlo dostupné. Lokalita ponúka ideálnu kombináciu mestského života a blízkosti k prírode.
Tento vysoko kvalitný dvojdom so zrekonštruovanou polovičnou nehnuteľnosťou v roku 2024 spája moderný obytný komfort s udržateľným zásobením energiou a mimoriadne kvalitnou technickou infraštruktúrou. Na približne 591 m² veľkom pozemku s okolo 133 m² obytného priestoru ponúka dom moderné bývanie pre rodiny alebo páry s požiadavkami na energetickú efektívnosť, komfort a centrálnu polohu.
Priestranná záhrada poskytuje veľa súkromia a je úplne oplotená. Veľká terasa zvádza k oddychovým chvíľam vonku. Garáž pre náradie poskytuje dodatočný úložný priestor pre bicykle a záhradné náradie.
• Kvalitné vybavenie v celom dome
• 25 kW fotovoltaická inštalácia s 10 kWh batériovým úložiskom
• Model prenájomnej energie s 10 % zľavou na miestny tarif elektriny
• 3 parkovacie miesta na pozemku
• 11 kW Wallbox pre elektrické vozidlá
• Gigabitový Ethernetový systém vo všetkých izbách
• Televízne pripojenie vo všetkých izbách
• Klimatizované podkrovné štúdio – ideálne ako home office
• Elektrické rolety na všetkých oknách
• Modernizované kúpeľne s umývadlovým nábytkom
• 2 hostinské WC, v pivnici a v prízemí
• Kvalitná vstavaná kuchyňa so značkovou indukciou, rúrou, umývačkou riadu a mikrovlnnou
• 64 m² kompletne obložená pivnica s miestnosťou pre hobby a bicykle
• Veľká oplotená záhrada s 12 m² zastrešenou sklenou terasou
Výkonná fotovoltaická inštalácia s batériovým úložiskom umožňuje udržateľné zásobovanie energiou a podstatne znižuje náklady na elektrinu. Nájomníci profitujú z energie priamo zo svojej vlastnej strechy za atraktívnych podmienok.
Odber elektriny: cca 82 EUR/mesiac vrátane 7,50 EUR základného poplatku na tarife LSW Individualstromtarif.
Parametre nehnuteľnosti
| Vek | Nad 50 rokov |
|---|---|
| Stav | Po rekonštrukcii |
| Číslo inzerátu | 1001457 |
| Plocha pozemku | 591 m² |
| Cena za jednotku | 16 € / m2 |
| Dostupné od | 1. 6. 2026 |
|---|---|
| Dispozícia | 5+1 |
| Úžitková plocha | 133 m² |
| Celkové poschodia | 4 |
Čo táto nehnuteľnosť ponúka?
| Pivnica | |
| MHD 1 minúta pešo |
| Parkovanie | |
| Terasa |
V okolí nehnuteľnosti nájdete
Stále hľadáte to pravé?
Nastavte si strážneho psa. Ponuky vybrané na mieru dostanete súhrnne 1× denne e-mailom. S Premium profilom máte po ruke rovno 5 strážcov a keď sa niečo objaví, informujú vás obratom.
































