
Prenájom bytu 3+1 • 66 m² bez realitkyUhlandstraße 1, , Sasko
Die frisch renovierte 3-Zimmer-Wohnung befindet sich in einem gepflegten Mehrfamilienhaus und ist ab sofort bezugsfrei. In der gesamten Wohnung wurde ein hochwertiger Designboden mit integrierter Trittschalldämmung verlegt. Die Wände sind frisch gespachtelt und sorgen für ein helles, modernes Wohngefühl. Auch das Badezimmer wurde aufgewertet und mit neuen Markenarmaturen sowie einem neuen Waschbecken inklusive Unterschrank ausgestattet. Auf Wunsch kann noch eine passende Einbauküche verbaut werden.
Ein Stellplatz direkt vor dem Haus steht zur Verfügung. Der Zwenkauer See ist nur wenige hundert Meter entfernt und bietet einen hohen Freizeitwert sowie eine attraktive Wohnlage. Die Wohnung liegt in einer ruhigen und gewachsenen Wohnlage von Zwenkau, nur wenige Gehminuten vom Zwenkauer See entfernt. Die Umgebung ist geprägt von viel Grün und einer angenehmen Nachbarschaft mit hoher Lebensqualität. Einkaufsmöglichkeiten, Ärzte und weitere Einrichtungen des täglichen Bedarfs sind schnell erreichbar.
Dank der sehr guten Verkehrsanbindung ist Leipzig je nach Ziel in etwa 20 Minuten erreichbar. Über die neu ausgebaute Bundesstraße sowie die nahegelegene Autobahn besteht eine schnelle und komfortable Verbindung in die Leipziger Innenstadt und das gesamte Stadtgebiet. So lässt sich naturnahes Wohnen ideal mit der Nähe zur Großstadt verbinden.
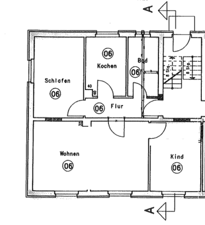
• 3 Zimmer Wohnung mit ca. 65 m² Wohnfläche
• Isolierverglaste Fenster
• Optisch sehr ansprechender neuer Bodenbelag
• Elektrik auf aktuellem technischen Standard
• Geräumige Küche mit Platz zur persönlichen Entfaltung (Auf Wunsch mit EBK)
• Modernes Tageslichtbad mit Fliesen und hochwertigen Markenarmaturen
• Kellerabteil vorhanden
• Stellplatz direkt vor dem Haus
• Hausmeisterdienst und Hausreinigung für zusätzlichen Komfort
Die Vermietung erfolgt von privat, ich freue mich über sympathische und zuverlässige Interessenten, die die hochwertige Wohnung zu schätzen wissen. Für die Bewerbung benötige ich eine aktuelle Schufaauskunft, die letzten drei Lohnnachweise des Zahlungsträgers, oder falls die Familie die Miete übernimmt, eine entsprechende Bestätigung, ggfs, Studiennachweis, Arbeitsvertrag. Zusätzlich wünschen wir eine kurze Beschreibung zur Person und zu den Plänen in den kommenden Jahren.
-----------------------------------------------------------------------
Čerstvo zrekonštruovaný troizbový byt sa nachádza v udržiavanom viacfamilijnom dome a je okamžite k dispozícii. Po celom byte bola položená vysoko kvalitná dizajnová podlaha s integrovanou zvukovou izoláciou proti krokom. Steny sú čerstvo omietnuté, čo zabezpečuje svetlý a moderný pocit bývania. Aj kúpeľňa bola pozdvihnutá a vybavená novými značkovými batériami, ako aj novým umývadlom vrátane skrinky pod ním. Na požiadanie môže byť inštalovaná aj vhodná vstavaná kuchyňa.
Pred domom je k dispozícii parkovacie miesto. Jazero Zwenkauer sa nachádza len niekoľko stoviek metrov vzdialené a ponúka vysokú voľnočasovú hodnotu a atraktívnu lokalitu na bývanie. Byt sa nachádza v tichom a ustálenom obytnom prostredí Zwenkau, len pár minút pešo od jazera Zwenkauer. Okolie je bohaté na zeleň a príjemné susedstvo s vysokou kvalitou života. Obchody, lekári a ďalšie zariadenia pre denné potreby sú ľahko dostupné.
Vďaka výbornému dopravnému spojeniu je Lipsko, v závislosti od cieľa, dosiahnuteľné asi za 20 minút. Prostredníctvom novo rozšírenej štátnej cesty a blízkej diaľnice existuje rýchle a pohodlné spojenie do centra Lipska a celej mestskej oblasti. Tak sa ideálne spája bývanie v prírode s blízkosťou veľkomesta.
• Troizbový byt s približne 65 m² obytného priestoru
• Okná s izolačným dvojsklom
• Vizuálne veľmi atraktívna nová podlaha
• Elektroinštalácia podľa súčasného technického štandardu
• Priestranná kuchyňa s možnosťou osobného prispôsobenia (na požiadanie s vestavnou kuchyňou)
• Moderná kúpeľňa s denným svetlom, dlažbou a kvalitnými značkovými batériami
• K dispozícii je aj pivničný priestor
• Parkovacie miesto priamo pred domom
• Domový majster a upratovacia služba pre dodatočný komfort
Prenájom prebieha súkromne, teším sa na sympatických a spoľahlivých záujemcov, ktorí ocenia tento kvalitný byt. Pre podanie žiadosti požadujem aktuálny výpis zo Schufa, posledné tri platové pásky platcu, alebo ak rodina preberá nájom, príslušné potvrdenie, prípadne študijný doklad alebo pracovnú zmluvu. Navyše prosím o stručný popis osoby a plánov na nasledujúce roky.
Parametre nehnuteľnosti
| Vek | Nad 50 rokov |
|---|---|
| Stav | Po rekonštrukcii |
| Číslo inzerátu | 1000990 |
| Úžitková plocha | 66 m² |
| Dostupné od | 14. 3. 2026 |
|---|---|
| Dispozícia | 3+1 |
| PENB | D - Menej hospodárne |
| Cena za jednotku | 8 € / m2 |
Čo táto nehnuteľnosť ponúka?
| Pivnica | |
| MHD 4 minúty pešo |
| Parkovanie |
V okolí nehnuteľnosti nájdete
Stále hľadáte to pravé?
Nastavte si strážneho psa. Ponuky vybrané na mieru dostanete súhrnne 1× denne e-mailom. S Premium profilom máte po ruke rovno 5 strážcov a keď sa niečo objaví, informujú vás obratom.
















