Predaj domu • 480 m² bez realitkyEgenhofen Weyhern Bayern 82281
Egenhofen Weyhern Bayern 82281MHD 2 minúty pešo • Parkovanie • GarážTu vás čaká niečo výnimočné …
História stretáva modernu:
Celý komplex budov pochádza z roku 1793 a považoval sa za poklad bavorskopánskeho baroka. Dátum výstavby tohto památkového objektu je vyrytý do dobre zachovanej vstupnej dveri. Severný prístav sa realizoval okolo roku 1976. Pôvodná kaštieľová hostina spolu so zjednotenými dvoma prislúchajúcimi obytnými a hospodárskymi budovami sa nachádza priamo oproti kaštieľu Weyhern.
V roku 2006 skončila 400-ročná história kaštieľovej hostiny. Objekt čelil zániku.
V roku 2012 našiel objekt súkromný kupujúci, ktorý ho premenil na obytnú budovu a s najvyšším osobným a technickým úsilím, ako aj s patričnou dávkou kreativity, podľa prísnych nariadení ochrany pamiatok premenil na úžasný obytný dom.
Stavba:
Ide o masívnu múrovú stavbu s krytým rámom postaveným na stolárskej konštrukcii a s doštičkovým pokrytím šikmo usporiadaných dosiek („Biberschwanz“). Objekt s čiastočným podzemným podlažím stojí na obvodovom kompletne izolovanom základe a má dve plnohodnotné nadzemné poschodia a dvojposchodový podkrovný priestor.
Vybavenie / Využitie:
Areál zahŕňa tri murové budovy a niekoľko drevených príbudov.
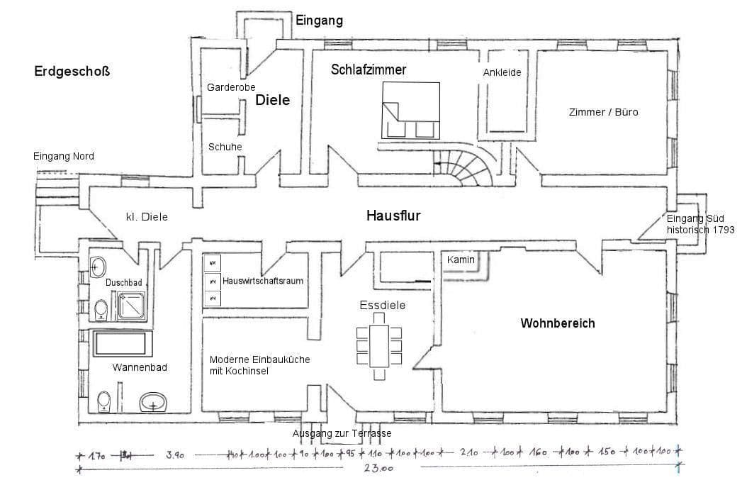
Hlavná budova má samotná rozmery cca 23 m x 13,5 m. Historicky zrekonštruovaná vstupná dvere zostali zachované, avšak nie sú využívané ako vstup. Za nimi sa otvára dlhý chodba s prístupom do izieb a kúpeľní. Historické dvere boli s vkusom zrekonštruované, rovnako ako vnútorný drevený schodisko vedúce na horné poschodie. Pôvodná hostinská miestnosť bola premenená na obývaciu časť s múrovým krbom, rovnako aj krčma, kuchyňa a sklady boli zmenené na jedálenský priestor, domácu izbovňu a otvorenú modernú zabudovanú kuchyňu s ostrovčekom a so všetkými elektrickými spotrebičmi. Bývalé toalety pre hostí boli premenené na priestranné a atraktívne kúpeľne. Premietnutý hlavný vstup sa teraz nachádza na východnej strane s predsieňou a šatníkom.
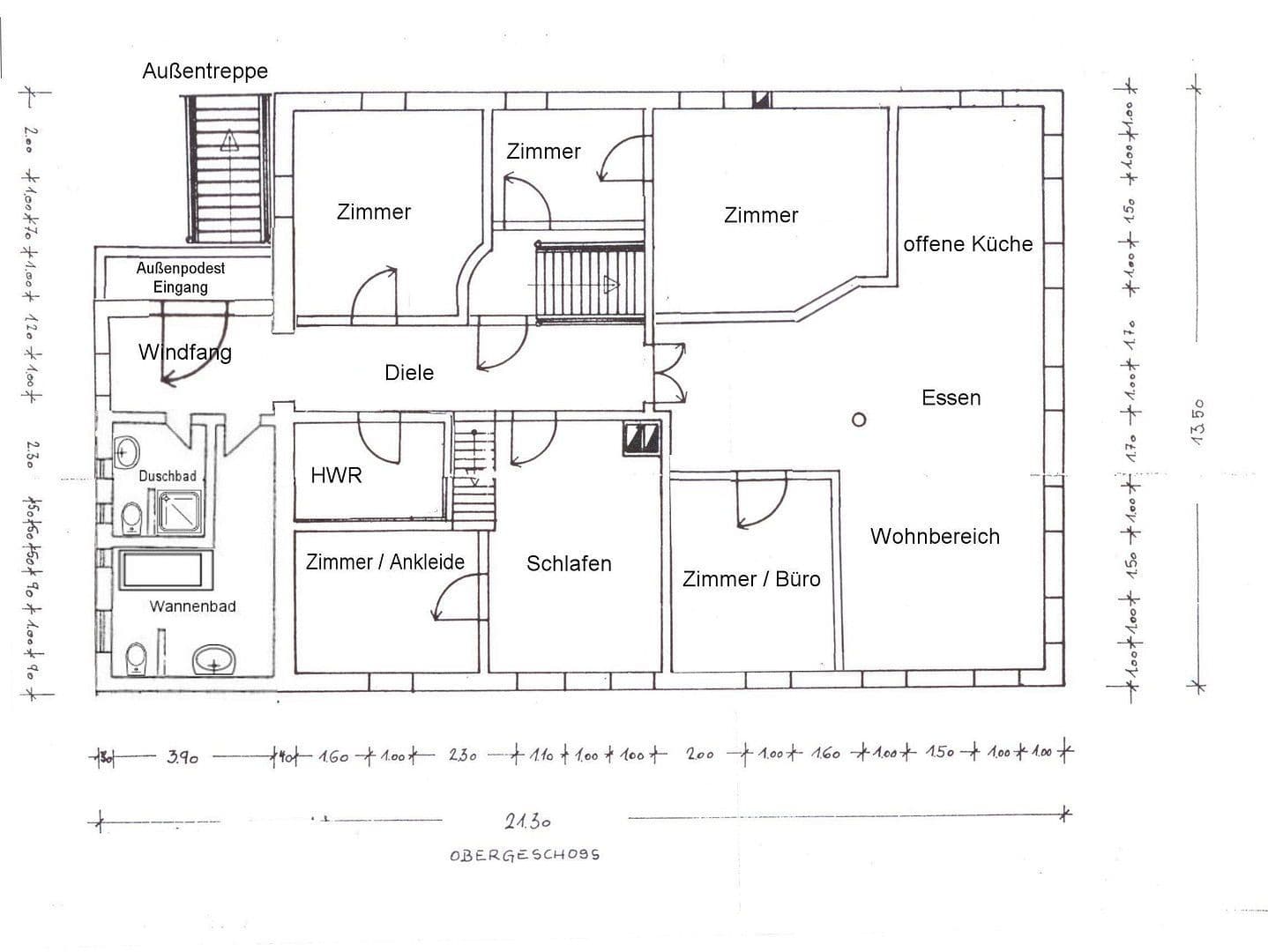
Horné poschodie bolo navrhnuté ako úplne samostatná obytná jednotka, ku ktorej je prístup nielen cez vnútorné schodisko, ale aj zvonku cez drevené schodisko s oddeleným vstupom. Aj tu nájdete vysokokvalitný, vkusný dizajn a vybavenie. „Obrovský“ obývací priestor s otvorenou kuchyňou, ako aj 5-6 izieb, domácnosť, a 2 kúpeľne ponúkajú priestor pre veľkú rodinu.
Obrovský podkrovný priestor nie je rozdelený, ale ponúka ako užitnú plochu nespočetne veľa miesta. Bol v rámci rekonštrukcie kompletne zrekonštruovaný a novozakrytý.
Bývalá západná pivnica bola premenená na nádhernú viacúrovňovú kamennú terasu. Pôvodná kuželová dráha bola z väčšej časti zachovaná a dnes slúži ako mimoriadne útulný záhradný domček a úložisko na náradie.
Veľká prístavná budova, Remise, ponúka veľkoryso využiteľné užitné a skladovacie priestory, garáže, dielňu a bývalý koňský stáj s priebežnou stenou v štýle tenne v streche. Ideálna konštelácia napr. pre remeselné prevádzky s potrebou veľkých vnútorných skladovacích priestorov a/alebo pre (veľko)chov zvierat.
Druhá menšia prístavná budova, bývalý hostinský dom, je láskavo zariadená a upravená a môže byť využitá ako vlastná malá obytná jednotka, s jednou obývacou miestnosťou, vnútorným dreveným schodiskom vedúcim do rozdeleného štítu na spálňu a detskú izbu, malou kúpeľňou a kuchyňou.
Všetko je obklopené takmer 7000 m² „parkom“. To umožňuje chov zvierat/koní na vlastnej pastvine, ako aj množstvo parkovacích miest pre vozidlá.
Hlavná budova je oplotená („odolná voči úteku“ – ideálna napr. pre chov psov); zvyšné plochy sú ohraničené pastvinnými plotmi/oplotené.
V dôsledku iného zamerania majiteľov je objekt kompletne a po dohode pripravený na nastťahovanie pre nového nadšeného majiteľa. Na požiadanie aj s (čiastočným) zariadením. Kuchyne sú zahrnuté.
Weyhern / Egenhofen – zelená idyla cca 30 km pred západnými vchodmi Mníchova
Tento klenot bavorskej histórie a dnes jedinečne zrekonštruovaný a zmodernizovaný objekt je z mníchovského západného okraja dostupný autom len cca 30 minút po diaľnici A8 – výjazd Odelzhausen.
Priamo oproti kompletne zrekonštruovanému a zmodernizovanému kaštieľu Weyhern sa nachádza tento objekt, bývalá historická kaštieľová hostina z roku 1793. Idylsky situovaná pri toku rieky Glonn, tradičná hostina s pivnicou bola až do približne pred 15 rokmi obľúbeným a celoregionálne známym cieľom výletov s gastronomickým zážitkom.
Autom je to len cca 7 minút do diaľnice A8 v Odelzhausene, kde nájdete väčšinu zariadení bežného každodenného života, rovnako ako v okolitých obciach Egenhofen, Mammendorf, Maisach alebo vo Fürstenfeldbruck.
Aj verejnou dopravou sa pohodlne dostanete autobusom 871 (priamo pred dverami) na S-Bahn v Maisachu.
Ponuka rekreácie takmer nenecháva nič želaniu! Okrem okolitých lúk a lesov s nekonečnými možnosťami cyklistiky, jazdy na koni a pešej turistiky, vás pozývajú dve golfové ihriská a početné športové kluby s modernými športoviskami na rozličné aktivity. Voľný čas je navyše obohatený o množstvo atraktívnych podnikateľských zariadení rôznych zameraní, "griabige" pivnice a početné kultúrne podujatia v obciach a v kultúrnom centre okolo Fürstenfelder kaštieľa.
Je ľahko rozpoznateľné, že tento objekt svojou polohou, charakterom a vybavením je jedinečný a túži po novom majiteľovi, ktorý ocení takúto úroveň.
Je vhodný ako rodinný dom, viacgeneračný objekt alebo work-life domov rovnako.
Kvalita rekonštrukcie a použitých stavebných materiálov, vysoko kvalitné vybavenie a zariadenie zodpovedajú vďaka kompletnej rekonštrukcii a modernizácii vysoko štandardu budovy a náročným požiadavkám súčasných obyvateľov.
Pri vážnom záujme a s preukázaním financovania vás srdečne pozývame, aby ste si tento jedinečný objekt pozreli. Objekt je v exkluzívnom predaji na základe poverenia predávajúceho a pre kupujúcich bez provízie od Hans-Jürgen Steg (certifikovaný znalec pre ohodnotenie nehnuteľností, ZIS Sprengnetter Zert (S), web: steg-projekte.de). Kupujúca provízia sa neplatí!
Prosím, žiadne dopyty od maklérov! Ďakujeme.
Parametre nehnuteľnosti
| Vek | Nad 50 rokov |
|---|---|
| Číslo inzerátu | 999858 |
| Plocha pozemku | 6 939 m² |
| Cena za jednotku | 5 521 € / m2 |
| Stav | Po rekonštrukcii |
|---|---|
| Úžitková plocha | 480 m² |
| Celkové poschodia | 2 |
Čo táto nehnuteľnosť ponúka?
| Pivnica | |
| Parkovanie | |
| Terasa |
| Garáž | |
| MHD 2 minúty pešo |
V okolí nehnuteľnosti nájdete
Stále hľadáte to pravé?
Nastavte si strážneho psa. Ponuky vybrané na mieru dostanete súhrnne 1× denne e-mailom. S Premium profilom máte po ruke rovno 5 strážcov a keď sa niečo objaví, informujú vás obratom.


































