
Predaj bytu 3+kk • 80 m² bez realitkynáměstí Jiřího z Lobkovic, Praha - Vinohrady
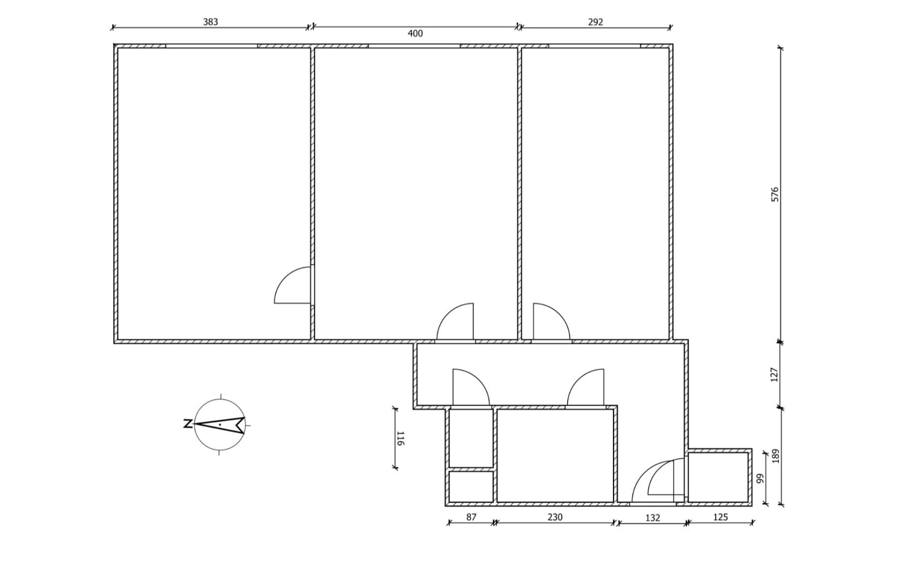
Nabízím k prodeji prostorný byt 3+kk o výměře 76 m² v lokalitě Vinohrady. Byt se nachází na 6. patře v cihlovém domě s výtahem, výhled je na náměstí a park, daleko od pouličního ruchu. Klidný a slunný byt přímo u metra linky A (Flora), který je součástí budovy z roku 1930 s vysokými stropy. Půdorys je na fotografii.
Nemovitost je ve velmi dobrém stavu a nachází se v osobním vlastnictví. Byt je částečně vybaven, což zajišťuje pohodlné okamžité nastěhování, a přitom poskytuje dostatek prostoru pro možnost vlastní úpravy dle představ. Součástí bytu je také sklep o rozloze 4 m², který poskytuje praktické úložné prostory.
Byt se sestává z ložnice, obýváku s kuchyňským koutem, menšího pokoje, oddělené toalety, koupelny, předsíně a spíže/skladu. Byt částečně zařízen (kuchyňská linka, keramická varná deska). Budova disponuje výtahem, který usnadňuje přístup ke všem podlažím, a pro majitele je k dispozici parkování na modré zóně. Byt se nachází ve stabilní a kvalitní cihlové budově, která nabízí solidní základy a působivou atmosféru.
V okolí se nachází obchodní centrum Atrium Flora, potraviny Albert, Žabka, základní škola, park a vše potřebné v docházkové vzdálenosti. Stanice metra A Flora (zelená linka) do 10 min. a zastávka tramvají Olšanské hřbitovy (linky 5, 10, 11, 13, 15, 16) do 5 min.
Pokud Vás tato nemovitost zaujala, neváhejte mě kontaktovat skrz zprávy na této komunikační platformě a domluvíme si prohlídku. Byt se prodává nezařízený (bez nábytku), foto je ilustrační.
I offer for sale a spacious 3+room apartment with an area of 76 m² in the Vinohrady area. The apartment is located on the 6th floor of a brick building with an elevator, with a view of the square and park, far from the street noise. It is a quiet and sunny apartment right next to the metro station on line A (Flora), which is part of a building dating from 1930 with high ceilings. The floor plan is shown in the photograph.
The property is in very good condition and is privately owned. The apartment is partially furnished, ensuring comfortable immediate move-in while still providing plenty of space for your own modifications. The apartment also includes a 4 m² cellar, which offers practical storage space.
The apartment consists of a bedroom, a living room with a kitchenette, a smaller room, a separate toilet, a bathroom, an entrance hall, and a pantry/storage room. The apartment is partially fitted (kitchen unit, ceramic hob). The building has an elevator, which facilitates access to all floors, and parking is available in the blue zone for owners. The apartment is located in a stable and quality brick building, which offers solid foundations and an impressive atmosphere.
Nearby, you will find the Atrium Flora shopping center, Albert grocery store, Žabka convenience store, an elementary school, a park, and everything you need within walking distance. The Flora metro station on line A (green line) is within 10 minutes, and the Olšanské hřbitovy tram stop (lines 5, 10, 11, 13, 15, 16) is just a 5-minute walk away.
If you are interested in this property, please do not hesitate to contact me via messages on this communication platform, and we will arrange a viewing.
Parametre nehnuteľnosti
| Dostupné od | 10. 3. 2026 |
|---|---|
| Konštrukcia budovy | Tehla |
| Vybavené | Čiastočne |
| Číslo inzerátu | 999787 |
| PENB | F - veľmi nehospodárne |
| Úžitková plocha | 80 m² |
| Stav | Veľmi dobrý |
|---|---|
| Dispozícia | 3+kk |
| Poschodie | 5. poschodie z 6 |
| Vlastníctvo | Osobné |
| Umiestnenie | Tichá lokalita |
| Cena za jednotku | 165 000 CZK / m2 |
Vyberáte byt?
Majte istotu, že máte všetky dôležité informácie!
Čo táto nehnuteľnosť ponúka?
| Pivnica 4 m² | |
| Parkovanie |
| Výťah |
V okolí nehnuteľnosti nájdete
Stále hľadáte to pravé?
Nastavte si strážneho psa. Ponuky vybrané na mieru dostanete súhrnne 1× denne e-mailom. S Premium profilom máte po ruke rovno 5 strážcov a keď sa niečo objaví, informujú vás obratom.














