Predaj domu • 196 m² bez realitky, Bádensko-Wurttembersko
Renovovaný objekt. Možnosti využitia: ordinácia, materská škôlka, spoločné bývanie, terapia, chov zvierat, veterinár, svetlé miestnosti s izolačnými dvojsklami a mriežkovanými oknami. Poschodie nad obývacou časťou je možné prispôsobiť ako galériu, štúdio, obytný priestor atď. Idylické umiestnenie v prírode s obrovským pozemkom, pri Bad Saulgau.
Blízko Bodamského jazera a Švajčiarska, uprostred prírody, pár minút pešo do Schwarzachtalu a niekoľko minút autom k jazerám Schwarzachtalu alebo do mesta. Takmer 100 km od letiska Stuttgart.
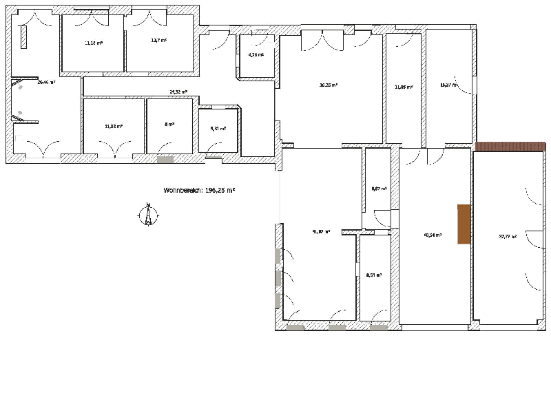
Podlahové kúrenie v celom obytnom priestore vrátane veľkej sprchy. Kvalitné dlaždice. Úplná tepelná izolácia. Veľká kuchyňa s ostrovčekom. Všetky izby obytného priestoru s takmer 200 m² na jednej úrovni, bez schodov, prístupné pre invalidné vozíky. LED osvetlenie.
Prosím, zašlite nám doklad o finančnej spôsobilosti a dohodnite si obhliadku na mieste... Žiadne poplatky pre maklérov!
Parametre nehnuteľnosti
| Vek | Nad 50 rokov |
|---|---|
| Číslo inzerátu | 999704 |
| Úžitková plocha | 196 m² |
| Celkové poschodia | 1 |
| Stav | Po rekonštrukcii |
|---|---|
| PENB | F - veľmi nehospodárne |
| Plocha pozemku | 6 755 m² |
| Cena za jednotku | 7 602 € / m2 |
Čo táto nehnuteľnosť ponúka?
| Bezbariérový prístup | |
| MHD 2 minúty pešo |
| Garáž | |
| Terasa |
V okolí nehnuteľnosti nájdete
Stále hľadáte to pravé?
Nastavte si strážneho psa. Ponuky vybrané na mieru dostanete súhrnne 1× denne e-mailom. S Premium profilom máte po ruke rovno 5 strážcov a keď sa niečo objaví, informujú vás obratom.









