
Prenájom bytu • 20 m² bez realitkyEduard-Spranger-Str. 24 München Feldmoching Bayern 80935
Eduard-Spranger-Str. 24 München Feldmoching Bayern 80935MHD 4 minúty pešo • Vybavené • VýťahPrenajímame priestrannú, svetlú izbu vo štvorlaznej spolubývacej, ktorá je čerstvo zrenovovaná. Izba je kompletne zariadená novým nábytkom a je dodávaná vrátane zariadenia a dekoratívnych predmetov – stačí sa nasťahovať a cítiť sa ako doma!
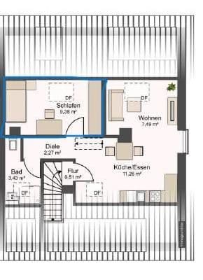
Byt ponúka:
• Južnú loggiu s výhľadom na dvor
• Novú zabudovanú kuchyňu s veľkou chladničkou
• Nový práčkový sušič
• Internet zahrnutý v cene
• Kuchyňu a kúpeľňu s oknom
• Kúpeľňu so samostatnou toaletou
• Skladaciu izbu v chodbe
• Výťah v dome
• Samostatné parkovacie miesto v podzemnej garáži s mriežkou
Spolubývanie je moderné, svetlé a ideálne pre všetkých, ktorí chcú bývať pohodlne a bez komplikácií.
Celkový počet izieb vo spolubývaní je 4:
• 2 menšie izby za 695 € (jedna je už prenajatá)
• 1 stredne veľká izba za 850 € (už prenajatá)
• Veľká hlavná izba za 890 €
K tomu sa pripisuje ešte 100 € poplatkov za služby (vrátane internetu).
Byt sa nachádza v pokojnej štvrti Hasenbergl (okres Feldmoching-Hasenbergl) s dobrou infraštruktúrou. Stanica metra Hasenbergl (U2) a niekoľko autobusových liniek sú dostupné pešo, zatiaľ čo diaľnice A9 a A92 sú rýchlo dostupné.
Obchody, pekárne a lekárne sa nachádzajú v bezprostrednej blízkosti a nákupné centrum Lerchenauer Eck je len niekoľko minút vzdialené.
Parametre nehnuteľnosti
| Vek | Nad 50 rokov |
|---|---|
| Vybavené | Vybavené |
| Úžitková plocha | 20 m² |
| Dostupné od | 10. 3. 2026 |
|---|---|
| Číslo inzerátu | 999677 |
| Cena za jednotku | 35 € / m2 |
Čo táto nehnuteľnosť ponúka?
| Balkón | |
| Výťah |
| Pivnica | |
| MHD 4 minúty pešo |
V okolí nehnuteľnosti nájdete
Stále hľadáte to pravé?
Nastavte si strážneho psa. Ponuky vybrané na mieru dostanete súhrnne 1× denne e-mailom. S Premium profilom máte po ruke rovno 5 strážcov a keď sa niečo objaví, informujú vás obratom.














