Predaj kancelárie • 739 m² bez realitkyDönseler Straße 4, , Dolné Sasko
Dönseler Straße 4, , Dolné SaskoMHD 2 minúty pešo • ParkovanieŠtedrý, zrekonštruovaný komerčný objekt s kancelárskymi, ordináciovými a výrobnými priestormi, ako aj s prípojovým bytom v Dickelu.
Budova bola postavená v roku 1955 ako škola a v roku 2003 bola komplexne zrekonštruovaná.
Hlavné výhody:
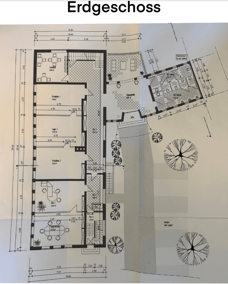
• Približne 647 m² kancelárskych/ordináciových priestorov
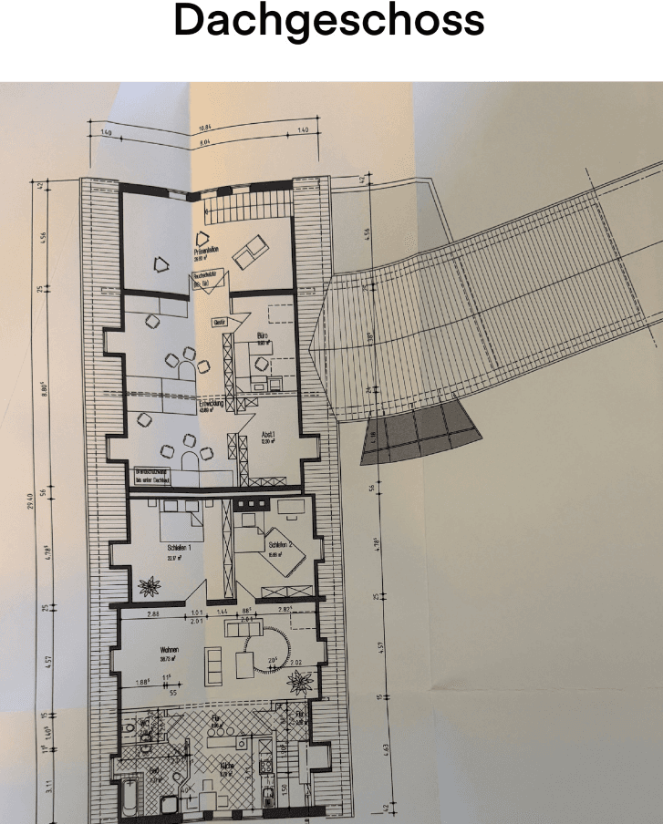
• Približne 92–107 m² prípojový byt
• 3 poschodia (suterén, prízemie, podkrovie)
• Ústredné kúrenie (plyn)
• 10 parkovacích miest na vlastnom dvore
• Štedrá parcela o rozlohe cca 4.350 m²
• Bunkr s ochranou pred röntgenom v suteréne
• Podkrovie s potenciálom na úpravu
Objekt je ideálny pre podniky, ordinácie, výrobu, laboratóriá alebo remeselné činnosti. Flexibilné rozloženie priestorov a svetlé miestnosti umožňujú okamžité využitie alebo individuálne úpravy. Integrovaný prípojový byt je vhodný ako bývanie pre vedúceho, pre zamestnancov, alebo na samostatné prenajatie.
Objekt sa nachádza v pokojnej, vidieckej oblasti v malebnom mestečku Dickel (Dolné Sasko).
Infraštruktúra a okolie:
• Približne 4 km do Rehden, kde nájdete EDEKA, ALDI, lekáreň a poštovú pobočku
• Jaslí a základná škola v blízkosti
• Verejná doprava dostupná pešo
• Dobré napojenie na mestá Barnstorf a Diepholz, ako aj na regionálne diaľnice
• Okolie obklopené množstvom zelene, prírody a voľnočasových aktivít (pešie a cyklistické trasy)
• Lokalita spája pokojné pracovné prostredie s dobrou dostupnosťou pre zamestnancov, zákazníkov a dodávateľov
Vybavenie:
• Podlahy: dlaždice, kameň, vinyl
• Sanitárne vybavenie: vaňa, návštevnická toaleta
• Kuchyňa: vybavená kuchyňa v prípojovom byte
• Výnimočnosti: zimná záhrada, terasa, záhrada, suterén, podkrovie, bunkr s ochranou pred röntgenom
• Kúrenie: ústredné kúrenie, energetický zdroj plyn
• Parkovanie: 10 vonkajších parkovacích miest
Stav a dostupnosť:
• Stav: zrekonštruovaný a okamžite použiteľný
• Dostupnosť: podľa dohody
• Rok výstavby: 1955 (rekonštrukcia 2003)
• Pozemok: 4.350 m², s možnosťou ďalšieho zastavaní
• Zvláštnosť: prípojový byt, podkrovie, bunkr s ochranou pred röntgenom
• Využitie: možné kombinovať komerčné aj obytné využitie
• Možnosť online prehliadky
Tento komerčný objekt ponúka históriu, priestor, flexibilitu a rozvojový potenciál – ideálny pre podniky, ktoré hľadajú pokojné prostredie s dobrou infraštruktúrou.
Parametre nehnuteľnosti
| Vek | Nad 50 rokov |
|---|---|
| Poschodie | 1. poschodie z 3 |
| Plocha kancelárie | 739 m² |
| Stav | Po rekonštrukcii |
|---|---|
| Číslo inzerátu | 999656 |
| Cena za jednotku | 744 € / m2 |
Čo táto nehnuteľnosť ponúka?
| Pivnica | |
| MHD 2 minúty pešo |
| Parkovanie | |
| Terasa |
V okolí nehnuteľnosti nájdete
Stále hľadáte to pravé?
Nastavte si strážneho psa. Ponuky vybrané na mieru dostanete súhrnne 1× denne e-mailom. S Premium profilom máte po ruke rovno 5 strážcov a keď sa niečo objaví, informujú vás obratom.
























