Prenájom bytu 3+1 • 60 m² bez realitkySt.-Moritz-Str. 2, , Bavorsko
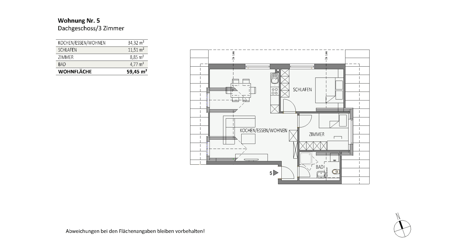
St.-Moritz-Str. 2, , BavorskoMHD 3 minúty pešo • ParkovanieV vidieckom a prírodnom prostredí Buchloe-Honsolgen sa nachádza tento kvalitný 3-izbový podkrovný byt v 2. nadzemnom podlaží malého, moderného viacrodinného domu postaveného v roku 2024.
Byt zaujme premysleným rozložením izieb a svetlým, príjemným obytným prostredím. Jeho srdcom je otvorený obývací a jedálenský priestor, ktorý ponúka dostatok miesta pre peknú kuchyňu a vytvára tak príjemnú atmosféru.
Kúpeľňa je vybavená oknom, modernou sprchou a zariadením na pripojenie práčky. Dve ďalšie izby sú ideálne ako spálňa, pracovňa alebo izba pre hostí.
Byt je ideálny pre jednotlivcov alebo páry, ktorí ocenia moderné bývanie na pokojnom mieste s výbornou dopravnou dostupnosťou.
Pohodlne zaparkujete na vonkajšom parkovacom mieste vo vnútornom dvorí.
Nehnuteľnosť sa nachádza v krásnej časti Buchloe-Honsolgen. Máte všetky výhody bývania v zelene, a zároveň ste výborne prepojení so stredom Buchloe a diaľnicou A96. Prístup k diaľnici A96/Buchloe Ost je vzdialený približne 5 minút, čo je ideálne pre dochádzajúcich do Mníchova alebo Augsburgu.
Dopravná dostupnosť:
- Mníchov: cca 45 minút
- Augsburg: cca 40 minút
- Füssen: cca 1 hodina
- Landsberg am Lech: cca 10 minút
- Türkheim: cca 14 minút
Miestna stanica v centre Buchloe zohráva ústrednú úlohu v regionálnej aj nadregionálnej železničnej doprave, s priamymi spojmi do Mníchova, Augsburgu, Lindau a do Allgäu. Letisko Memmingen je dostupné autom za cca 30 minút.
V Buchloe nájdete:
Reštaurácie, kaviarne, zmrzlinárne, supermarkety, obchody s odevmi, čerpace, autoservisy, pekárne, lekárne, ihrisko, materské školy, základnú školu, gymnázium, ďalšie stredné školy, vonkajší aj krytý bazén, lekárov, fyzioterapiu, zdravotnícky obchod, nemocnicu, športové kluby, hasičov a oveľa viac.
Vybavenie prehľadne:
- Masívna konštrukcia
- Podlahové kúrenie
- Kúrenie: vzduch-voda tepelné čerpadlo
- Zmäkčovač vody
- Dvere s videointerkomom
- Vetrací systém s rekuperáciou tepla (decentralizovaný)
- Izolované drevené okná z larchového dreva s trojskelným zasklením
- Vnútorné okenné parapety z prírodného kameňa
- Elektrické rolety
- Dizajnová vinylová podlaha
- Krásne biele vnútorné dvere
- Vchodové dvere bytu: zvuková izolácia triedy 3
- SAT inštalácia
- Kúpeľňa s oknom a pripojením pre práčku
- Vlastný prístup na podkrovie
- Jeden pivničný priestor patrí k bytu
- Miestnosť pre bicykle pre všetkých obyvateľov domu
Máte záujem?
Prosím, pošlite nám písomnú správu s vašimi kontaktnými údajmi a krátkymi informáciami o vás.
Pri žiadosti o prenájom bytu vás prosíme, aby ste mali pripravené nasledujúce dokumenty (v kópii):
Vyplnený formulár nájomcu
Kópia občianskeho preukazu (predná aj zadná strana)
Aktuálny výpis zo Schufa (nemenej ako 3 mesiace starý)
Potvrdenia o príjme za posledné 3 mesiace alebo ekvivalentný dôkaz o príjme
Poznámky:
- Chov domácich zvierat je v nehnuteľnosti bohužiaľ zakázaný.
- Nájomná zmluva bude uzatvorená formou stupňovatej (staffelnej) zmluvy.
- Obrázky zodpovedajú predstavám ilustrátora. Skutočné prevedenie sa môže líšiť od zobrazenia. Nábytok slúži len na vizualizáciu a nie je zahrnutý v nájomnom.
Dörfler Bauengineering GmbH
Projektový manažment – Plánovanie – Výstavba
Senderstraße 15
86854 Amberg
08241/9600236
Parametre nehnuteľnosti
| Vek | Nad 50 rokov |
|---|---|
| Stav | Veľmi dobrý |
| Poschodie | 2. poschodie z 2 |
| PENB | A - Mimoriadne úsporné |
| Cena za jednotku | 13 € / m2 |
| Dostupné od | 1. 5. 2026 |
|---|---|
| Dispozícia | 3+1 |
| Číslo inzerátu | 999592 |
| Úžitková plocha | 60 m² |
Čo táto nehnuteľnosť ponúka?
| Pivnica | |
| MHD 3 minúty pešo |
| Parkovanie |
V okolí nehnuteľnosti nájdete
Stále hľadáte to pravé?
Nastavte si strážneho psa. Ponuky vybrané na mieru dostanete súhrnne 1× denne e-mailom. S Premium profilom máte po ruke rovno 5 strážcov a keď sa niečo objaví, informujú vás obratom.







