
Prenájom bytu 3+1 • 64 m² bez realitky, Brandenbursko
, BrandenburskoMHD 3 minúty pešoByt sa nachádza v prvom nadzemnom podlaží udržiavaného viacrodinného domu v Prenzlau v Uckermarke. Okrem priestrannej kuchyne ponúka tri veľmi dobre usporiadané, svetlé a pokojné izby a zároveň dlaždicovú kúpeľňu so sprchou a oknom.
Kuchynské vybavenie môže prebrať bývalý nájomca; nie je súčasťou bytu ani nájomnej zmluvy.
K bytu patrí individuálny sklep, spoločný bicyklový sklep a spoločná práčovňa na sušenie bielizne.
K domu náleží veľkorysá záhrada s ovocnými stromami, ktorú je možné po dohode so súčasnými nájomcami využívať spoločnými silami.
Dom obýva harmonická komunita nájomcov.
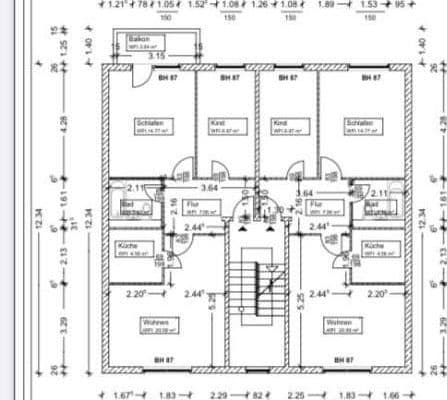
Podrobnosti o rozložení a veľkosti izieb si prosím pozrite v pôdoryse.
Dom sa nachádza v pokojnej obytné lokalite. Obchody a možnosti nákupu sú dostupné pešo.
- Kompletná rekonštrukcia inštalácie (Strangsanierung) 07/2021
- Inštalácia novej vykurovacej sústavy, uzavretá 08/2022
- Dlaždicová kúpeľňa so sprchou a oknom
- Dlaždicová podlaha v kuchyni
- Dvoma-smerový interkomový zvonček
Záujemcovia nás prosíme kontaktovať prostredníctvom e-mailu.
Po obhliadke a pri preukázanom záujme Vás prosíme, aby ste nám neodkladajúco zaslali nasledujúce dokumenty:
- Výpis zo SCHUFA
- Doklad o príjme za posledné tri mesiace
- Potvrdenie o bezdlhovosti (oslobodenie od nájomných dlhov) od súčasného prenajímateľa
- Kópie občianskych preukazov
- Osobné vyhlásenie (formulár je prípadne možné získať od prenajímateľa alebo ho nahrať z internetu)
- Úhrada nájomnej kaucie vo výške 3 čistých studených nájmov = € 1.353,00
Parametre nehnuteľnosti
| Vek | Nad 50 rokov |
|---|---|
| Stav | Dobrý |
| Poschodie | 1. poschodie z 3 |
| Úžitková plocha | 64 m² |
| Dostupné od | 1. 6. 2026 |
|---|---|
| Dispozícia | 3+1 |
| Číslo inzerátu | 999573 |
| Cena za jednotku | 7 € / m2 |
Čo táto nehnuteľnosť ponúka?
| Pivnica |
| MHD 3 minúty pešo |
V okolí nehnuteľnosti nájdete
Stále hľadáte to pravé?
Nastavte si strážneho psa. Ponuky vybrané na mieru dostanete súhrnne 1× denne e-mailom. S Premium profilom máte po ruke rovno 5 strážcov a keď sa niečo objaví, informujú vás obratom.













