Prenájom bytu • 220 m² bez realitky, Hesensko
, HesenskoMHD 1 minúta pešo • Výťah • Parkovanie • GarážV centrálnom, no napriek tomu absolútne pokojnom prostredí Groß-Umstadtu sa nachádza tento mimoriadne priestranný byt v 2. poschodí udržiavaného objektu. Nehnuteľnosť spája mestský život s prekvapivo zelenou a súkromnou atmosférou – miesto, kde žijete priamo v centre mesta a napriek tomu si môžete vychutnať pokoj, výhľady a veľa voľného priestoru.
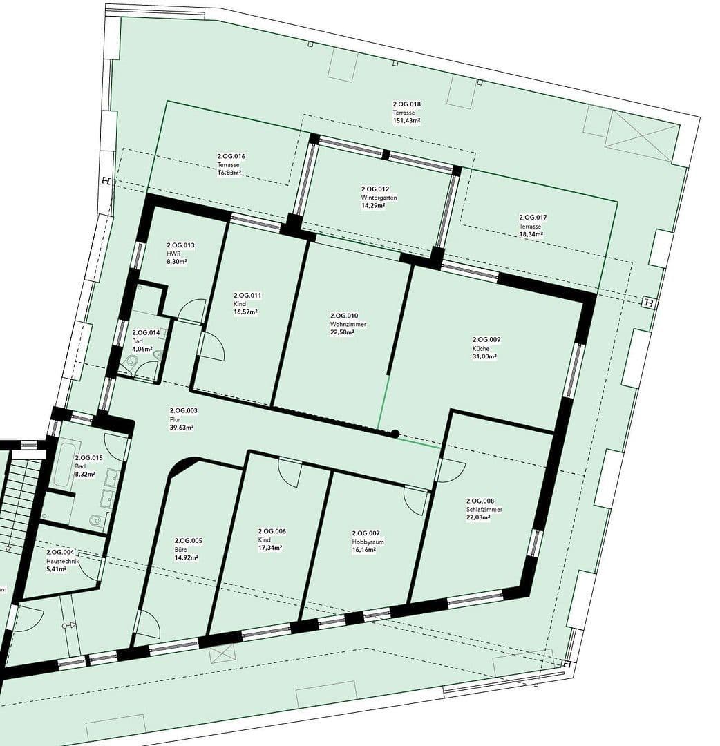
Byt ponúka približne 220 m² obytného priestoru, rozdelený do 7 izieb, doplnený o vykurovanú zimnú záhradu a pôsobivú strešnú terasu s celkovou plochou približne 186 m². Vďaka zvýšenej polohe v budove je byt mimoriadne tichý, pričom zároveň máte všetky výhody centra Groß-Umstadtu priamo v okolí.
Osobitným lákadlom je mimoriadne rozsiahla strešná terasa s výhľadom na okolité vinohrady. Početné záhradné plochy a existujúce závlahové zariadenie vytvárajú zelenú, takmer parkovú atmosféru. Vzniká súkromný vonkajší priestor, ktorý je v takej veľkosti a umiestnení zriedkakedy k videniu.
Priestranný obývací priestor so susediacou zimnou záhradou tvorí srdce bytu. Veľké okná zaisťujú množstvo denného svetla a príjemnú obytnú atmosféru. Kvalitná kuchyňa zo solídneho dreva je vybavená značkovými spotrebičmi Miele a harmonicky zapadá do otvoreného obývacieho priestoru.
Dispozícia s viacerými približne rovnako veľkými izbami ponúka rozmanité možnosti využitia – či už pre veľkú rodinu, spoločné bývanie a prácu pod jednou strechou, viacgeneračné bývanie alebo komunitné bývanie. Dve kúpeľne a domová práčovňa dopĺňajú funkčný pôdorys.
Výťah vedie až do poschodia bytu, čo zaručuje pohodlný prístup. Byt je prevažne bezbariérový a vďaka veľkým plochám poskytuje veľa priestoru pre voľný pohyb.
Hlavné prednosti bytu
• cca 220 m² obytného priestoru
• 7 izieb s flexibilným využitím
• vykurovaná zimná záhrada
• cca 186 m² strešnej terasy s výhľadom do zelene
• pokojná lokalita napriek bezprostrednej blízkosti centra mesta
• kvalitná kuchyňa zo solídneho dreva so spotrebičmi Miele
• 2 kúpeľne
• domová práčovňa
• výťah v budove
• priestranná, otvorená dispozícia
• veľmi dobré osvetlenie
Byt je vhodný ako pre náročné bývanie s veľa priestorom, tak aj pre špeciálne bytové koncepcie, kde komunita a priestranné plochy zohrávajú dôležitú úlohu.
Obytná plocha: cca 220 m²
Strešná terasa: cca 186 m²
Izby: 7
Prevádzkové náklady: momentálne cca 400 € mesačne
Bývanie v srdci vinohradu Groß-Umstadtu
Byt sa nachádza v pokojnej, no zároveň centrálnej lokalite v historickom vinárskom a kultúrnom meste Groß-Umstadt, najobľúbenejšej lokalite v okrese Darmstadt-Dieburg. Táto pôvabná malomesto spája vysokú kvalitu života s vynikajúcou infraštruktúrou a ponúka tak ideálne podmienky pre rodiny aj pre dochádzajúcich do práce.
Groß-Umstadt je všeobecne známy ako „Odenwälder Weininsel“ a vyznačuje sa živým historickým centrom, množstvom vinární, reštaurácií a kaviarní, ako aj rozvinutou gastronómiou. Najmä okolo historického trhoviska vás príjemné tradičné hostince, vinotéky a reštaurácie pozývajú k oddychu. Okolitý vinohrad nielenže tvorí charakteristický obraz krajiny, ale zabezpečuje aj jedinečnú atmosféru a množstvo možností na oddych v prírode.
Napriek idylickému okoliu disponuje Groß-Umstadt veľmi dobrou mestskou infraštruktúrou. Všetky dôležité zariadenia každodenného života sú priamo v okolí: obchody, lekári, lekárne, banky ako aj početní poskytovatelia služieb sú ľahko dostupní. Aj vzdelávacie možnosti sú vynikajúce. V meste sú k dispozícii všetky úrovne škôl – od materských škôl, základných škôl až po stredné školy, gymnázia a celkové školy.
Pre dochádzajúcich do práce ponúka Groß-Umstadt vynikajúce dopravné spojenie. Prostredníctvom miestnej stanice s napojením na Odenwaldbahn existujú priame spoje mimo iné do Darmstadtu a Frankfurtu. Aj autom sú dôležité priemyselné oblasti ľahko dostupné: Darmstadt, Aschaffenburg a oblasť Rýn-Main sú pohodlne dosiahnuteľné vďaka dobre vybudovaným cestným spojením.
Kombinácia pokojného bývania, historickej atmosféry, živej gastrónomie, prírody v blízkosti a zároveň výborného spojenia s metropolitnou oblasťou Rýn-Main robí z Groß-Umstadtu mimoriadne atraktívne miesto na bývanie.
Byt zaujme vďaka vysokej kvalite a premyslenému vybaveniu s množstvom individuálnych detailov.
Srdcom bytu je na mieru vyrobená kuchyňa zo solídneho dreva od nábytkára, ktorá vizuálne aj funkčne spĺňa tie najvyššie nároky. Kuchyňa je vybavená kvalitnými zabudovanými spotrebičmi Miele a ponúka priestranné pracovné plochy a veľa úložného priestoru. Kombinácia masívneho dreva a modernej techniky vytvára mimoriadne teplú a zároveň kvalitnú obytnú atmosféru.
V spálni poskytujú na mieru vyrobené vstavané skrine optimálne využitie úložného priestoru a jasný, pokojný dojem z priestoru. Individuálne vyrobené skrine sa harmonicky začleňujú do celkového vzhľadu bytu.
Ďalším výrazným lákadlom je priestranná strešná terasa, ktorá ponúka zelenú oázu nad mestom. Zeleň zabezpečuje príjemnú, súkromnú atmosféru a vytvára mimoriadny vonkajší priestor priamo v centre mesta. Automatický závlahový systém uľahčuje starostlivosť o rastliny a zaisťuje, že terasa zostane neustále zelená a udržiavaná.
Byt tak spája výhody domu s komfortom bytu: Môžete si vychutnať priestranné bývanie s vonkajším priestorom a veľkým súkromím, bez typických záväzkov vlastnenia domu. Zimná údržba, udržiavanie ulíc a ďalšie spoločné úlohy sú organizované a už sú zahrnuté v prevádzkových nákladoch.
Vzniká tak zriedkavá kombinácia centrálnej polohy, zelenej oázy a komfortného bývania bez ďalších starostí – ideálne pre všetkých, ktorí chcú spojiť priestranné bývanie s čo najmenšou organizačnou náročnosťou.
Parametre nehnuteľnosti
| Vek | Nad 50 rokov |
|---|---|
| Poschodie | 2. poschodie z 1 |
| PENB | A - Mimoriadne úsporné |
| Cena za jednotku | 14 € / m2 |
| Stav | Dobrý |
|---|---|
| Číslo inzerátu | 999518 |
| Úžitková plocha | 220 m² |
Čo táto nehnuteľnosť ponúka?
| Balkón | |
| Garáž | |
| Parkovanie | |
| Terasa |
| Pivnica | |
| Výťah | |
| MHD 1 minúta pešo |
V okolí nehnuteľnosti nájdete
Stále hľadáte to pravé?
Nastavte si strážneho psa. Ponuky vybrané na mieru dostanete súhrnne 1× denne e-mailom. S Premium profilom máte po ruke rovno 5 strážcov a keď sa niečo objaví, informujú vás obratom.































