Predaj domu 5+1 • 130 m² bez realitky, Dolné Sasko
, Dolné SaskoMHD 4 minúty pešo • GarážDieses gepflegte Reihenmittelhaus im Landhausstil am westlichen Stadtrand von Hannover ist vollständig unterkellert und bietet mit einer offenen Wohnküche mit Kaminofen, 3 Schlafzimmern, Büro und Hobbykeller viel Platz für die Familie. Der kleine Garten, eine Garage mit Wallbox (und optional eine zweite Garage) runden das Angebot ab.
Umgebung:
nächster Supermarkt: 550m
Bushaltestelle GVH Linien 574, 581: 160m
Endpunkt Stadtbahn Linie 10 in Ahlem: 1600m
Kita im Ort
Grundschule im Nachbarort
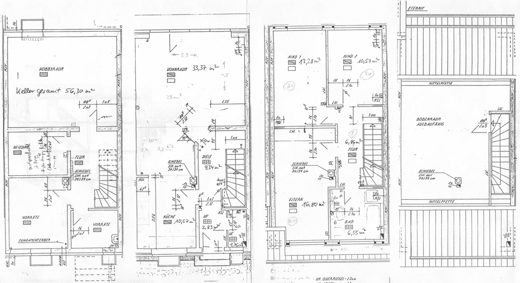
Raumaufteilung, Ausstattung:
EG: Offene Wohnküche mit Kaminofen, Küche voll ausgestattet, Windfang mit Gäste-WC
OG: Schlafzimmer, zwei Kinderzimmer, Bad mit Doppelwaschtisch, Dusche und Wanne
DG: Büro oder Gästezimmer mit zwei Dachfenstern
Vollkeller mit Vorratsräumen und Hobby/Partykeller
Fussböden: Buchenholz-Parkett oder Fliesen, offene Holztreppe verbindet alle Geschosse
Garage mit Strom und Wallbox
Veränderungen/Erneuerungen:
- Kaminofen aus 2011, erfüllt aktuelle Grenzwerte
- Brennwertheizung Vaillant EcoCompact aus 2012 mit Ringleitung für Warmwasser
- Fensterdichtungen aus 2018
- Velux-Dachfenster aus 2024
- Terrasse aus 2025
- Gartenschuppen
Preložený do slovenčiny:
Tento udržiavaný radový dom v štýle vidieka na západnom okraji Hannoveru je kompletne podsklenený a ponúka veľa priestoru pre rodinu vďaka otvorenej obývacej kuchyni s krbovým kachľovým sporákom, trom spálňam, kancelárii a hobby pivnici. Malá záhrada, garáž so zásuvkou pre wallbox (a prípadne druhá garáž) dopĺňajú ponuku.
Okolie:
najbližší supermarket: 550 m
zastávka autobusu GVH linky 574, 581: 160 m
konečná zastávka električky linky 10 v Ahlem: 1600 m
materská škôlka v obci
základná škola v susednej obci
Rozloženie priestorov, vybavenie:
Prízemie (EG): Otvorená obývacia kuchyňa s krbovým sporákom, plne vybavená kuchyňa, predsieň so záchodom pre hostí
1. poschodie (OG): Spálňa, dve detské izby, kúpeľňa s dvojitým umývadlom, sprchou a vaňou
2. poschodie (DG): Kancelária alebo izba pre hostí s dvoma strešnými oknami
Plne podkroví s pivnicou a priestorom pre hobby/party
Podlahy: bukové parkety alebo dlažba, otvorené drevené schody spájajú všetky poschodia
Garáž s elektrickou prípojkou a wallboxom
Zmeny/Obnovy:
- Krbový sporák z roku 2011, spĺňa aktuálne emisné limity
- Kondenzácia vykurovacia jednotka Vaillant EcoCompact z roku 2012 s okruhom pre teplú vodu
- Tesniace prvky okien z roku 2018
- Strešné okná Velux z roku 2024
- Terasa z roku 2025
- Záhradný domček
Parametre nehnuteľnosti
| Vek | Nad 50 rokov |
|---|---|
| Stav | Dobrý |
| Číslo inzerátu | 999508 |
| Úžitková plocha | 130 m² |
| Celkové poschodia | 3 |
| Dostupné od | 1. 6. 2026 |
|---|---|
| Dispozícia | 5+1 |
| PENB | C - Hospodárne |
| Plocha pozemku | 171 m² |
| Cena za jednotku | 3 731 € / m2 |
Čo táto nehnuteľnosť ponúka?
| Pivnica | |
| MHD 4 minúty pešo |
| Garáž | |
| Terasa |
V okolí nehnuteľnosti nájdete
Stále hľadáte to pravé?
Nastavte si strážneho psa. Ponuky vybrané na mieru dostanete súhrnne 1× denne e-mailom. S Premium profilom máte po ruke rovno 5 strážcov a keď sa niečo objaví, informujú vás obratom.





















