
Prenájom bytu 2+1 • 60 m² bez realitky, Bádensko-Wurttembersko
, Bádensko-WurttemberskoMHD do minúty pešo • Výťah • ParkovanieVitajte vo vašom novom domove!
Táto priestranná 2-izbová bytosť ponúka všetko, čo si len prajete pre komfortné a energeticky efektívne bývanie. Táto bytosť je pravým high-tech rajom, s podlahovým kúrením, Smart Home KNX systémom, hlasovým ovládaním a ventilačným zariadením.
Upozorňujeme, že domáce zvieratá v tejto bytošti nie sú povolené.
Bytosť sa nachádza v pokojnej, a predsa centrálnej lokalite. Obchody, školy, verejná doprava a rekreačné zariadenia sú v bezprostrednej blízkosti.
Podlahové kúrenie: Vychutnajte si útulné teplo v celej bytošti vďaka účinnému podlahovému kúreniu.
Smart Home KNX: Ovládajte osvetlenie, kúrenie a rolety vo vašom domove pohodlne pomocou vášho smartfónu alebo tabletu. Smart Home systém KNX zaručuje najvyšší komfort a maximálnu energetickú efektívnosť.
Hlasové ovládanie: Ovládajte svoju bytosť pomocou hlasových príkazov. Stačí povedať, čo si prajete, a Smart Home systém splní vaše želania.
Ventilačné zariadenie: Dýchajte kedykoľvek čerstvý vzduch vďaka ventilačnému zariadeniu, ktoré zabezpečuje optimálnu kvalitu vzduchu.
Energeticky efektívne bývanie: Táto bytosť sa nachádza v nízkoenergetickom dome, pričom energiu čerpá z fotovoltaickej inštalácie na streche. To znamená nižšie náklady na energiu a pozitívny prínos pre životné prostredie.
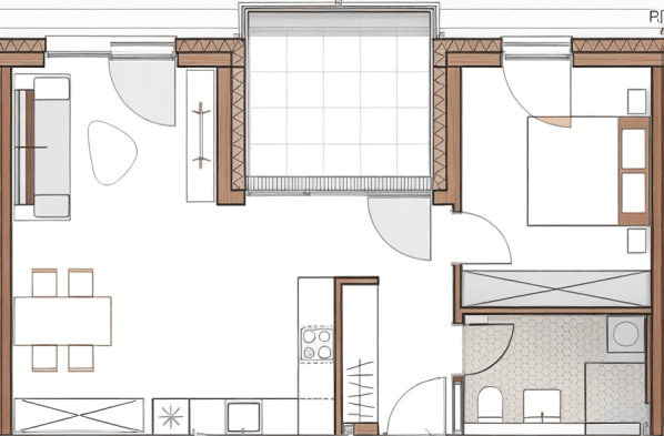
Moderná, plne vybavená kuchyňa je ideálnym miestom na rozvoj vašich kulinárskych zručností. S kvalitnými spotrebičmi a dostatkom úložného priestoru je snom pre hobby kuchárov.
Obývacia izba je priestranná a ponúka dostatok miesta pre príjemné večery s priateľmi a rodinou. Priľahlá jedáleň je dokonalým miestom pre spoločné jedlá.
Priestranná spálňa
Kúpeľňa je moderná a elegantne zariadená
Vychutnajte si čerstvý vzduch a výhľad z vašej vlastnej loggie.
Predizba poskytuje dostatok miesta pre vašu garderóbu a dodáva bytu príjemnú atmosféru.
Upozorňujeme, že domáce zvieratá v tejto bytošti nie sú povolené.
K dispozícii od: 01.01.2024
Parametre nehnuteľnosti
| Vek | Nad 50 rokov |
|---|---|
| Stav | Novostavba |
| Poschodie | 2. poschodie z 2 |
| Úžitková plocha | 60 m² |
| Dostupné od | 12. 3. 2026 |
|---|---|
| Dispozícia | 2+1 |
| Číslo inzerátu | 999478 |
| Cena za jednotku | 12 € / m2 |
Čo táto nehnuteľnosť ponúka?
| Balkón | |
| Výťah | |
| MHD 0 minút pešo |
| Pivnica | |
| Parkovanie |
V okolí nehnuteľnosti nájdete
Stále hľadáte to pravé?
Nastavte si strážneho psa. Ponuky vybrané na mieru dostanete súhrnne 1× denne e-mailom. S Premium profilom máte po ruke rovno 5 strážcov a keď sa niečo objaví, informujú vás obratom.










