
Prenájom bytu 2+1 • 54 m² bez realitkyDonnersbergstr. 33 Frankfurt Niederrad Hessen 60528
Donnersbergstr. 33 Frankfurt Niederrad Hessen 60528MHD 2 minúty pešo • GarážTu nájdete úplne nový domov pri prvom nasťahovaní!
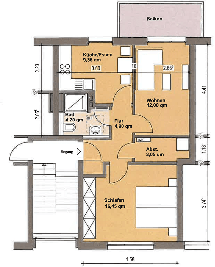
Sám dom je staršia budova, ktorá bola prerobená zväčšením. To znamená, že v 3. poschodí domu (bez výťahu) vznikli elegantné a dobre dispozične riešené 2-izbové byty s kuchyňou, kúpeľňou a balkónom.
Kritériá prideľovania:
- maximálne 2 osoby
- vlastný príjem z pracovnej činnosti spolu aspoň 3 000 € netto
- žiadna negatívna Schufa
- skorý začiatok prenájmu
Dopyty prijímame výlučne prostredníctvom e-mailu s uvedením vyššie uvedených kritérií prideľovania, nie telefonicky. Spracovať môžeme iba takéto dopyty.
Byt sa nachádza v tichej a udržiavanej lokalite v obľúbenom frankfurtskom štvrti Niederrad. Obchodné možnosti, kaviarne aj mestský les sú pohodlne dostupné pešo. Doprava je výborná: električné linky č. 12 a 15, ako aj S-Bahn linky S8 a S9 ponúkajú rýchle spojenia do centra mesta, na hlavnú stanicu aj na letisko. Kancelárske centrum Niederrad a diaľnice A5 a A3 sú dosiahnuteľné za pár minút – ideálne pre dochádzajúcich a častých cestovateľov.
Novo postavený 2-izbový byt s balkónom!
- Centrálny vstupný priestor o výmere 5 m² s dostatočným priestorom pre šatník.
- Samostatná kuchyňa o výmere 9 m² (bez vstavaných spotrebičov).
- Štýlová kúpeľňa so sprchou a sklenenými dverami, ktorá zaisťuje denné svetlo prostredníctvom nepriehľadného horného okna.
- Úložná miestnosť o rozlohe 3 m² priamo v byte s priestorom pre práčku.
- Obývacia izba o veľkosti 12 m² s prístupom na priestranný balkón o výmere 7 m².
- Spálňa s plochou 16 m².
- Podlahové krytiny vo vstupnej chodbe a obývacích priestoroch tvoria kvalitná vinylová podlaha, ktorá vyzerá skvele, je odolná aj nenáročná na údržbu. V kuchyni a kúpeľni dominuje moderný dlažobný obklad.
- Všetky miestnosti majú príjemné podlahové kúrenie.
- Byt nemá svoj vlastný sklepný priestor, avšak je možný prenájom úložného priestoru v podzemnej garáži za 35 € mesačne. Rovnaká možnosť je aj pre parkovacie miesto v podzemnej garáži domu za 80 € mesačne.
Minimálna doba nájmu: 12 mesiacov.
Všetky uvedené informácie o byte pochádzajú od prenajímateľa. Napriek obchodnej starostlivosti za ne nie je možné prevziať zodpovednosť. Preklepy, omyly a medzitým prenájom si vyhradzujeme.
Odoslaním dopytu o nehnuteľnosť záujemca výslovne súhlasí s tým, že ho budeme kontaktovať prostredníctvom e-mailu, pošty alebo telefónu. Platia naše obchodné podmienky, ktoré si môžete pozrieť na našej webovej stránke www.strack-immobilien.de
Impresum:
Dr. Strack-Immobilien, Rupt sur Moselle Str. 12, 55271 Stadecken-Elsheim, Tel. 06130-5451710, e-mail: info(a)strack-immobilien.de, webstránka: http://www.strack-immobilien.de, DIČ: DE247438718, oprávnená osoba: Kurt Strack
Dozorujúci orgán: Verbandsgemeinde Nieder-Olm, Pariser Straße 110, 55268 Nieder-Olm.
Profesijná komora: Priemyselná a obchodná komora pre Rheinhessen, Schillerplatz 7, 55116 Mainz.
Informácie pre spotrebiteľov: Informácie o online platforme na riešenie sporov v súlade s nariadením (EÚ) č. 524/2013: https://ec.europa.eu/consumers/odr/
Dr. Strack-Immobilien sa nezúčastňuje na mimosúdnom riešení sporov pred spotrebiteľskou zmierovacou inštitúciou.
Parametre nehnuteľnosti
| Vek | Nad 50 rokov |
|---|---|
| Stav | Novostavba |
| Poschodie | 3. poschodie z 4 |
| PENB | C - Hospodárne |
| Cena za jednotku | 18 € / m2 |
| Dostupné od | 12. 3. 2026 |
|---|---|
| Dispozícia | 2+1 |
| Číslo inzerátu | 999384 |
| Úžitková plocha | 54 m² |
Čo táto nehnuteľnosť ponúka?
| Balkón | |
| MHD 2 minúty pešo |
| Garáž |
V okolí nehnuteľnosti nájdete
Stále hľadáte to pravé?
Nastavte si strážneho psa. Ponuky vybrané na mieru dostanete súhrnne 1× denne e-mailom. S Premium profilom máte po ruke rovno 5 strážcov a keď sa niečo objaví, informujú vás obratom.
















