
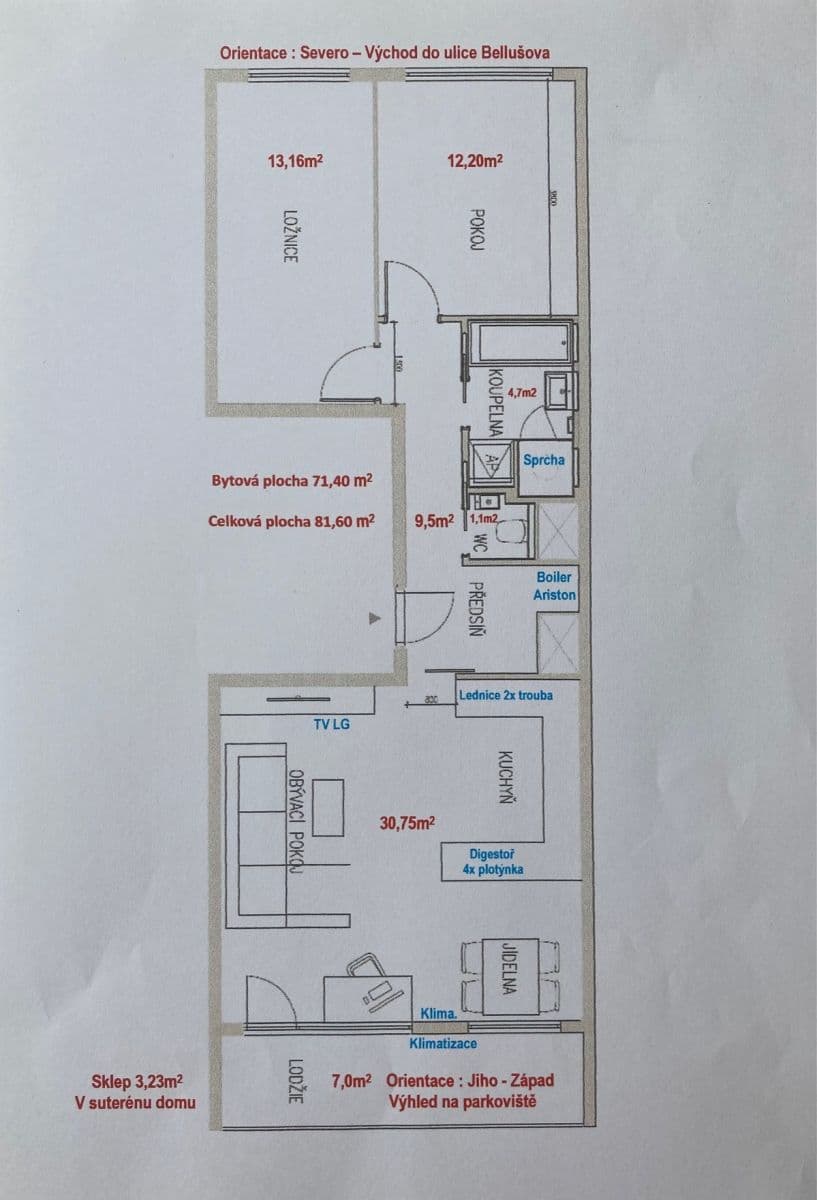
Predaj bytu 3+kk • 78 m² bez realitkyBellušova, Praha - Stodůlky
Majitel nabízí k prodeji 3+kk 82m2 v OV, v ulici Bellušova P13.
Byt bude volný ihned po podpisu KS a zaplacení celé ceny.
Byt se prodává kompletně zařízený a nebyl nikdy pronajatý !
Byt je v 7. posledním patře po kompletní rekonstrukci :
- Elektrické vedení v mědi, internet - optický kabel + LAN síť.
- Vinylové podlahy všude, v koupelně a WC italská dlažba.
- Lodžie zasklená a zateplená s vertikálními žaluziemi.
- Klimatizace Toshiba a elektrický boiler s tepelným čerpadlem.
- Kuchyň plně vybavená spotřebiči BOSCH: 2x trouba, myčka,
lednice s mrazákem, 4-plotýnka + digestoř.
- V obýváku TV LG s úhlopříčkou 139cm + nábytek a sedačka.
- Ložnice + pracovna + předsíň jsou plně vybavené nábytkem.
- Koupelna má velkou vanu a sprchový kout.
- V koupelně je nová pračka AEG, v ceně bytu.
- Koupelna a WC mají posuvné dveře z chodby bytu.
- Měsíční poplatky 5293,-Kč / 3-osoby, včetně FO 2017,-Kč.
- Daň z bytu 2151,-Kč/rok, Elektřina 780,-Kč/M, O2 449,-Kč/M
Bytový dům je revitalizován a průběžně inovován :
- Nová plynová kotelna v domě, nový výtah, rekonstrukce
společných prostor – vstupní dveře (na čip), chodby,
schodiště, sklepy, celá budova je zateplená - energetický
štítek C (PENB).
- Dům má celkem 45bytů rozdělených do 3vchodů
po 15bytech.
- V okolí budovy je dostatek parkovacích míst, viz foto.
- V okolí je kompletní občanská vybavenost a dobrá
dostupnost MHD.
- Stanice metra LUKA / trasa B, je cca 5-minut chůze od domu.
Prodává přímo majitel, realitní kanceláře prosím NEVOLAT !
Parametre nehnuteľnosti
| Dostupné od | 9. 3. 2026 |
|---|---|
| Konštrukcia budovy | Panel |
| Vybavené | Vybavené |
| Číslo inzerátu | 999251 |
| PENB | C - Hospodárne |
| Úžitková plocha | 78 m² |
| Stav | Veľmi dobrý |
|---|---|
| Dispozícia | 3+kk |
| Poschodie | 7. poschodie z 7 |
| Vlastníctvo | Osobné |
| Umiestnenie | Sídlisko |
| Cena za jednotku | 128 205,13 CZK / m2 |
Čo táto nehnuteľnosť ponúka?
| Pivnica 3,23 m² | |
| Lodžia 7 m² |
| Výťah |
V okolí nehnuteľnosti nájdete
Stále hľadáte to pravé?
Nastavte si strážneho psa. Ponuky vybrané na mieru dostanete súhrnne 1× denne e-mailom. S Premium profilom máte po ruke rovno 5 strážcov a keď sa niečo objaví, informujú vás obratom.
























