Predaj domu 4+1 • 135 m² bez realitkyMarderweg 13, , Bavorsko
Marderweg 13, , BavorskoMHD do minúty pešo • GarážHrubá stavba masívne postaveného bungalovu je už dokončená – sťahovanie a pocit pohodlia už v júni 2026! Udržateľná tehličková metóda s monolitickými stenami zaručuje trvácnu kvalitu: zvonku fasádu chráni ľahko udržiavateľný, priedušný vápenný cementový ľahký omietok, zatiaľ čo vo vnútri vápenný omietok zabezpečuje zdravé a príjemné bývanie.
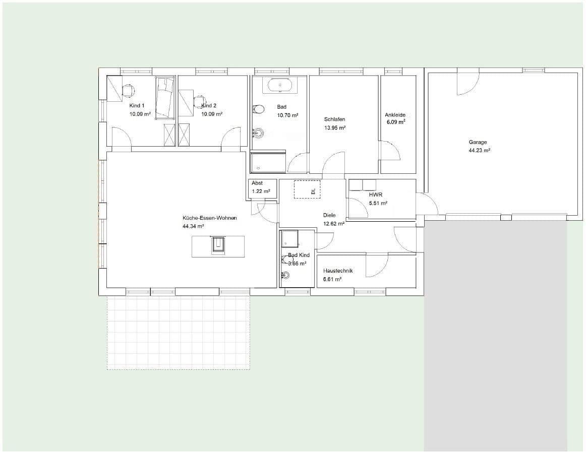
Premyslené prízemné bývanie nadchne otvoreným obývacím, jedálenským a kuchynským priestorom, ktorý priamo naväzuje na príjemný vstupný priestor. Moderná kuchyňa so zostavením kuchynského ostrova disponuje praktickou zásuvnou miestnosťou, zatiaľ čo technická miestnosť spája dom priamo s dvojgarážou – pre mimoriadne krátke cesty v každodennom živote.
Pôdorys ponúka dve flexibilne využiteľné izby, ako aj priestranný rodičovský priestor so spálňou, prechodným šatníkom a vlastnou kúpeľňou. Ďalšia kúpeľňa pre hostí je centrálne umiestnená v dome. Terasa orientovaná na juh s kvalitným hliníkovým prístreškom predlžuje obytný priestor do exteriéru – ideálna pre slnečné hodiny a spoločenské večery.
Medzi vybavenie patrí výkonná fotovoltaická elektráreň (cca 8,19 kWp) a moderné tepelné čerpadlo vzduch-voda pre energeticky efektívne bývanie. Interiérová výbava – od podlahových krytín cez sanitárne zariadenia až po vnútorné dvere – môže byť prispôsobená podľa vašich predstáv. Požiadavky na vzorkovanie môžu byť zohľadnené ešte do konca apríla.
Rýchly sťahovanie, moderná technika a premyslený dizajn – tu čaká váš nový domov, ktorý dokonale spája bývací komfort, udržateľnosť a kvalitu života!
Hľadáte kompaktnú bytovú jednotku v rovnakej vysokej masívnej stavebnej kvalite?
Od apríla vzniknú dvojdomky v Irchenrieth – od 449 000 €. Kľúčové odovzdanie je do konca roku 2026. Rezervácie sú možnosťou už odteraz.
Bungalov vzniká v atraktívnej novej developerskej oblasti Gleitsweg v Irchenrieth. Obec Irchenrieth zaujme vynikajúcou správou a pevnou finančnou základňou. Poloha ponúka krátke vzdialenosti k obchodným príležitostiam, školám, materským škôlkam aj zdravotnej starostlivosti. Zároveň blízkosť k Weiden i.d.OPf. a diaľnici A6 zabezpečuje rýchle spojenie s regionálnymi zamestnávateľmi a okolitými mestami.
Okolie očaruje upratanou obytnou výstavbou, množstvom zelene a pokojnou susedskou atmosférou – ideálne pre všetkých, ktorí hľadajú komfortný, prízemný koncept bývania.
1. Kvalita priestoru a bývania
• Výška stropov: viac ako 2,80 m
• Podlahové kúrenie v celom dome
• Parketová podlaha v obytnom priestore
• Dlaždice Villeroy & Boch v kúpeľni a funkčných priestoroch
• Bezbariérový prístup
2. Okná, dvere a zatienenie
• Dve veľké posuvné dvere na juh a západ s výškou 2,50 m
• Dve ďalšie bezprahové, podlahové sklenené dvere
• Výhradne elektrické rolety s hliníkovým pancierom
• Vstupné dvere s výškou 2,30 m
3. Kúrenie, energia a technika
• Tepelné čerpadlo vzduch-voda od Bosch ako ústredný vykurovací systém
• Fotovoltaická elektráreň 8,19 kWp s Lehmann kovovými tehličkami
• Multimediálny distribútor s LAN pripojením v každej obytné miestnosti
• Video interkom s aplikáciou a diaľkovým prístupom
• LED stropné svetlá vo väčšine miestností, vrátane garáže
4. Sanitárne vybavenie
• Sanitárne zariadenia od Grohe
• Systém spínačov a zásuviek od Busch-Jaeger
5. Vonkajší priestor a garáž
• Dvojgaráž s dvoma sekčnými vratami
• Terasový prístrešok z hliníka
• Dvorová dlažba so záhonom a orámovaním z granitu
• Do fasády integrovaná poštová schránka
• Plne naplánovaný pozemok/záhradná plocha
6. Ostatné / úžitkové priestory
• Nepodhrievaný podkrovný priestor ako sklad s veľkou dobre tepelne izolovanou výklopnou schodiskom
Individuálne možnosti výberu v rámci vzorkovania (napr. podlahové krytiny do 50 €/m² podľa cenníka)
Základné údaje:
• Obytná plocha: cca 135 m²
• Pozemok: cca 567 m²
• 3 spálne
• Šatník: 1
• Kúpeľne: 1 kúpeľňa en suite + kupelňa pre hostí
• Masívna dvojgaráž
• Kľúčové odovzdanie: júna 2026
JOWI Immo GmbH
Sídlo a registrácia: Norimberg, AG Norimberg HRB 44975
Zastúpená svojím konateľom
Josef H. Sechser M. Sc. Real Estate
Ostendstraße 161, 90482 Norimberg
Telefón: +49 172 82 56 401
kontakt(at)jowi-immo.de
Povolenie podľa § 34c odseku 1 veta 1 číslo 3a Obchodného zákonníka (developer)
Dozorný orgán: Obchodná a priemyselná komora pre Mníchov a Horné Bavorsko, Max-Joseph-Str. 2, 80333 Mníchov
Parametre nehnuteľnosti
| Vek | Nad 50 rokov |
|---|---|
| Dispozícia | 4+1 |
| PENB | A - Mimoriadne úsporné |
| Plocha pozemku | 567 m² |
| Cena za jednotku | 4 215 € / m2 |
| Stav | Novostavba |
|---|---|
| Číslo inzerátu | 999149 |
| Úžitková plocha | 135 m² |
| Celkové poschodia | 1 |
Čo táto nehnuteľnosť ponúka?
| Bezbariérový prístup | |
| MHD 0 minút pešo |
| Garáž | |
| Terasa |
V okolí nehnuteľnosti nájdete
Stále hľadáte to pravé?
Nastavte si strážneho psa. Ponuky vybrané na mieru dostanete súhrnne 1× denne e-mailom. S Premium profilom máte po ruke rovno 5 strážcov a keď sa niečo objaví, informujú vás obratom.













