
Predaj domu 5+1 • 138 m² bez realitkyLeipzig Altlindenau Sachsen 04177
Leipzig Altlindenau Sachsen 04177MHD 1 minúta pešo • ParkovanieV urbánnej, zároveň príjemne pokojnej lokalite sa nachádza tento moderný radový dom v srdci Altlindenau, neďaleko Lindenauer trhu. Len štyri zastávky električky od centra Lipska, leží v bezprostrednej blízkosti Palmengartena a Auenwaldu – ideálne na prechádzky, voľný čas a oddych. Futbalový štadión RB a Arena sú pešo dostupné.
Dom bol postavený v rokoch 2015 až 2016 podľa energeticky efektívneho štandardu KfW 70 a v decembri 2016 bol zaujatý súčasnými majiteľmi. Ekologické zeolitové plynové tepelné čerpadlo v kombinácii so solárnou termotechnikou zabezpečuje udržateľné vykurovanie. Okrem toho je k dispozícii vlastná zásobníková nádrž na dažďovú vodu, ktorú je možné výborne využiť na zavlažovanie záhrady.
Starostlivo upravená záhrada s veľkou terasou a záhradnou budkou ponúka priestor na oddych. Na druhom poschodí prispieva k možnostiam útočiska a večerných slnečných lúčov aj priestranný balkón pri rodičovskej spálni.
Na prízemí sa nachádza otvorený obývací a jedálenský priestor, kuchyňa, hostinské WC, ako aj prípojová miestnosť a praktická úložná komora.
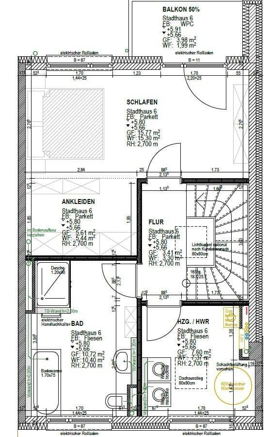
Prvé poschodie ponúka tri takmer rovnako veľké spálne a/alebo izby pre hostí spolu s modernou sprchovacou kúpeľňou a WC.
Druhé poschodie tvorí samostatnú obytnú etáž s veľkou spálňou, priestrannou kúpeľňou s vaňou, sprchou a WC a s domácou komorou.
Mestský dom zaujme vysoko kvalitnou, súčasnou výbavou: podlahové kúrenie vo všetkých miestnostiach, elegantné jesenné dubové dosky v obytných priestoroch a elektrické rolety v celom dome zaručujú komfort a kvalitu bývania.
K radovým domom je pripojený viacrodinný dom, v ktorom sa nachádza podzemné parkovacie miesto. Parkovacie miesto je zahrnuté v kúpnej cene a spravuje sa v rámci spoločenstva vlastníkov.
Altlindenau leží západne od lipského centra, zasadené medzi Palmengarten a severný Auenwald. Táto štvrť spája mestský šarm s historickým kúzlom: nádherné budovy zakladateľskej éry dominujú ulícam, zatiaľ čo bývalé priemyselné plochy boli kreatívne a moderne prestavané. Okolie ponúka vynikajúcu infraštruktúru s rôznymi nákupnými možnosťami, krčmami a reštauráciami, nemocnicou, mnohými školami a priestrannými parkmi a zelenými plochami v bezprostrednej blízkosti. Aj kultúrne má Lindenau čo ponúknuť – medzi iným Hudobná komédia, divadlo Lindenfels na Karl-Heine-Straße a Divadlo Mladého sveta.
Pre rodiny mimoriadne atraktívne: malé ihrisko sa nachádza len pár krokov od domu.
Rozdelenie priestorov:
• Obývacia izba s terasou, prízemie
• Kuchyňa, prízemie
• Hostinské WC, prízemie
• Úložná miestnosť s prípojkami, prízemie
• Komora pod schodiskom, prízemie
• Izba 1, 1. poschodie
• Izba 2, 1. poschodie
• Izba 3, 1. poschodie
• Sprchovňa a WC, 1. poschodie
• Spálňa, 2. poschodie
• Veľká kúpeľňa s vaňou, sprchou a WC, 2. poschodie
• Domáca komora / práčovňa, 2. poschodie
• Balkón, 2. poschodie
Podzemné parkovacie miesto:
• v prilehlom viacrodinnom dome
Ďalšie informácie:
• Interno položený sieťový kábel Ethernet 1 GB/s v obytných priestoroch
• Elektrické rolety
• Svetelná kupola v schodisku
• Garáž na bicykle
• Záhradná budka s elektrickým pripojením
Parametre nehnuteľnosti
| Vek | Nad 50 rokov |
|---|---|
| Dispozícia | 5+1 |
| PENB | A - Mimoriadne úsporné |
| Plocha pozemku | 213 m² |
| Cena za jednotku | 5 870 € / m2 |
| Stav | Dobrý |
|---|---|
| Číslo inzerátu | 999144 |
| Úžitková plocha | 138 m² |
| Celkové poschodia | 3 |
Čo táto nehnuteľnosť ponúka?
| Balkón | |
| MHD 1 minúta pešo |
| Parkovanie | |
| Terasa |
V okolí nehnuteľnosti nájdete
Stále hľadáte to pravé?
Nastavte si strážneho psa. Ponuky vybrané na mieru dostanete súhrnne 1× denne e-mailom. S Premium profilom máte po ruke rovno 5 strážcov a keď sa niečo objaví, informujú vás obratom.














