Predaj bytu 4+1 • 90 m² bez realitkyGuineastraße 38 Berlin Wedding Berlin 13351
Príťažlivá kapitálová investícia v Berlín-Wedding – udržiavaná, svetlá bytoová jednotka predávaná súkromne
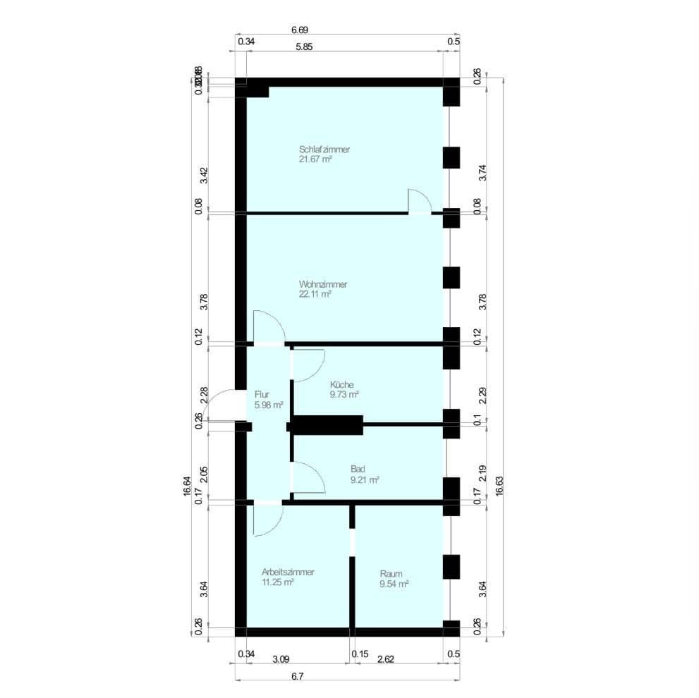
Táto priestranná a svetlá bytoová jednotka sa nachádza na štvrtom poschodí udržiavaného viacfamilijného domu v obľúbenom berlínskom štvrti Wedding. Byt zaujme premysleným dispozíciou a zahŕňa, okrem predsiene, kúpeľne a kuchyne, celkovo štyri ďalšie obytné miestnosti (pozri pôdorys). Celkový stav nehnuteľnosti možno označiť ako udržiavaný.
Byt je predávaný ako prenajatá kapitálová investícia a ponúka solídny aj bezpečný výnos. Ročný čistý príjem z prenájmu činí 6.718,32 €. Súčasný nájomný vzťah je spoľahlivý: od začiatku nájomca vždy plnil svoje platobné záväzky včas a neustále sa staral o udržiavanie bytu. Mesačné poplatky spojené s budovou dosahujú 374,81 €.
Hlavné body na prvý pohľad:
• Byt, ktorý je spoľahlivo prenajatý
• Udržiavaný stav
• Poloha v prednej časti budovy
• Štyri samostatné obytné miestnosti
• Okna vo väčšine izieb (vrátane kuchyne a kúpeľne)
• Kúrenie prostredníctvom diaľkového tepla
• Veľmi dobrá infraštruktúra
• Predaj súkromnou osobou bez maklérskych provízií
• Obmedzenie prenájmu do 05/2026
Som Vám k dispozícii pri akýchkoľvek otázkach. V prípade vážneho záujmu o kúpu a po konzultácii s nájomcom je možné byt navštíviť. Na výslovnú žiadosť nájomcu nebudú zverejnené vnútorné fotografie bytu.
Wedding patrí medzi centrálne umiestnené berlínske štvrte s veľmi dobrou dopravnou dostupnosťou do City Ost aj City West. Toto tradičné pracujúcke sídlisko sa premenilo z priemyselne dominovanej časti mesta na lokalitu moderných služieb, vedy, výskumu a kultúry.
Hlavné centrum okolo Müllerstrasse si udržalo svoje miesto v multicen-trickom usporiadaní celého mesta a poskytuje obyvateľom široký výber obchodov, stánkov, kaviarní a reštaurácií. V pešej vzdialenosti sú všetky zariadenia dennej potreby ľahko dostupné – v okolí nájdete aj dostatočný počet supermarketov, materských škôl a škôl. Okrem toho si štvrť v poslednej dobe získava na prestíži a časti Wedding patria medzi hipsterské lokality Berlína.
Parametre nehnuteľnosti
| Vek | Nad 50 rokov |
|---|---|
| Dispozícia | 4+1 |
| Číslo inzerátu | 999142 |
| Úžitková plocha | 90 m² |
| Stav | Dobrý |
|---|---|
| Poschodie | 4. poschodie z 4 |
| PENB | F - veľmi nehospodárne |
| Cena za jednotku | 3 622 € / m2 |
Čo táto nehnuteľnosť ponúka?
| MHD 3 minúty pešo |
V okolí nehnuteľnosti nájdete
Stále hľadáte to pravé?
Nastavte si strážneho psa. Ponuky vybrané na mieru dostanete súhrnne 1× denne e-mailom. S Premium profilom máte po ruke rovno 5 strážcov a keď sa niečo objaví, informujú vás obratom.











