
Prenájom bytu 3+1 • 71 m² bez realitkyBuchrainstraße 49 Frankfurt am Main Oberrad Hessen 60599
Buchrainstraße 49 Frankfurt am Main Oberrad Hessen 60599MHD 1 minúta pešoV jadrovo zrekonštruovanom trojrodinnom dome vo Frankfurte nad Mohanom-Oberrad (60599), v bezprostrednej blízkosti k Scheerwaldu, je atraktívny 3-izbový byt na prenájom.
Budova bola komplexne modernizovaná a prebudovaná na energetický dom 55. Byt ponúka moderný pôdorys, vysoko kvalitné vybavenie a udržateľný energetický koncept.
Ide o prvý vstup po jadrovej rekonštrukcii.
Prehľad bytu:
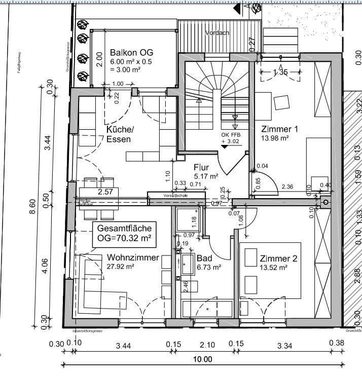
1. poschodie
Obývacia plocha: 70,32 m² (vrátane 50 % podielu balkóna)
Balkón cca 6 m²
Frankfurt-Oberrad patrí medzi obľúbené obytné lokality v južnej časti Frankfurtu. Blízkosť k Scheerwaldu ponúka vysokú hodnotu pre voľnočasové aktivity a oddych, zatiaľ čo centrum Frankfurtu, možnosti nakupovania a MHD sú ľahko dostupné. Poloha spája pokojné bývanie s mestskou dostupnosťou.
- Prvý vstup po jadrovej rekonštrukcii
- Energetický dom 55
- Olejovaná parketová podlaha
- Podlahové kúrenie s inteligentným ovládaním smart home
- Otvorený obývací a kuchynský priestor
- Moderná vstavaná kuchyňa s umývačkou riadu, rúrou a indukčnou varnou doskou
- Kvalitne dlažbové kúpeľňa s vaňou a priestrannou sprchou
- Balkón
- Elektrické žalúzie
- Okná s trojitým zasklením poskytujúce tepelnú a akustickú izoláciu
- Decentralizovaný ventilačný systém s rekuperáciou tepla
- Vlastná úložná miestnosť v suteréne
- Spoločná práčovňa
- Moderné Buderus tepelné čerpadlo
Pokojný dom s iba troma obytnými jednotkami
Voliteľne:
- Prenájom elektriny pre nájomcov prostredníctvom fotovoltaickej inštalácie
- Centrálne vysokorýchlostné internetové pripojenie (1 000 Mbit, káblové - Vodafone)
Podmienky prenájmu
- Základné nájomné: 1 490 €
- Provozné náklady: 200 € (vrátane vykurovania a teplej vody)
- Celkové nájomné: 1 690 €
Ďalšie informácie
- Voľné od 01.04.2026, v prípade dohody je možná aj odlišná termín
- Prenajíma súkromná osoba
- Vhodné pre jednotlivcov, páry alebo dvojčlenné spolubývanie
- Domáce zvieratá podľa dohody
Kontakt a prehliadka
Byty sú prenajímané súkromne.
Pri prehliadke majú záujemcovia možnosť spoznať byt. Výber prebieha podľa osobného dojmu a vhodnosti.
Prosím, pošlite nám pri svojej dopyte krátke predstavenie (počet osôb, pracovná situácia, požadovaný termín nastťahovania).
Byt je obzvlášť vhodný pre nájomcov, ktorí si cenia pokojný dom a dlhodobý nájomný vzťah.
Dopyty s kompletnými údajmi budú uprednostnené.
Parametre nehnuteľnosti
| Vek | Nad 50 rokov |
|---|---|
| Dispozícia | 3+1 |
| Číslo inzerátu | 999062 |
| Cena za jednotku | 21 € / m2 |
| Stav | Po rekonštrukcii |
|---|---|
| Poschodie | 1. poschodie z 3 |
| Úžitková plocha | 71 m² |
Čo táto nehnuteľnosť ponúka?
| Balkón | |
| MHD 1 minúta pešo |
| Pivnica |
V okolí nehnuteľnosti nájdete
Stále hľadáte to pravé?
Nastavte si strážneho psa. Ponuky vybrané na mieru dostanete súhrnne 1× denne e-mailom. S Premium profilom máte po ruke rovno 5 strážcov a keď sa niečo objaví, informujú vás obratom.
































