Predaj domu 3+1 • 87 m² bez realitkyGRUNDSTÜCK EXKLUSIV NUR FÜR DANWOOD- HAUSBAU GRAZNÄHE! Kohldorf Steiermark 8323
GRUNDSTÜCK EXKLUSIV NUR FÜR DANWOOD- HAUSBAU GRAZNÄHE! Kohldorf Steiermark 8323MHD 2 minúty pešo • GarážBungalov: Nižšie v PDF nájdete niekoľko príkladov cien!
Vážení stavební investori,
Chcete si splniť sen o vlastnom bývaní, ale nie ste si istí, ktorý dodávateľ je pre vás ten pravý alebo kto vám môže ponúknuť dom v požadovanom stavebném štýle?
S DAN-WOOD-HOUSE si môžete zrealizovať svoj domov snov – aj keď ešte nemáte konkrétny stavebný plán. Vyberte si z 130 rôznych typových domov a prispôsobte si ich zadarmo podľa svojich predstáv. Okrem toho máte na výber z rôznych variantov konštrukcie stien.
Aká genialita: Nezáleží na tom, čo DAN-WOOD alebo jednotlivé spoločnosti ponúkajú, ale na tom, ako vyzerajú vaše individuálne predstavy o vašom vysnívanom bývaní! Tu vám ponúknu poradenstvo na vysokej úrovni, ktoré vás nadchne!
Ponúkam vám svoje individuálne poradenstvo pre váš projekt! Začnem s úvodným konzultovaním, ktoré najradšej uskutočním priamo na vašom stavebnom pozemku. Tvar, rozdiely v nadmorskej výške a orientácia pozemku sú tu absolútnymi hlavnými aktérmi!
Zatiaľ ešte nemáte pozemok? Žiadny problém! Rád vám poskytnem prehľad o mnohých skvelých možnostiach, ako si môžete zariadiť DAN-WOOD dom. Je tu toľko vzrušujúcich aspektov, ktoré je potrebné prediskutovať: typ domu, dispozícia, tvar strechy, kúrenie, elektroinštalácie, tienenie a možné vybavenie ako „Smart Home“.
Je naozaj dôležité poznať celkové finančné náklady vrátane vzorových projektov!
S radosťou vám oznamujem, že pre vás pripravím predbežnú vzorovú ukážku. Takto si môžete tieto náklady jednoducho naplánovať! Je to naozaj skvelá pomoc! Vďaka tomu nielenže vytvoríte finančný plán, ale budete môcť hľadať aj možnosti financovania.
Neváhajte, kontaktujte ma hneď teraz! 0676 5537747
Objednávka katalógu pod "Katalog Serie Today" tatjana.wyss@danwood.at
Pri objednávke uveďte prosím svoju adresu a telefónne číslo.
Na vašom pozemku alebo v…
Güssing: cca 2 600 m², úplne rovnina, pozemkové veľkosti a polohy pozemkov sú voľne voliteľné. Rozmery od 500 m² do 1500 m²
Tu sú stavebné pozemky prvej triedy! V najlepšej lokalite a s úchvatným výhľadom na nádherný zámok v Güssingu!
Güssing ponúka perspektívny, cenovo dostupný a energeticky nezávislý život v prírode, čo z investície do nehnuteľnosti v tejto oblasti robí strategickú hodnotovú investíciu.
Prečo Güssing
Energetický priekopník a udržateľnosť:
Mesto je energeticky samostatné a medzinárodne uznávané.
Vysoké pokrytie (nad 85 %) regionálnym teplom z biomasy zabezpečuje stabilné a prijateľné náklady na kúrenie.
Dostupné ceny nehnuteľností:
Ceny sú omnoho priaznivejšie než priemer v Rakúsku, čo umožňuje splniť si sen o vlastnom dome na priestrannom pozemku.
Silná infraštruktúra a kvalita života:
Ako predmestie okresného mesta Güssing garantuje krátke vzdialenosti a najlepšie služby.
Plánované veľké investície:
Nový vzdelávací kampus a moderné lekárske centrum (od roku 2026).
Kultúrne centrum (zámok Güssing) a blízkosť kúpeľov.
Úplné otvorenie S7 prináša Güssingu a jeho obyvateľom značné výhody:
Rýchlejšie napojenie na metropolitné oblasti: Rýchlostná cesta výrazne skracuje cestovný čas na diaľnicu A2 južnú, čím sa značne znížia doby cestovania do Graz a Viedne.
Odľahčenie regiónu: Preusmerňuje tranzitnú premávku, ktorá predtým prechádzala ťažko zaťaženými obcami ako Fürstenfeld a Rudersdorf, na novú trasu.
Ekonomické impulzy: Nové napojenie, mimo iného pomocou prípojky pri Rudersdorf/Dobersdorf a blízkosť k pripojeniu Königsdorf, posilňuje Güssing ako okresné predmestie a priemyselnú zónu vďaka lepšej dostupnosti a podpore nových priemyselných parkov.
Hodnotová stabilita a potenciál rozvoja:
Cielené investície obce do infraštruktúry, oživenia mestského jadra a technologického centra zaisťujú dlhodobú hodnotovú stabilitu nehnuteľností.
Obecná stratégia je zameraná na zvládnutie demografických výziev a etablovanie Güssingu ako atraktívneho miesta na bývanie a podnikanie.
Cieľová skupina
Rodiny, ktoré hľadajú budúcnosť, bezpečie a prírodu, ako aj všetkých, ktorým záleží na nízkych nákladoch na energiu a ekologickej zodpovednosti.
Ďalšie pozemky v:
Pozemok, 8323 Kohldorf: Stavebný pozemok s veľa slnkom v východnom Štajersku, 15 km od Graz!
Veľkosť 758 m², kúpna cena € 66 000, --
Pozemok, 8323 Kohldorf: Slnečný stavebný pozemok v Kohldorfe, 15 km východne od Graz!
Veľkosť 787 m², kúpna cena € 69 000, --
Pozemok, 8311 Markt Hartmannsdorf: Plne sprístupnený, slnečný stavebný pozemok v Markt Hartmannsdorf
Veľkosť 920 m², kúpna cena € 53 000, --
Pozemok, 9335 Lölling Graben: Stavebný pozemok s úchvatným výhľadom do diaľky v malebnom škandinávskom prostredí Kärnten
Veľkosť 1001 m², kúpna cena € 50 000, --
Pozemok, 8075 Hart pri Grazi: Slnečný pozemok na prahu Grazu
Veľkosť 1980 m², kúpna cena € 475 000, --
Pozemok na predaj v Stainz: Slnečný pozemok na okraji mesta Stainz
Veľkosť 825 m², kúpna cena € 149 000,
Medzi vlastníka pozemku a realizátora domu neexistuje žiadne ekonomické spojenie.
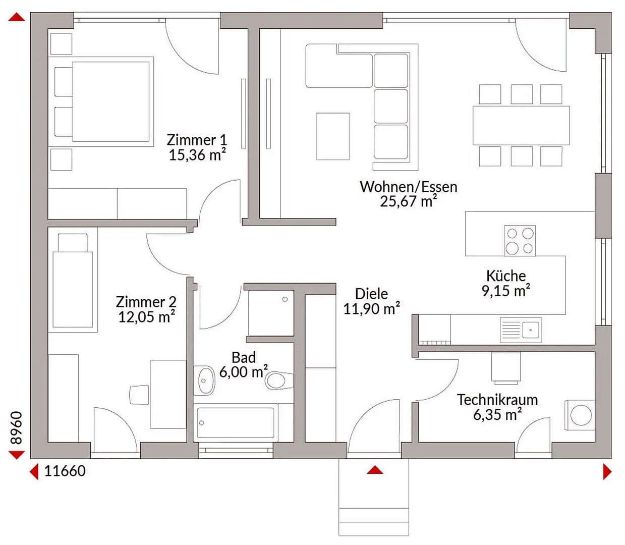
BUNGALOV – 3 izbový, kúpeľňa s WC, exkluzívne vybavenie!
Pozemok: 500 m², 1000 m², 1500 m² – podľa požiadavky k dispozícii
V cene obsahuje:
Kľúč odovzdania (namontované nábytok, stačí nasťahovanie!)
Dodávka a montáž od konca základu hore
Zateplená strešná krytina odolná voči snežným záťažam
Vzduch – voda – tepelná čerpadlo, podlahové kúrenie
Decentralizovaná ventilácia obytných priestorov s rekuperáciou tepla (v lete chladí)
Elektrické žalúzie v celom dome
Všetky podlahové krytiny podľa vášho výberu
Všetky sanitárne zariadenia podľa vášho výberu
Príprava na fotovoltaiku
Balík “bezstarostného bývania”
VOLITEĽNÉ: Samostatná práca je samozrejme možná!
Poradenstvo – Predaj: pani Tatjana Wyss
+43 676 553 77 47, tatjana.wyss@danwood.at
Okamžité informácie či úvodné poradenstvo!
Ďalšie ponuky
https://qr.scan.page/uploads/pdf/1751712478803_686335a001f76.pdf
Požiadajte o stavebný opis a katalógy!
Na to je potrebné, aby ste uviedli telefónne číslo, e-mailovú adresu a adresu.
Ďakujem veľmi pekne!
Parametre nehnuteľnosti
| Vek | Nad 50 rokov |
|---|---|
| Dispozícia | 3+1 |
| Úžitková plocha | 87 m² |
| Celkové poschodia | 1 |
| Stav | Novostavba |
|---|---|
| Číslo inzerátu | 998848 |
| Plocha pozemku | 1 m² |
| Cena za jednotku | 2 564 € / m2 |
Čo táto nehnuteľnosť ponúka?
| Garáž |
| MHD 2 minúty pešo |
V okolí nehnuteľnosti nájdete
Stále hľadáte to pravé?
Nastavte si strážneho psa. Ponuky vybrané na mieru dostanete súhrnne 1× denne e-mailom. S Premium profilom máte po ruke rovno 5 strážcov a keď sa niečo objaví, informujú vás obratom.












