Predaj domu 4+1 • 124 m² bez realitkyGRUNDSTÜCK EXKLUSIV NUR FÜR DANWOOD-HAUSBAU ORTSRAND STAINZ St Stefan ob Stainz Steiermark 8511
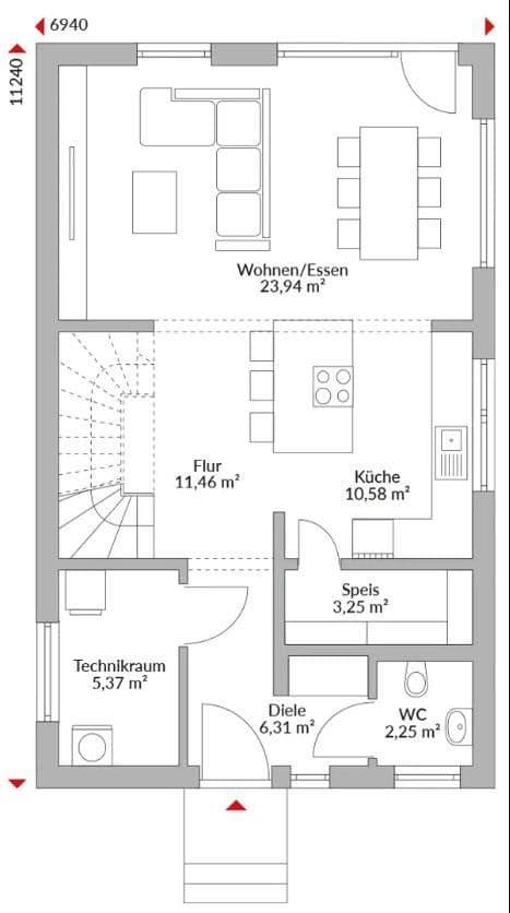
GRUNDSTÜCK EXKLUSIV NUR FÜR DANWOOD-HAUSBAU ORTSRAND STAINZ St Stefan ob Stainz Steiermark 8511MHD do minúty pešo • GarážTento dom, napriek malej zastavanej ploche, spĺňa všetky požiadavky moderného bývania. Tento priestorový zázrak napĺňa všetky nároky moderného bývania – s maximálnou funkčnosťou. Ideálny pre tých, ktorí plánujú premyslene a nechcú si nič nechýbať. Premyslený dom, ktorý prekvapí: s obývacím priestorom naplneným svetlom, dôvtipným rozdelením priestorov a so všetkým, čo moderné bývanie vyžaduje. Pre ľudí, ktorí majú radi to podstatné – a cení si komfort.
Funkčný, efektívny, komfortný: Tento dom ukazuje, koľko kvality života môže byť ukryté v kompaktnom dizajne. Pre všetkých, ktorí plánujú s víziou – a využívajú priestor inteligentne.
Na vašom pozemku alebo v…
Güssing: cca 2 600 m², úplne rovná poloha. Veľkosti a polohy pozemkov sú voľne zvoliteľné. Rozmery od 500 m² do 1500 m².
Tu sú stavebné pozemky prvej triedy! V najlepšej lokalite a s dychberúcim výhľadom na nádherný hrad Güssing!
Güssing ponúka budúcnosti zabezpečený, dostupný a energeticky nezávislý život medzi zeleňou, čo robí z investície do nehnuteľnosti tu strategickú hodnotovú investíciu.
Prečo Güssing
Energetický priekopník a udržateľnosť:
Mesto je energeticky autonómne a medzinárodne uznávané.
Vysoké pokrytie (viac ako 85 %) regionálnym diaľkovým teplom z biomasy vedie k stabilným a výhodným nákladom na kúrenie.
Dostupné ceny nehnuteľností:
Ceny sú ešte výrazne priaznivejšie než v rakúskom priemere, čo umožňuje splnenie sna o vlastnom dome s veľkorysými pozemkami.
Silná infraštruktúra a kvalita života:
Ako okresné predmestie zaručuje Güssing krátke vzdialenosti a najlepšiu dostupnosť služieb.
Plánované veľké investície: nový vzdelávací kampus a moderné lekárske centrum (od roku 2026).
Kultúrne centrum (hrad Güssing) a blízkosť termálnych kúpeľov.
Plné otvorenie S7 prináša značné výhody pre Güssing a jeho obyvateľov:
• Rýchlejšie spojenie s aglomeráciami: Diaľnica výrazne skracuje cestovný čas na diaľnicu A2 Süd, čím sa výrazne znižuje doba cesty do Grazu a Viedne.
• Uvoľnenie regiónu: Nová trasa presmeruje tranzitnú dopravu, ktorá predtým zaťažovala obce ako Fürstenfeld a Rudersdorf.
• Ekonomické impulzy: Nové spojenie, okrem iného cez prípojku pri Rudersdorf/Dobersdorf a blízkosť k spojeniu Königsdorf, posilňuje Güssing ako okresné predmestie a obchodnú lokalitu vďaka lepšej dostupnosti a podpore nových priemyselných parkov.
Hodnotová stabilita a rozvojový potenciál:
Cielené obce investície do infraštruktúry, oživenia centra mesta a do technologického centra zabezpečujú dlhodobú hodnotovú stabilitu nehnuteľností.
Obecná stratégia je zameraná na zvládnutie demografických výziev a etablovanie Güssingu ako atraktívnej lokality pre bývanie aj podnikanie.
Cieľová skupina
Rodiny, ktoré hľadajú budúcnosť, bezpečnosť a prírodu, ako aj všetkých, ktorí si cenia nízke energetické náklady a ekologickú zodpovednosť.
Ďalšie pozemky v:
Pozemok, 8323 Kohldorf: Stavebný pozemok so slnečným postavením v kopcovitom prostredí východného Štajerska, 15 km od Grazu!
Veľkosť: 758 m², kúpna cena: € 66.000, --
Pozemok, 8323 Kohldorf: Slnečný stavebný pozemok v Kohldorfe, 15 km východne od Grazu!
Veľkosť: 787 m², kúpna cena: € 69.000, --
Pozemok, 8311 Markt Hartmannsdorf: Úplne spracovaný, slnečný stavebný pozemok v Markt Hartmannsdorf.
Veľkosť: 920 m², kúpna cena: € 53.000, --
Pozemok, 9335 Lölling Graben: Stavebný pozemok s úchvatným výhľadom do diaľky v malebnej korúnskej horskej oblasti.
Veľkosť: 1001 m², kúpna cena: € 50.000, --
Pozemok, 8075 Hart pri Graze: Slnečný pozemok pred bránami Grazu.
Veľkosť: 1980 m², kúpna cena: € 475.000, --
Pozemok na predaj v Stainz: Slnečný pozemok na okraji mesta Stainz.
Veľkosť: 825 m², kúpna cena: € 149.000,
Medzi vlastníkom pozemku a staviteľom domu neexistuje žiadne hospodárske spojenie.
Rodinný dom so 4 izbami – exkluzívne vybavenie!
Odovzdaný k nastěhovaniu vrátane dodania a montáže od okraja fundamentu.
• Strešná konštrukcia posilnená proti snežnej záťaži
• Tepelné čerpadlo vzduch-voda a podlahové kúrenie
• Vetranie obytných priestorov s rekuperáciou tepla (letné chladenie)
• Elektrické rolety v celom dome
• Podlahové krytiny a sanitárne zariadenia podľa vlastného výberu
• Príprava na fotovoltaiku
• Balík "všetko-všetko"
Možnosť vlastnej účasti – úplne podľa vašich predstáv.
Poradenstvo a predaj:
S. Tatjana Wyss
+43 676 553 77 47
tatjana.wyss@danwood.at
Zabezpečte si ešte dnešnú konzultáciu!
Požiadajte o stavebný opis a katalógy!
Pre tento účel je potrebné uviesť telefónne číslo, e-mailovú adresu a adresu.
Ďakujeme!
FINANCOVACÍ KALKULÁTOR
https://www.finaustria.at/finanzierungsrechner
Ďalšie ponuky!
https://qr.scan.page/uploads/pdf/1752348182250_686ba1debcb60.pdf
Parametre nehnuteľnosti
| Stav | Novostavba |
|---|---|
| Číslo inzerátu | 998846 |
| Plocha pozemku | 1 m² |
| Cena za jednotku | 2 248 € / m2 |
| Dispozícia | 4+1 |
|---|---|
| Úžitková plocha | 124 m² |
| Celkové poschodia | 2 |
Čo táto nehnuteľnosť ponúka?
| Garáž |
| MHD 0 minút pešo |
V okolí nehnuteľnosti nájdete
Stále hľadáte to pravé?
Nastavte si strážneho psa. Ponuky vybrané na mieru dostanete súhrnne 1× denne e-mailom. S Premium profilom máte po ruke rovno 5 strážcov a keď sa niečo objaví, informujú vás obratom.





















