
Predaj domu 5+1 • 126 m² bez realitkyEschenweg 41 Bamberg Bamberg Bayern 96050
Eschenweg 41 Bamberg Bamberg Bayern 96050MHD 7minút pešo • ParkovanieUšetríte 19.278 € maklérskeho poplatku.
Tento upravený radový dom z roku 2000 sa nachádza v pokojnej a obľúbenej bývalej NATO osade – ideálne priateľskom prostredí pre rodiny so silným susedským pocitom.
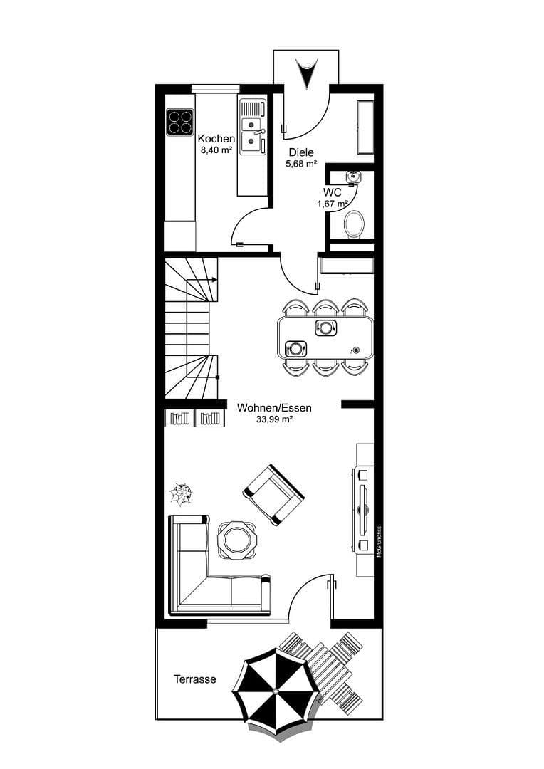
V prízemí vás čaká svetlá, približne 34 m² veľká obývacia izba s prístupom na slnečnú západnú terasu – ideálna pre pokojných večery a priateľské stretnutia. Samostatná kuchyňa, hostinská toaleta a vstupná chodba dokončujú túto úroveň.
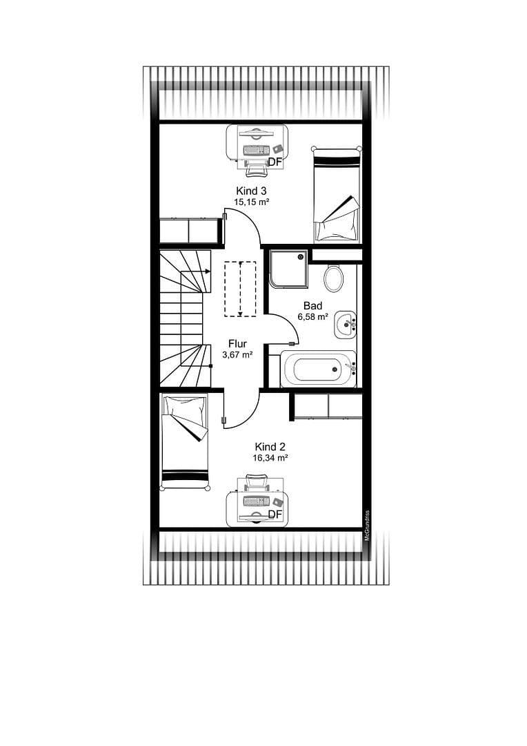
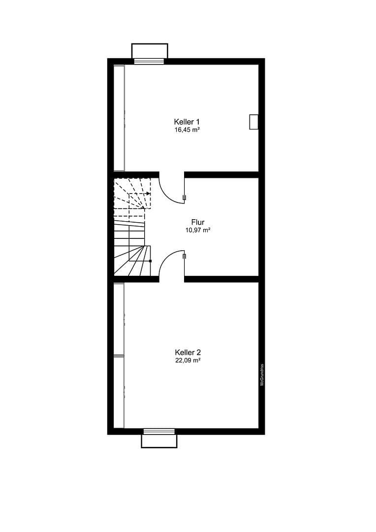
Vo vyšších poschodiach nájdete štyri priestranné spálne a dve veľké kúpeľne so sprchou aj vaňou – perfektné pre rodiny, hostí alebo ako domáca kancelária. Celý sklep poskytuje dodatočný úložný priestor a flexibilné možnosti využitia.
Dom je moderný, dobre izolovaný a vyniká mimoriadne dobrými energetickými hodnotami – čo zaručuje komfort a nízke prevádzkové náklady. Dve vonkajšie parkovacie miesta je možné dokúpiť za 20.000 € navyše.
Domov, ktorý vás očarí priestorom, štruktúrou a atmosférou pohody – ideálny pre rodiny s až piatimi členmi.
Eschenweg v bývalej „NATO osade“ na východe Bambergu je viac než len adresa – je to miesto, kde sa dá usadiť a cítiť sa dobre. Pokojná obytná štvrť, obklopená zeleňou a harmonickým susedstvom, sa už dávno stala obľúbeným útočiskom pre mladé rodiny.
Tu môžu deti bezstarostne behať po bezpečných uliciach, zatiaľ čo vy si vychutnávate výnimočnú kvalitu bývania. Osada vyžaruje atmosféru bezpečia a spolupatričnosti – pravý pocit domova, ktorý cítite okamžite.
Napriek idylickej polohe ste výborne napojení: Len približne 500 metrov od neho sa nachádza zastávka mestského autobusu, ktorý vás každých 15 minút pohodlne dovezie do centra mesta. Autom dosiahnete diaľničnú prípojku už približne po 1.000 metroch – ideálne pre dojížďajúcich do práce alebo na výlety do okolia.
Obchodné príležitosti, školy, materské školy a voľnočasové zariadenia sa nachádzajú v bezprostrednej blízkosti, takže vy aj vaša rodina si môžete vychutnať krátke vzdialenosti a najvyšší komfort bývania.
Eschenweg spája pokojné, prírodné bývanie s najlepšou infraštruktúrou – čím vytvára ideálne prostredie, kde rodinný život a každodenné sny idú ruka v ruke.
Parametre nehnuteľnosti
| Vek | Nad 50 rokov |
|---|---|
| Stav | Dobrý |
| Číslo inzerátu | 998770 |
| Úžitková plocha | 126 m² |
| Celkové poschodia | 3 |
| Dostupné od | 10. 3. 2026 |
|---|---|
| Dispozícia | 5+1 |
| PENB | B - Veľmi úsporné |
| Plocha pozemku | 178 m² |
| Cena za jednotku | 4 127 € / m2 |
Čo táto nehnuteľnosť ponúka?
| Pivnica | |
| MHD 7 minút pešo |
| Parkovanie | |
| Terasa |
V okolí nehnuteľnosti nájdete
Stále hľadáte to pravé?
Nastavte si strážneho psa. Ponuky vybrané na mieru dostanete súhrnne 1× denne e-mailom. S Premium profilom máte po ruke rovno 5 strážcov a keď sa niečo objaví, informujú vás obratom.























