Predaj domu 7+kk • 164 m² bez realitky, Bádensko-Wurttembersko
Die nehnuteľnosť zaujme svojou pokojnou, ale zároveň dopravne výhodnou polohou v ustálenom a udržiavanom obytnom prostredí kúpeľného mesta Waldbronn, ktoré sa vyznačuje vysokou kvalitou života. Pri ponúkanej dvojdomovke vyniká najmä premyslený koncept bývania s presvedčivým rozvrhnutím priestorov.
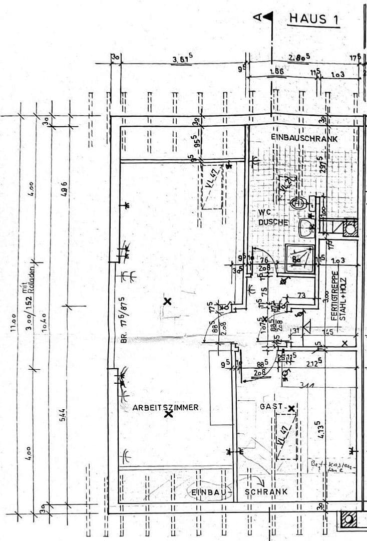
Do domu vstúpite cez chodbu, ku ktorej náleží hostinská toaleta s umývadlom a malá uskladňovacia miestnosť. Dvere vpred vedú do otvoreného obytného priestoru so schodiskom. Na južnej strane sa otvára veľkorysá obývacia izba s krbom a prístupom na terasu a do pokojnej zadnej záhrady. Na severnej strane sa nachádza jedáleň, ktorá je hneď vedľa kuchyne.
V suteréne vedie otvorená chodba do (hobby) miestnosti s vlastným vstupom cez vonkajšie schody, práčovne s podlaženou sprchou a do veľkej pivnice (na zásoby) s dostatkom úložného priestoru. V malej kotolni (odbočenej od hobby miestnosti) sa nachádza olejové kúrenie, pričom jeho nádrž (10 000 litrov) leží pod príjazdovou cestou pred domom.
Na hornom poschodí sa nachádzajú 3 (detské) izby, okrem toho aj (rodičovská) spálňa, kúpeľňa s dvoma umývadlami, vaňou a sprchou. Dve izby situované na južnej strane majú každá prístup na balkón.
Oceľ-dreveným schodiskom, ktoré vedie z pivnice až na strechu, sa dostanete do podkrovia. Z malej chodby tu nájdete (hostinskú) kúpeľňu s toaletou a sprchou, (hostinskú) izbu a veľkú strešnú izbu s výhľadom a klimatizáciou.
K nehnuteľnosti patrí aj garáž, ktorá nielenže poskytuje miesto pre automobil, ale aj dodatočný priestor pre uskladnenie bicyklov a záhradného náradia.
Nehnuteľnosť sa nachádza v mimoriadne pokojnej lokalite (nejde o priechodnú ulicu, je zasadená dozadu) na mierne vyvýšenine medzi časťami mesta Reichenbach a Busenbach. Prostredie vhodné pre rodiny s deťmi sa vyznačuje niekoľkými blízko situovanými ihriskami.
Rôzne nákupné možnosti a reštaurácie sú pohodlne dostupné pešo. Školky, školy, lekári a lekárne sa nachádzajú v bezprostrednom okolí. Tiež možnosti voľnočasových aktivít (mimo iného športové ihriská, tenisové kurty, vonkajší bazén, korčuliarska hala) a relaxačné príležitosti (napríklad kúpeľný park s minigolfom, Albtherme, Severný Čierny les) sú vzdialené len niekoľko minút chôdze.
Dobré spojenie s verejnou dopravou je zabezpečené najmä linkou S11 smerom do Karlsbadu, ale aj do Ettlingenu a Karlsruhu. Ďalšie autobusové linky s blízkymi zastávkami toto spojenie dopĺňajú. Rýchle pripojenie je navyše zaručené diaľnicou A8.
• Masívna stavba
• Dostatok prirodzeného svetla vo všetkých izbách (s výnimkou práčovne a pivnice)
• Klimatizácia vo veľkej strešnej izbe
• Okná s dvojitým zasklením
• Oceľ-drevené schodisko
• Krb v obývacej izbe
• 2 kúpeľne s prirodzeným osvetlením, navyše podlažená sprcha v pivnici, hostinská toaleta
• Garáž, čiastočne rekonštruovaná v roku 2019, s dodatočným priestorom pre bicykle a elektrickou garážovou bránou
• Južná terasa
• Južný balkón, čiastočne rekonštruovaný v roku 2019
• Západná fasáda obnovená a izolovaná v roku 2020
• Olejové ústredné kúrenie, obehové čerpadlo obnovené v roku 2024
• Veľa úložného priestoru v pivnici, ako aj v niekoľkých odbočkách a nižších priečkach v podkroví
Parametre nehnuteľnosti
| Vek | Nad 50 rokov |
|---|---|
| Dispozícia | 7+kk |
| PENB | G - Mimoriadne nehospodárne |
| Plocha pozemku | 361 m² |
| Cena za jednotku | 2 835 € / m2 |
| Stav | Pred rekonštrukciou |
|---|---|
| Číslo inzerátu | 998711 |
| Úžitková plocha | 164 m² |
| Celkové poschodia | 4 |
Čo táto nehnuteľnosť ponúka?
| Balkón | |
| Garáž | |
| Terasa |
| Pivnica | |
| MHD 1 minúta pešo |
V okolí nehnuteľnosti nájdete
Stále hľadáte to pravé?
Nastavte si strážneho psa. Ponuky vybrané na mieru dostanete súhrnne 1× denne e-mailom. S Premium profilom máte po ruke rovno 5 strážcov a keď sa niečo objaví, informujú vás obratom.










