
Predaj bytu 2+1 • 57 m² bez realitkyMydlářka, Praha - Dejvice
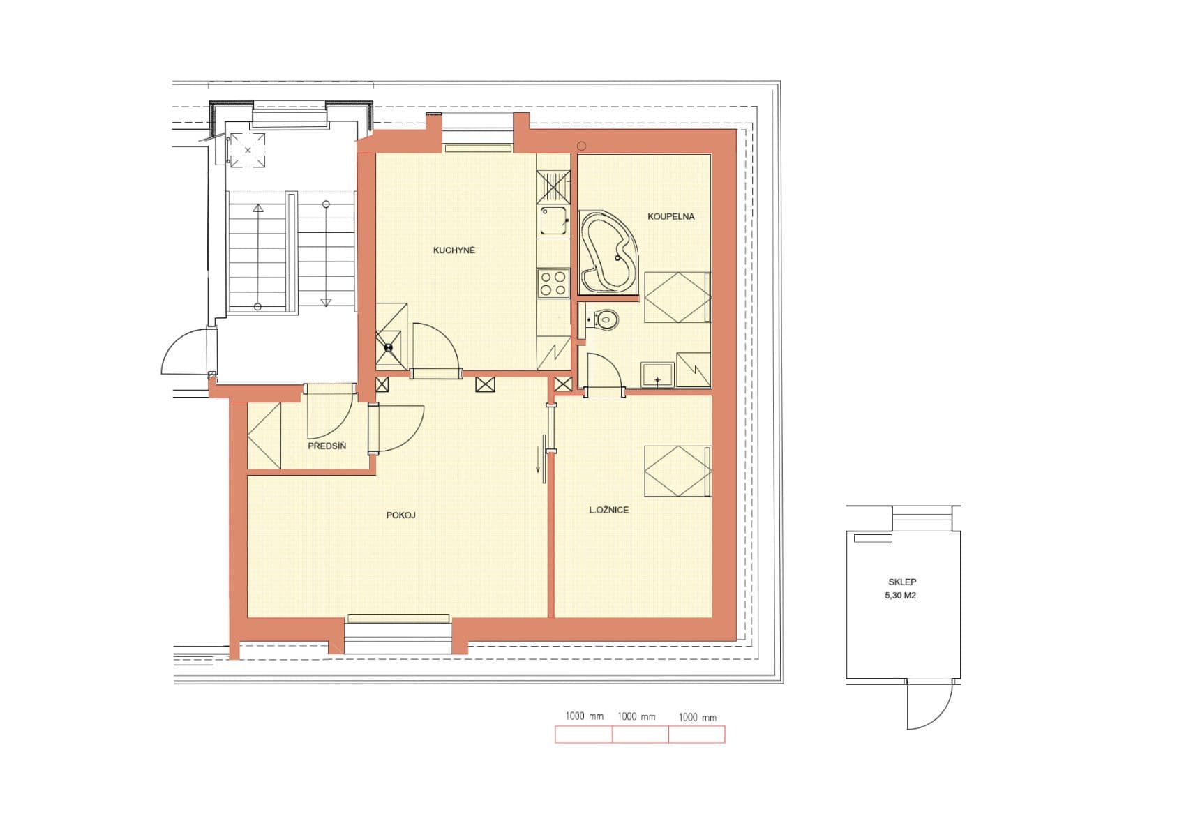
Mydlářka, Praha - DejvicePivnica 5,3 m²PRODEJ: Světlý byt 2+1 , podlahová plocha (58,6m²) v srdci Dejvic – ulice Mydlářka.
Hledáte bydlení na jedné z nejprestižnějších adres v Praze? Nabízíme vám byt s neopakovatelnou atmosférou v klidné části Dejvic, jen pár kroků od metra, s výhledem na Pražský hrad.
Základní informace:
• Dispozice: 2+1 (samostatná kuchyně, dva pokoje)+ sklep 5,3m2
• Podlahová plocha: 58,6 m²
• Lokalita: Praha 6 – Dejvice, ulice Mydlářka, klidná ulice bez provozu,
• Stav: Dobrý, udržovaný (ideální k okamžitému nastěhování nebo modernizaci dle vlastních představ)
• Typ budovy: Kvalitní cihlový dům, půdní vestavba z roku 2008, vytápění vlastním plynovým kotlem,nízká spotřeba
energie.
Popis bytu:
Byt se nachází v 4.patře udržovaného cihlového domu. Díky lokalitě a orientaci je prostor velmi světlý a tichý.
• Doprava: Metro A (Dejvická) 5 minut chůze, zástavka tramvaje 150m.
• Příroda: Pár minut od parku Stromovka nebo do Šárky.
• Služby: Vyhlášené dejvické kavárny, restaurace, farmářské trhy na "Kulaťáku" a kompletní síť škol a úřadů.
Parametre nehnuteľnosti
| Vek | 10 - 30 rokov |
|---|---|
| Stav | Veľmi dobrý |
| Dispozícia | 2+1 |
| Poschodie | 5. poschodie z 5 |
| Vykurovanie | Plynové |
| Vlastníctvo | Osobné |
| Rekonštrukcia | Kompletné |
| Úžitková plocha | 57 m² |
| Dostupné od | 7. 3. 2026 |
|---|---|
| Konštrukcia budovy | Tehla |
| Vybavené | Nevybavené |
| Prevedenie | Štandardné |
| Číslo inzerátu | 998663 |
| PENB | G - Mimoriadne nehospodárne |
| Umiestnenie | Tichá lokalita |
| Cena za jednotku | 166 666,67 CZK / m2 |
Čo táto nehnuteľnosť ponúka?
| Pivnica 5,3 m² |
V okolí nehnuteľnosti nájdete
Stále hľadáte to pravé?
Nastavte si strážneho psa. Ponuky vybrané na mieru dostanete súhrnne 1× denne e-mailom. S Premium profilom máte po ruke rovno 5 strážcov a keď sa niečo objaví, informujú vás obratom.
















