
Prenájom bytu 1+1 • 63 m² bez realitky, Porýnie-Falcko
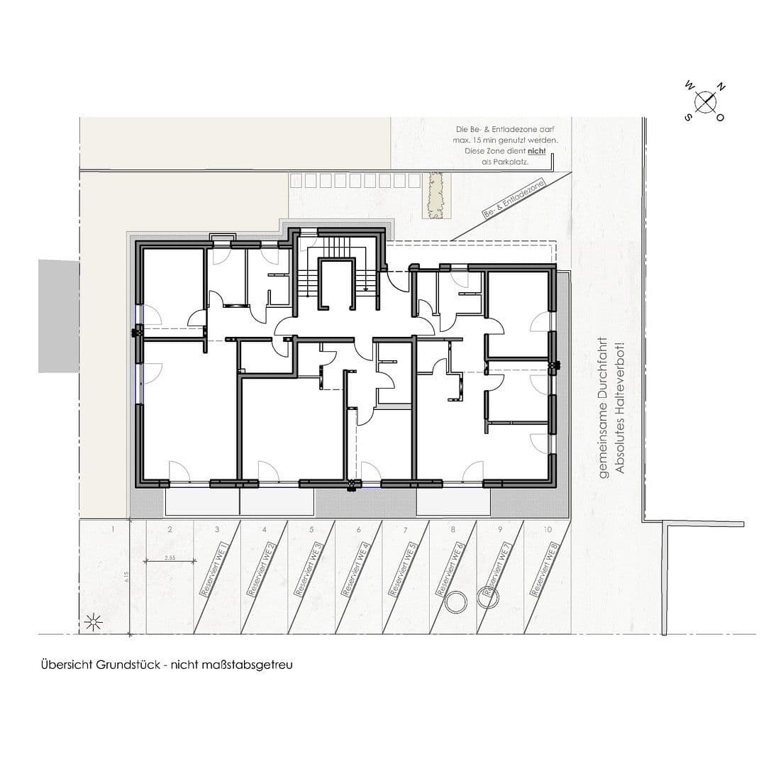
, Porýnie-FalckoMHD do minúty pešo • Výťah • ParkovanieV pôvabnom Piesporte, jednej z najväčších vinárskych obcí na Mozeli, vzniká na ploche približne 765 m² moderný viacrodinový dom, ktorý zaujme nielen architektonicky, ale aj udržateľne. Obdĺžnikový stavebný celok oslní svojou jasnou a priamočiarym architektonickým prejavom, ktorý zdôrazňuje moderný dizajn. Na dvoch plno podlažiach a jednom podkroví vzniká celkovo osem vysoko kvalitných bytových jednotiek.
Byty, s obytnými plochami od približne 62 m² do 94 m², ponúkajú priestranné terasy v prízemí, extra široké balkóny v poschodí a strešné terasy v penthouse bytoch. Veľké oknové fasády a orientácia balkónov na juhovýchod zabezpečujú, okrem pôsobivého výhľadu na okolité vinice, aj svetlom naplnenú atmosféru.
Centrálny výťah umožňuje pohodlný prístup do bytových jednotiek bez prahov. Okrem toho je obytná budova zavesená pod zemou a poskytuje obyvateľom nielen vlastné pivničné priestory, ale aj centrálnu práčovňu so sušiacim priestorom a veľkú miestnosť na uloženie bicyklov. Táto miestnosť je pohodlne dostupná pomocou priestrannej výťahovej kabíny, ktorá je okrem prepravy bicyklov tiež vhodná pre prevoz ležiacich osôb alebo pacientov.
Zastrešený vstupný priestor ponúka poštovú schránku a video interkom chránené pred poveternostnými vplyvmi. Pre pohodlie obyvateľov je priamo pred budovou umiestnených desať parkovacích miest pre automobily. Všetky miesta sú vybavené príslušnými prípojkami pre elektrické vozidlá v súlade so zákonom o elektromobilitnej infraštruktúre budov (GEIG).
Pre projekt bola na akreditovanej certifikačnej inštitúcii podaná žiadosť o certifikáciu udržateľnosti s cieľom získať odznak kvality „Udržateľná budova“ (NH). Tým sa potvrdzuje cieľ budovy, ktorá má byť nielen architektonickým, ale aj ekologickým a energetickým vzorom.
Piesport je idylická obec v okrese Bernkastel-Wittlich v Porúrskej Sasku a patrí medzi najväčšie vinárske obce na Mozeli.
Pre svojich približne 2 300 obyvateľov má obec supermarket, pekáreň a mäsáreň, ako aj pobočku pošty a banky. Na väčšie nákupy je dobre dostupné susedné mesto Bernkastel-Kues. Lekárska starostlivosť je zabezpečená lokálnymi praktickými lekármi a zubnými ordináciami, pričom špecializované ošetrenia sú poskytované v blízkej nemocnici v Bernkastel-Kues. Piesport nemá vlastnú strednú školu, ale disponuje dobrými spojeniami so školami v Bernkastel-Kues. Okrem základnej školy má Piesport aj miestnu materskú školu pre starostlivosť o najmenších.
Celkovo Piesport ponúka vysokú kvalitu života s dobrou infraštruktúrou a je obzvlášť vhodný pre rodiny aj starších ľudí.
Viacrodinový dom je šetrne vykurovaný moderným vzduch – tepelným čerpadlom, ktoré v kombinácii s mimoriadne dobre izolovaným, vzduchotesným obalom budovy zabezpečuje nízke náklady na vykurovanie. Vysoce tepelne izolačné okná s trojsklom a konštrukcia bez tepelných mostov významne prispievajú k minimálnej spotrebe energie. Riadené vetranie so spätným získavaním tepla zabezpečuje počas celého roka čerstvý a príjemný vzduch vo všetkých obytných priestoroch bez zbytočných energetických strát.
Rozsiahlo zalesnená plochá strecha, tzv. „zelená strecha“, prispieva k príjemnejšiemu vnútornému prostrediu budovy a zároveň pomáha znižovať náklady na vykurovanie a klimatizáciu. Vrstva rastlín navyše pôsobí ako prirodzená ochrana strešnej krytiny pred poveternostnými vplyvmi a UV žiarením.
Veľké okná a vnútorná výška izbiek približne 2,56 m zabezpečujú svetlé a slnečné obytné priestory. Vonkajšie zatemnenie okien je riešené pomocou motorizovaných horizontálnych lamiel, tzv. raffstore, ktoré nielen že chránia pred priamym slnečným žiarením, ale zároveň pomáhajú udržať vonkajšie teplo v lete a priviesť teplo do interiéru v zime.
V suteréne sa nachádza miestnosť na bicykle, ktorá ponúka suché a bezpečné úložisko pre bicykle. Výťahová kabína s hĺbkou 2,10 m poskytuje dostatok priestoru na bezproblémový prevoz bicyklov do pivnice.
Steny všetkých obytných miestností budú obložené neutrálnou rohovou tapetou strednej husto a natreté bielou farbou. Stropy budú natreté svetlou farbou. V rámci bytov bola podlaha vo všetkých obytných miestnostiach obložená vinylovými panelmi v drevenom vzhľade. Kúpeľne dostanú obklad z dlažby. Biele vnútorné dvere ladia s moderným konceptom priestoru a kuchyne sú už zabudované.
Parametre nehnuteľnosti
| Vek | Nad 50 rokov |
|---|---|
| Stav | Veľmi dobrý |
| Číslo inzerátu | 998619 |
| Úžitková plocha | 63 m² |
| Dostupné od | 1. 5. 2025 |
|---|---|
| Dispozícia | 1+1 |
| PENB | A - Mimoriadne úsporné |
| Cena za jednotku | 10 € / m2 |
Čo táto nehnuteľnosť ponúka?
| Pivnica | |
| Parkovanie | |
| Terasa |
| Výťah | |
| MHD 0 minút pešo |
V okolí nehnuteľnosti nájdete
Stále hľadáte to pravé?
Nastavte si strážneho psa. Ponuky vybrané na mieru dostanete súhrnne 1× denne e-mailom. S Premium profilom máte po ruke rovno 5 strážcov a keď sa niečo objaví, informujú vás obratom.
















