Prenájom nebytového priestoru • 413 m² bez realitkyDarmstädter Straße 24, , Hesensko
Darmstädter Straße 24, , HesenskoMHD 2 minúty pešo • ParkovanieV dobre viditeľnej lokalite na ulici Darmstädter Straße v Roßdorfe je k prenájmu táto všestranne využiteľná priemyselná/obchodná plocha (postavená v roku 1960). Jednotka disponuje priestrannou výkladnou časťou orientovanou k ulici a je ideálna pre maloobchod, ordináciu, kancelárske priestory či poskytovanie služieb.
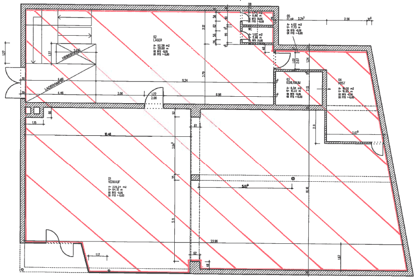
Celková plocha približne 413 m² sa rozprestiera na priestrannom prízemí s predajňou/pracovnou plochou (230 m²) s doplnkovými prídavnými a skladovacími priestormi, ako aj na ďalších samostatných prídavných, oddychových a skladovacích miestnostiach v poschodí.
Vybavenie a charakteristiky:
• Veľká výkladná sklenená fasáda s účinnou reklamou
• Flexibilné rozdelenie priestorov
• Viaceré prídavné miestnosti
• K dispozícii sú aj WC zariadenia
• Dodatočné skladovacie priestory
• Parkovacie miesta pre autá priamo na pozemku
• Naklonený prístup z kopca s veľkými skladovými dverami a vnútornou zdvihacou plošinou
• Dobrá dostupnosť pre zákazníkov aj zamestnancov
Centrálnu polohu v Roßdorfe dopĺňa dobré dopravné spojenie smerom na Darmštadt a okolitá ustálená obytná a zmiešaná zástavba. Plocha sa najmä hodí na využitie zamerané na zákazníka so vstupom verejnosti.
Roßdorf sa nachádza výhodne z hľadiska dopravy v okrese Darmstadt-Dieburg, bezprostredne juhovýchodne od Darmstadtu. Obec ťaží z ekonomickej sily vedecko-technologickej oblasti Darmstadt a z blízkosti regiónu Rýn-Majn.
Vďaka blízkosti spolupatričných diaľnic B26 a B38 a diaľnic A5 a A67 má táto nehnuteľnosť výborné spojenie s:
• Darmstadtom (cca 10 minút)
• Dieburgom (cca 7 minút)
• Frankfurtom nad Mohanom (cca 30–35 minút)
• Medzinárodným letiskom v regióne Rýn-Majn vo Frankfurt nad Mohanom (cca 30 minút)
Roßdorf disponuje ustálenou infraštruktúrou so službami maloobchodu, gastronomiou, poskytovateľmi služieb a stabilnou obyvateľskou populáciou s vysokou kúpyschopnosťou. Lokalita je vhodná pre maloobchod, ordináciu, kancelárske priestory, služby alebo využitie ako showrooom.
Ide o jedno a pol-poschodovú priemyselnú budovu s nakloneným prístupom zo strany kopca. Budova má mierne šikmú sedlovú strechu a priestrannú výkladnú časť orientovanú k ulici. Fasáda sa prezentuje jednoducho a funkčne. Predchádzajúce využitie pre maloobchod je stavebne ešte dobre rozpoznateľné (výkladný systém, prístup zo strany ulice).
Prízemie:
• Priestranná predajňa alebo hlavný využívací priestor
• Samostatné prídavné miestnosti
• WC zariadenia
• Prístupové jadro s rebradlovým schodiskom
• Viaceré oddelené miestnosti (napr. kancelária, sklad, sociálne priestory)
• Naklonený prístup zo strany kopca s veľkými skladovými dverami a zdvihacou plošinou
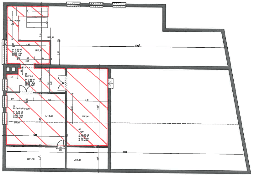
Poschodie:
• Dodatočné skladovacie priestory
• Prídavné a technické miestnosti
Pôdorysy ukazujú jasne štruktúrované, funkčné rozdelenie priestorov s flexibilným využitím. Nosné múry sú prevažne umiestnené pozdĺž obvodu, čo umožňuje prispôsobenie vnútorného priestoru podľa potreby (v závislosti od statickej kontroly).
Vonku sa nachádzajú priestory, ktoré zvyšujú komfort zákazníkov a umožňujú nákladové vykládky.
Vhodné využitie:
• Maloobchod
• Ordinácia (lekár, terapia, pod.)
• Kancelária alebo advokátska kancelária
• Poskytovateľ služieb
• Štúdio / školské priestory
• Výstavné alebo showrooom priestory
• Ponuka blízkeho zásobovania
Parametre nehnuteľnosti
| Vek | Nad 50 rokov |
|---|---|
| Číslo inzerátu | 998511 |
| Cena za jednotku | 5 € / m2 |
| Dostupné od | 1. 6. 2026 |
|---|---|
| Plocha nebytového priestoru | 413 m² |
Čo táto nehnuteľnosť ponúka?
| Pivnica | |
| MHD 2 minúty pešo |
| Parkovanie |
V okolí nehnuteľnosti nájdete
Stále hľadáte to pravé?
Nastavte si strážneho psa. Ponuky vybrané na mieru dostanete súhrnne 1× denne e-mailom. S Premium profilom máte po ruke rovno 5 strážcov a keď sa niečo objaví, informujú vás obratom.










