Predaj bytu 4+1 • 170 m² bez realitky, Sársko
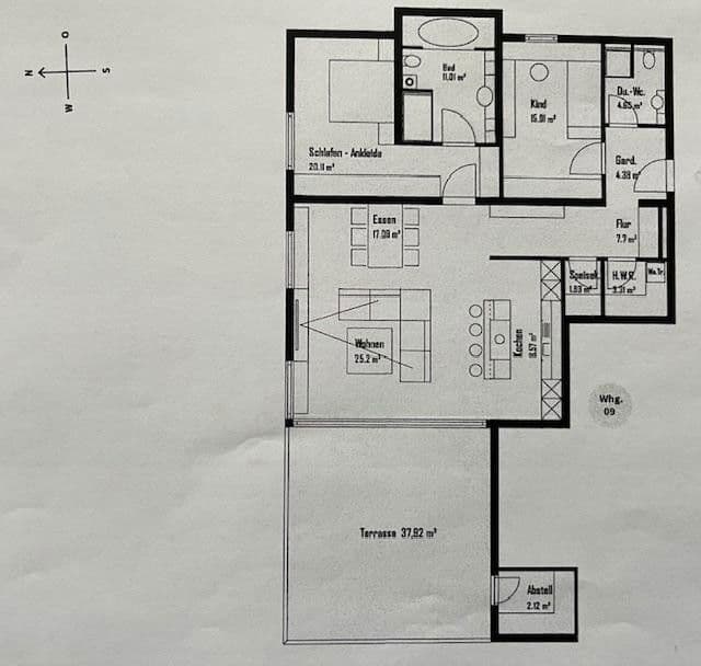
, SárskoMHD 1 minúta pešo • Výťah • Parkovanie • GarážTento penthouse predstavuje útočisko pre náročných – priestranný, svetlý a prezentuje sa vo výnimočne udržiavanom stave. Každá miestnosť zaujme kvalitnými materiálmi a nadčasovým dizajnom.
V žiadanej lokalite na predmestí univerzitného a okresného mesta Homburg.
Okrem nádhernej, veľmi kvalitnej vstavané kuchyne s prémiovými spotrebičmi patrí medzi luxusné vybavenie tohto svetlom naplneného bývania aj veľmi veľká, súkromná strešná terasa s trvalým zelenaním a prístupným skladovacím priestorom, praktické vstavané skrine a 3 parkovacie miesta pre vozidlá (2x garáž s wallboxom / 1x vonkajšie, priamo vedľa vjazdu do garáže). Plne zariadená práčovňa (nachádzajúca sa v byte), vlastný sklep a stály priestor pre práčku/sušičku (vrátane uzamykateľnej zásuvky) v spoločnej práčovni (bezbariérový prístup s výťahom) zabezpečujú, že aj domáce práce možno ideálne a prakticky vybaviť.
Stav nehnuteľnosti možno označiť za vynikajúci (nie sú potrebné žiadne rekonštrukčné práce, pretože je v stave ako nová), a preto je reálne očakávať, že nadobúdateľ ju bude môcť využívať už 4 týždne po uzavretí zmluvy.
Tešíme sa na Vašu dopyt a radi s Vami dohodneme ďalšie kroky (zaslanie podrobného exposé vrátane fotografií atď.).
Prosíme o pochopenie, že dopyty budeme odpovedať iba v prípade úplne vyplneného kontaktného formulára.
Parametre nehnuteľnosti
| Vek | Nad 50 rokov |
|---|---|
| Dispozícia | 4+1 |
| Číslo inzerátu | 998207 |
| Úžitková plocha | 170 m² |
| Stav | Veľmi dobrý |
|---|---|
| Poschodie | 2. poschodie z 2 |
| PENB | A - Mimoriadne úsporné |
| Cena za jednotku | 4 824 € / m2 |
Čo táto nehnuteľnosť ponúka?
| Bezbariérový prístup | |
| Garáž | |
| Parkovanie |
| Pivnica | |
| Výťah | |
| MHD 1 minúta pešo |
V okolí nehnuteľnosti nájdete
Stále hľadáte to pravé?
Nastavte si strážneho psa. Ponuky vybrané na mieru dostanete súhrnne 1× denne e-mailom. S Premium profilom máte po ruke rovno 5 strážcov a keď sa niečo objaví, informujú vás obratom.















