Prenájom bytu 6+1 • 126 m² bez realitkyBerlin Adlershof Berlin 12489
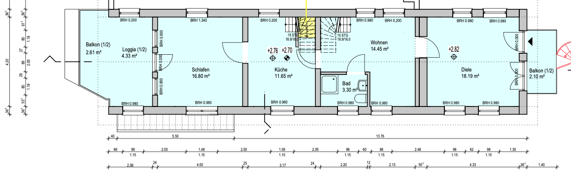
Berlin Adlershof Berlin 12489MHD 1 minúta pešo • ParkovanieDiese helle a priestranná 6-izbová bytosť s približne 126 m² obytného priestoru sa nachádza v 2. nadzemnom podlaží a na pôde stropného poschodia dvojrodinného domu v Berlíne Adlershof. Byt disponuje veľkou prístreškovou terasou, ktorá vás pozýva na oddych, ako aj prístreškom pre vaše vozidlo. Samostatná hostinská toaleta a toaleta v pôdnom podlaží zvyšujú komfort bývania. Kvalita bývania je na bežnej úrovni a ponúka priestor pre individuálne úpravy. Byt bude k dispozícii od 1.4.2026. Domáce zvieratá sú povolené po dohode. K dispozícii je aj spoločná záhrada.
Adresa sa nachádza v štvrti Adlershof v Treptow-Köpenick, Berlín, priamo pri malom lesíku. Adlershof je živá štvrť s dobrou dostupnosťou verejnou dopravou – S-Bahn, autobusom a električkou, a je v pešej vzdialenosti od historického centra Köpenicku. Táto oblasť je považovaná za bezpečnú a poskytuje príjemné prostredie pre mladé rodiny a pracujúcich ľudí.
Podľa potreby je možný aj nájom s nábytkom, či už na dočasné bývanie s nábytkom či na obmedzené obdobie. Po dohode je tiež možná zmena dispozície bytu.
Parametre nehnuteľnosti
| Vek | Nad 50 rokov |
|---|---|
| Stav | Dobrý |
| Poschodie | 1. poschodie z 2 |
| PENB | B - Veľmi úsporné |
| Cena za jednotku | 17 € / m2 |
| Dostupné od | 1. 4. 2026 |
|---|---|
| Dispozícia | 6+1 |
| Číslo inzerátu | 998044 |
| Úžitková plocha | 126 m² |
Čo táto nehnuteľnosť ponúka?
| Balkón | |
| MHD 1 minúta pešo |
| Parkovanie |
V okolí nehnuteľnosti nájdete
Stále hľadáte to pravé?
Nastavte si strážneho psa. Ponuky vybrané na mieru dostanete súhrnne 1× denne e-mailom. S Premium profilom máte po ruke rovno 5 strážcov a keď sa niečo objaví, informujú vás obratom.
















