
Prenájom bytu 2+1 • 69 m² bez realitkyGrüner Weg 2, , Brandenbursko
Grüner Weg 2, , BrandenburskoMHD 6minút pešo • ParkovanieBývanie postavené v roku 2008 na adrese Grüner Weg 2 v Luckau pozostáva z viacrodinného domu s piatimi bytovými jednotkami. Dvojizbový byt sa nachádza v prvom nadzemnom podlaží veľmi udržiavaného domu. Štruktúra nájomníkov je pokojná.
Dohodlo sa dvojročné vylúčenie možnosti vypovedania nájmu a zároveň stupňový nájom.
Súčasný nájomník by si prial predáť kuchyňu nasledujúcemu nájomníkovi.
Viacrodinný dom sa nachádza v meste Luckau v okrese Dahme-Spreewald. Územie mesta leží približne 70 km južne od Berlína, v regióne Lausitz-Spreewald.
Od nadobudnutia účinnosti krajského rozvojového plánu Hlavné mesto Berlín-Brandenburg dňa 1.7.2019 získalo Luckau status stredného centra. Letisko BER je dostupné autom do 50 minút. Centrum mesta Luckau je pešo dosiahnuteľné za 10 minút. Blízkosť prírody ponúka množstvo rekreačných možností v okolí. Okrem toho sú dôležité mimomestské cesty, ako napríklad B 87 (prostredníctvom ktorej sú priamo dostupné aj cesty B 96 a B 102) ako aj L 52 (smery Calau, Drebkau) a L 526 (smery Lübbenau / Spreewald), optimálne dostupné.
Byty sú vykurované plynovým kúrením. Kúpeľňa je moderné vybavená – obsahuje vaňu aj oddelenú sprchu, nástenné WC, veľké umývadlo a pripojenie pre práčku.
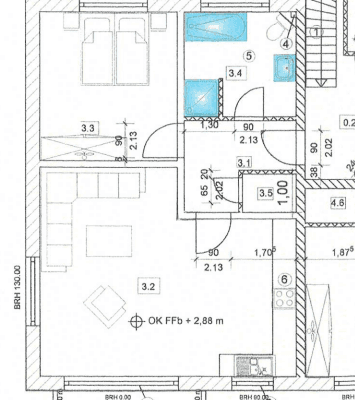
Všetky izby majú praktické usporiadanie. Osobitná pozornosť je venovaná balkónu, ktorý predstavuje oázu a je prístupný cez dve podlahové dvere.
Nakoniec je potrebné spomenúť, že k bytu patria aj samostatná skladovacia miestnosť, ktorá ponúka dostatok miesta pre autopneumatiky, lyžiarsku výbavu alebo kufre, a ktorú je možné prenajať za 20,00 EUR mesačne. Pre prvý dojem nájdete fotografie v expozé.
Pri žiadosti o byt budeme po prehliadke potrebovať aktuálne informácie o príjmových podmienkach, vrátane výpisu zo Schufu, potvrdenie od súčasného prenajímateľa o včas a úplne splatených nájomných platbách, ďalšie údaje o identite, napríklad predložením občianskeho preukazu, ako aj vyplnené vlastné vyhlásenie, ktoré vám zašleme po prehliadke.
Všeobecne máte možnosť dohodnúť si prehliadky od pondelka do piatka medzi 08:00 a 18:00 hodinou, ako aj v sobotu a nedeľu po predchádzajúcej dohode.
Parametre nehnuteľnosti
| Vek | Nad 50 rokov |
|---|---|
| Stav | Dobrý |
| Poschodie | 1. poschodie |
| PENB | C - Hospodárne |
| Cena za jednotku | 9 € / m2 |
| Dostupné od | 1. 7. 2026 |
|---|---|
| Dispozícia | 2+1 |
| Číslo inzerátu | 998038 |
| Úžitková plocha | 69 m² |
Čo táto nehnuteľnosť ponúka?
| Balkón | |
| Parkovanie |
| Pivnica | |
| MHD 6 minút pešo |
V okolí nehnuteľnosti nájdete
Stále hľadáte to pravé?
Nastavte si strážneho psa. Ponuky vybrané na mieru dostanete súhrnne 1× denne e-mailom. S Premium profilom máte po ruke rovno 5 strážcov a keď sa niečo objaví, informujú vás obratom.















