Predaj domu 4+1 • 164 m² bez realitky, Dolné Sasko
, Dolné SaskoMHD 2 minúty pešo • ParkovanieNa predaj je veľmi moderný, vysoko kvalitne vybavený architektonický dom, postavený v roku 2012
4 izby, obytná plocha 164 m², užitočná plocha 156 m², zdroj energie plyn, podlahové kúrenie,
otvorená, priestranná konštrukcia s veľkými, od podlahy po strop, trojsklom zvitými oknami
Pozemok má rozlohu 907 m², plne zariadený, orientovaný na juh/západ.
Dvojité garážové stany, záhradný kútik na náradie, tri ďalšie parkovacie miesta pre automobily,
starostlivo udržiavaná záhrada
Tento atraktívny rodinný dom sa nachádza v jednej z najkrajších obytných lokalít Buchholzu v regióne Nordheide – v Klecker Weg, priamo pri Klecker lese.
Lokalita je veľmi pokojná a v blízkosti prírody, no zároveň ťaží z blízkosti mesta.
Centrum Hamburgu je dostupné len približne 30 minútou vlakom alebo autom. Diaľnice A1 a A7 sú taktiež v bezprostrednej blízkosti.
Buchholz ponúka výbornú, rodinne prívetivú infraštruktúru: niekoľko materských škôl, základných škôl a stredných škôl (medzi inými aj školské centrum I) je dostupných pešo. Rušné centrum Buchholzu s množstvom nákupných možností, týždenným trhom, reštauráciami, lekármi a nemocnicou je vzdialené len približne 2 km. Možnosti vo voľnom čase, ako sú vonkajší a krytý bazén, tenisové, padelové a golfové ihriská, lezecká a boulderová hala, ako aj rôzne turistické a cyklistické trasy, ešte viac zvyšujú kvalitu života.
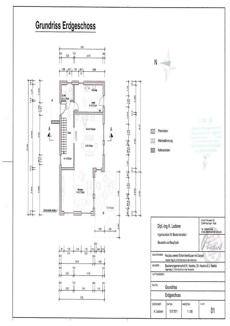
Vybavenie a rozloženie priestorov
Masívna stavba, kameň na kameň, WDVS (systém tepelnej izolácie vonkajších stien), sedlová strecha
Prízemie:
- priestranný vstupný priestor s otvoreným dreveným schodiskom
- otvorený obývací/jedálenský priestor s veľkou, čiastočne krytou terasou
- vysoko kvalitná zabudovaná kuchyňa od firmy Nolte s kuchynským ostrovom
- kúpeľňa so sprchou a sprchovacím odstavcom
- technická miestnosť s oddeleným vonkajším vstupom
- predinštalácia pre krbový kachle, nerezový komín už je zriadený
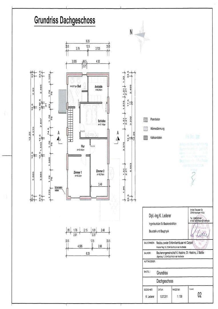
Poschodie:
- spálňa s šatníkom
- dve ďalšie izby (ideálne ako detská izba, izba pre hostí alebo domáca kancelária)
- priestranná kúpeľňa s dvojitým umývadlom, vaňou a sprchou
- vďaka sedlovej streche žiadne šikmé stropy, viditeľné drevené stropné trámy, výška miestností až 3,5 m
Ďalšie vybavenie:
- podlahové kúrenie v celom dome
- svetlé vinylové dizajnové podlahy
- plynové kondenzáčné kúrenie so solárnou podporou ohrevu teplej vody
- konečná energetická spotreba 62,80 kWh/(m²a), energetická trieda B
- pripojenie na optické vlákno / vysokorýchlostný internet
Špecifiká:
- veľmi udržiavaný, renovácia nie je potrebná
- odovzdanie v treťom štvrťroku 2026 po dohode
- mestská a prírodná, pokojná lokalita v jednej z najlepších obytných oblastí Buchholzu
- priestranné, svetlé izby
- bez provízie priamo od vlastníka – žiadna provízia pre realitného makléra
Poznámka:
Upozornenie: Pre kúpu je potrebné zabezpečiť financovanie.
Vedľajšie náklady, ako daň z prevodu nehnuteľnosti a notárske poplatky, hradí kupujúci.
Kontakt & Prehliadka
Máte záujem o tento exkluzívny rodinný dom v Buchholze?
Potom sa tešíme na vašu dopyt a radi vám dom ukážeme pri osobnej prehliadke.
Parametre nehnuteľnosti
| Vek | Nad 50 rokov |
|---|---|
| Dispozícia | 4+1 |
| PENB | B - Veľmi úsporné |
| Plocha pozemku | 907 m² |
| Cena za jednotku | 4 256 € / m2 |
| Stav | Dobrý |
|---|---|
| Číslo inzerátu | 997813 |
| Úžitková plocha | 164 m² |
| Celkové poschodia | 1 |
Čo táto nehnuteľnosť ponúka?
| Parkovanie | |
| Terasa |
| MHD 2 minúty pešo |
V okolí nehnuteľnosti nájdete
Stále hľadáte to pravé?
Nastavte si strážneho psa. Ponuky vybrané na mieru dostanete súhrnne 1× denne e-mailom. S Premium profilom máte po ruke rovno 5 strážcov a keď sa niečo objaví, informujú vás obratom.





















