Prenájom nebytového priestoru 7+1 • 190 m² bez realitkyHebbelstraße 24, , Šlezvicko-Holštajnsko
Hebbelstraße 24, , Šlezvicko-HolštajnskoMHD 1 minúta pešo • GarážTu je preklad textu do slovenčiny:
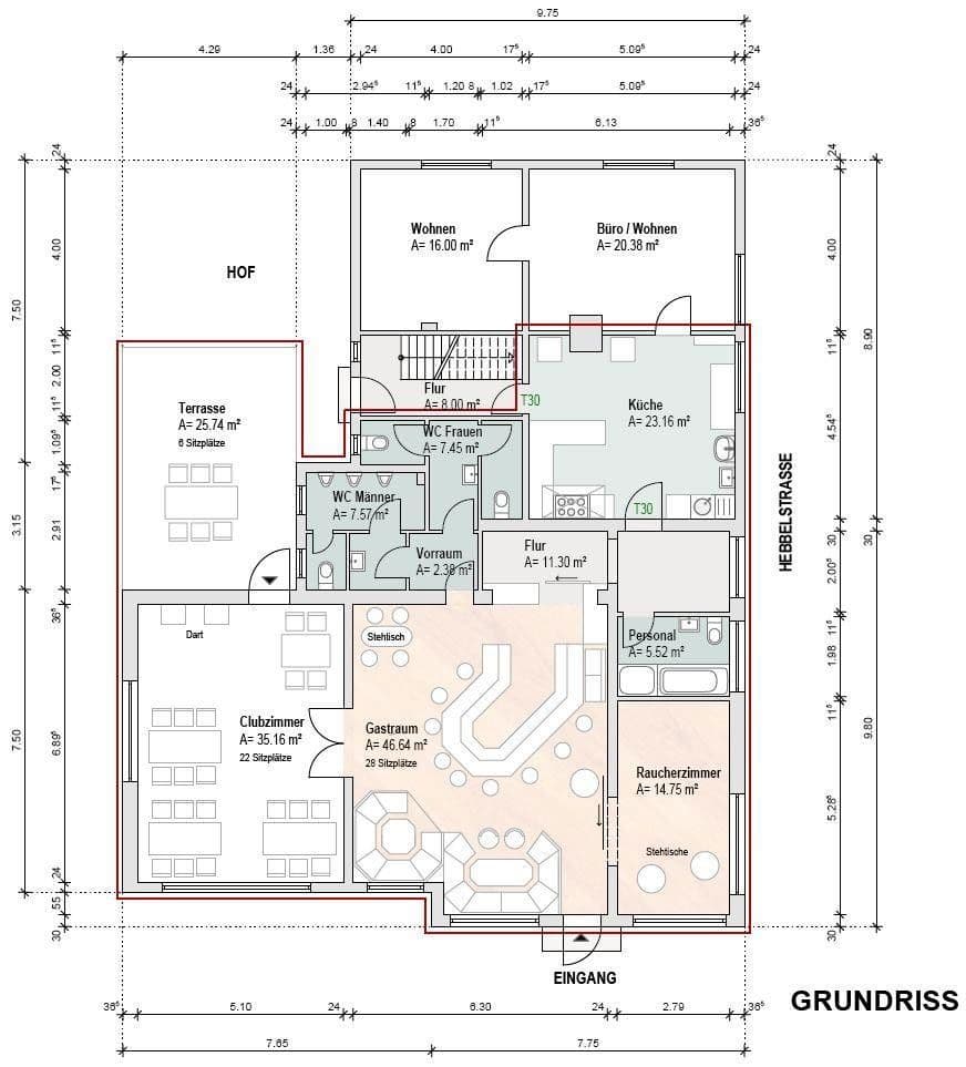
V centrálnom umiestnení v Hohenlockstedt sa odteraz ponúka udržiavaná obchodná plocha s celkovou rozlohou cca 190 m² na prenájom. Nehnuteľnosť je vďaka svojej flexibilnej dispozícii vhodná pre rôzne koncepty využitia, najmä pre gastronómiu (bar, kaviareň), obchodné priestory, kancelárske priestory, agentúry, štúdiá alebo ordinácie.
Priestorové celky sa vyznačujú funkčným rozdelením a množstvom možností úprav. Už je tu vybavená barová časť, ktorá je obzvlášť vhodná na prevádzku baru alebo kaviarne a podľa potreby sa môže individuálne prispôsobiť. Ponuku priestoru dopĺňajú samostatné sanitárie pre dámy a pánov a terasa so samostatným vstupom.
Vybavenie a charakteristiky
- Celková plocha: cca 190 m²
- Dve veľké, flexibilne využiteľné a v prípade potreby deliteľné miestnosti
- Existujúci barový priestor
- Samostatné sanitárie (dámy a páni)
- Terasa so samostatným vstupom
- Možnosti parkovania v bezprostrednom okolí
- Udržiavaný stav a príjemná atmosféra
Špecifiká
- Dobrá viditeľnosť a centrálna dostupnosť v rámci Hohenlockstedt
- Flexibilné možnosti využitia (bar, kaviareň, obchodný priestor, kancelária, ordinácia, štúdio alebo sklad)
- Možnosť individuálneho navrhnutia interiéru
- Možnosť úprav pri dlhodobých nájomných zmluvách po dohode
Začiatok prenájmu
Prenájom je možný odteraz. Dlhodobé využitie je možné dohodnúť individuálne.
Ponúkaná obchodná plocha sa nachádza v centrálnom umiestnení v Hohenlockstedt. Lokalita sa vyznačuje dobrou dostupnosťou a vyrastenou infraštruktúrou, čo poskytuje atraktívne podmienky pre rôzne obchodné využitia.
V bezprostrednom okolí sa nachádza niekoľko maloobchodných prevádzok, poskytovatelia služieb a gastronomické zariadenia, čo zabezpečuje stály prísun zákazníkov v danom prostredí. Vďaka tejto obchodnej zmesi je lokalita vhodná ako pre klasické predajne, tak aj pre gastronomické koncepty ako kaviareň alebo bar.
Dopravné spojenie možno hodnotiť ako priaznivé. Obec leží výhodne medzi mestami Itzehoe a Neumünster a je dobre prístupná cez regionálne dopravné cesty. Tým je zabezpečená dobrá dostupnosť pre zákazníkov z regiónu aj pre dodávateľskú dopravu.
Okrem toho sa v bezprostrednej blízkosti obchodnej plochy nachádzajú možnosti parkovania, čím sa podporuje komfortný prístup pre návštevníkov a zákazníkov. Celkovo je lokalita charakterizovaná centrálnym umiestnením, solídnou infraštruktúrou a dobrou regionálnou dostupnosťou.
Obchodná plocha je udržiavaná a vďaka existujúcej dispozícii umožňuje flexibilné využitie pre rôzne obchodné modely. Veľkoryso navrhnuté priestory je možné podľa potreby oddeliť alebo individuálne prispôsobiť, čím je možné realizovať aj otvorené využitie, ako aj samostatné pracovné či ošetrujúce priestory.
Už existujúci barový priestor poskytuje vhodný základ najmä pre gastronomické využitie ako bar alebo kaviareň, no môže byť taktiež prispôsobený alebo prebudovaný podľa iných obchodných požiadaviek. Ako doplnok sú k dispozícii samostatné sanitárie pre dámy a pánov.
Obzvlášť je potrebné zdôrazniť existujúcu terasu so samostatným vstupom, ktorá otvára dodatočné možnosti využitia, napríklad pre gastronomické vonkajšie priestory alebo čakárne. Vybavenie plochy tak ponúka solídny základ pre individuálne navrhnutie interiéru podľa konkrétneho obchodného konceptu.
Pri dlhodobom prenájme je navyše možnosť, po dohode, vykonávať úpravy alebo prispôsobenia, aby boli priestory optimálne prispôsobené prevádzkovým požiadavkám.
Parametre nehnuteľnosti
| Vek | Nad 50 rokov |
|---|---|
| Stav | Dobrý |
| Číslo inzerátu | 997639 |
| Cena za jednotku | 8 € / m2 |
| Dostupné od | 14. 3. 2026 |
|---|---|
| Dispozícia | 7+1 |
| Plocha nebytového priestoru | 190 m² |
Čo táto nehnuteľnosť ponúka?
| Garáž | |
| Terasa |
| MHD 1 minúta pešo |
V okolí nehnuteľnosti nájdete
Stále hľadáte to pravé?
Nastavte si strážneho psa. Ponuky vybrané na mieru dostanete súhrnne 1× denne e-mailom. S Premium profilom máte po ruke rovno 5 strážcov a keď sa niečo objaví, informujú vás obratom.





