Predaj domu 6+1 • 189 m² bez realitky, Severné Porýnie - Westfálsko
Na predaj je samostatne stojaci, cez tehlu zhotovený rodinný dom triedy KfW 55, postavený v roku 2018. Dom spája modernú architektúru, excelentnú kvalitu stavby a vysoko kvalitné technické vybavenie na veľkorysom pozemku s rozlohou okolo 794 m².
Ponúka cez tri podlažia približne 260 m² obytného priestoru, ktorý sa dá flexibilne prispôsobiť pre rodiny, domácu kanceláriu alebo viacgeneračné bývanie.
• Obytná plocha (podľa WoFIV): cca 188,8 m²
• Úžitková plocha (podľa DIN 277): cca 164,6 m²
• Celková úžitková plocha (bez terás/balkóna/suterénu): cca 353,4 m²
Vďaka geotermálnemu teplu, kontrolovanej vetracej jednotke, podlahovému chladeniu/zahrievaniu a Smart-Home technológii zažijete najvyšší komfort bývania pri mimoriadne nízkych nákladoch na energiu.
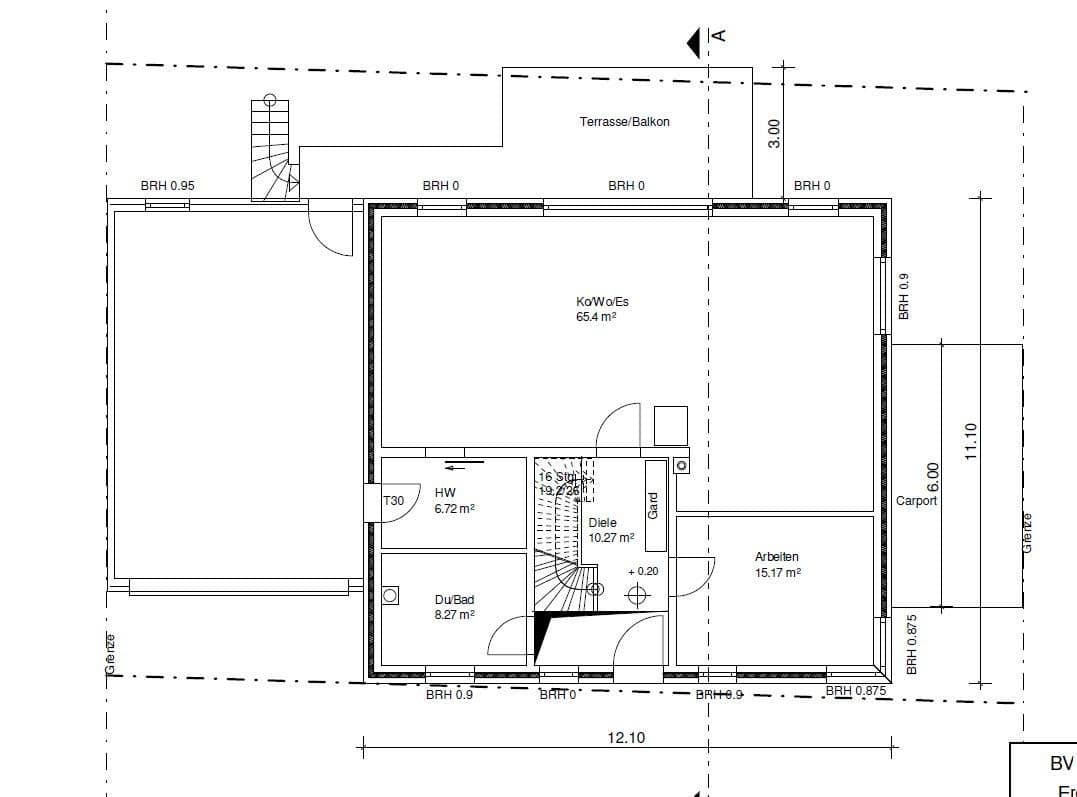
Pôdorysy / Rozdelenie priestorov
Prízemie:
• Otvorený obývací/jedálenský/kuchynský priestor
• Pracovňa (voliteľne)
• Hosťovské WC so sprchou
• Práčovňa/suterénna miestnosť s dodatočným vstupom do garáže
• Priestranná hala s výhľadom do horného poschodia
Horné poschodie:
• Rodičovská spálňa s prístupom do šatníka (s klimatizáciou)
• Šatník s priamym vstupom do kúpeľne
• Dve detské izby (jedna s dodatočnou priečnou časťou)
• Rodinná kúpeľňa so sprchou, vaňou, dvojitým umývadlom a WC
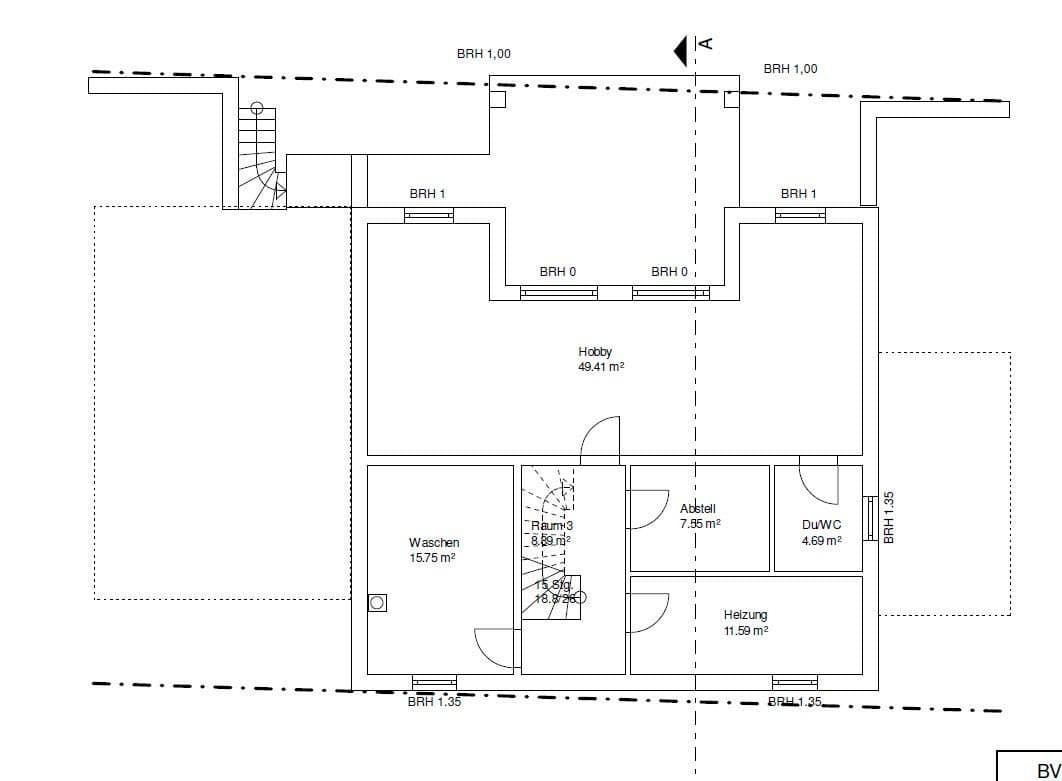
Suterén:
• Hobbisála (možnosť využitia aj ako kuchyňa, obývačka alebo spálňa)
• Kúpeľňa so sprchou a WC
• Skladacia miestnosť (vhodná aj ako ďalšia spálňa)
• Technická miestnosť pre vykurovanie
• Práčovňa
• Chodba s veľkým úložným priestorom
Erftstadt-Erp je pokojná časť obce v bezprostrednej blízkosti Lechenich, s veľmi dobrou dostupnosťou do Kölnu, Bonnu a okolia.
Ideálne pre rodiny: základná škola, materská škola, supermarket, lekár a lekáreň sa nachádzajú priamo na mieste.
V okolí Erftstadtu nájdete rozmanité stredné školy, nákupné možnosti, zdravotnú starostlivosť a vynikajúce možnosti voľnočasových aktivít (Ville-Seen, cyklistické a pešie trasy).
Dopravná dostupnosť:
• Diaľnice A1, A61, A553 sú dostupné v priebehu niekoľkých minút
• Cesta B265 s priamym spojením do Kölnu
• Železničná stanica Erftstadt-Liblar s pripojením na regionálnu dopravu (do Kölnu/Bonnu)
• Energetická efektívnosť: štandard KfW 55, geotermálne teplo, centrálna ventilačná jednotka
• Okná: 3-krát zasklenené Schüco-okná so zvýšenou ochranou proti vloupaniu
• Podlahové kúrenie/chladenie: v prízemí, na hornom poschodí a v suteréne (čiastočne aj v kúpeľniach)
• Výška stropov: prízemie 2,72 m / 5,60 m, suterén 2,59 m
• Smart Home: Ovládací systém Busch & Jäger, programovateľný a ovládateľný cez aplikáciu
• Klimatizácia: v rodičovskej spálni
Interiérová úprava:
• Veľkoformátové obklady z porcelánovej keramiky 120 x 60 cm
• Schody z prírodného kameňa
• Vysokokvalitná vinylová podlaha v spálňovej časti (priemyselný štandard)
• Extra široké a vysoké dvere po celom dome
Garáž a parkovacie miesta:
• Dvojgaráž s prístupom do domu a záhrady
• Carport so sklenenou strechou (priechodný)
• 3 kryté + 5 ďalších parkovacích miest
Strecha: glazované ploché strešné tašky
Suterén: úplne upravený, betónové steny (36,5 cm) v zemnom priestore, vhodný na bývanie
Záhrada: veľmi udržiavaná, so slnečným orientovaním
Predaj formou dražby – najvyššia ponuka
- Uvedená cena predstavuje minimálnu ponuku
Termíny prehliadok prebiehajú výlučne po predložení nasledujúcich dokladov:
• Platná kópia občianskeho preukazu
• Doklad o financovaní alebo kapitálový doklad vo výške minimálne 1 000 000 €
Prvotnú komunikáciu, prosím, uskutočnite výlučne prostredníctvom e-mailu.
• Presnú adresu poskytneme po kvalifikovanom prvotnom kontakte.
________________________________________
Energetické údaje
• Typ energetického preukazu: Preukaz energetickej náročnosti (dopytový preukaz)
• Energetická trieda: A+
• Konečný energetický dopyt: 17,08 kWh/(m²·a)
• Primárny energetický dopyt: 30,74 kWh/(m²·a)
• Typ vykurovania: geotermálne teplo
• Rok výstavby podľa energetického preukazu: 2018
Parametre nehnuteľnosti
| Vek | Nad 50 rokov |
|---|---|
| Dispozícia | 6+1 |
| PENB | A - Mimoriadne úsporné |
| Plocha pozemku | 794 m² |
| Cena za jednotku | 4 947 € / m2 |
| Stav | Veľmi dobrý |
|---|---|
| Číslo inzerátu | 997323 |
| Úžitková plocha | 189 m² |
| Celkové poschodia | 2 |
Čo táto nehnuteľnosť ponúka?
| Balkón | |
| Garáž | |
| MHD 1 minúta pešo |
| Pivnica | |
| Parkovanie | |
| Terasa |
V okolí nehnuteľnosti nájdete
Stále hľadáte to pravé?
Nastavte si strážneho psa. Ponuky vybrané na mieru dostanete súhrnne 1× denne e-mailom. S Premium profilom máte po ruke rovno 5 strážcov a keď sa niečo objaví, informujú vás obratom.














































