Predaj pozemku • 8261 m² bez realitkyUckroer Hauptstraße 42–43, , Brandenbursko
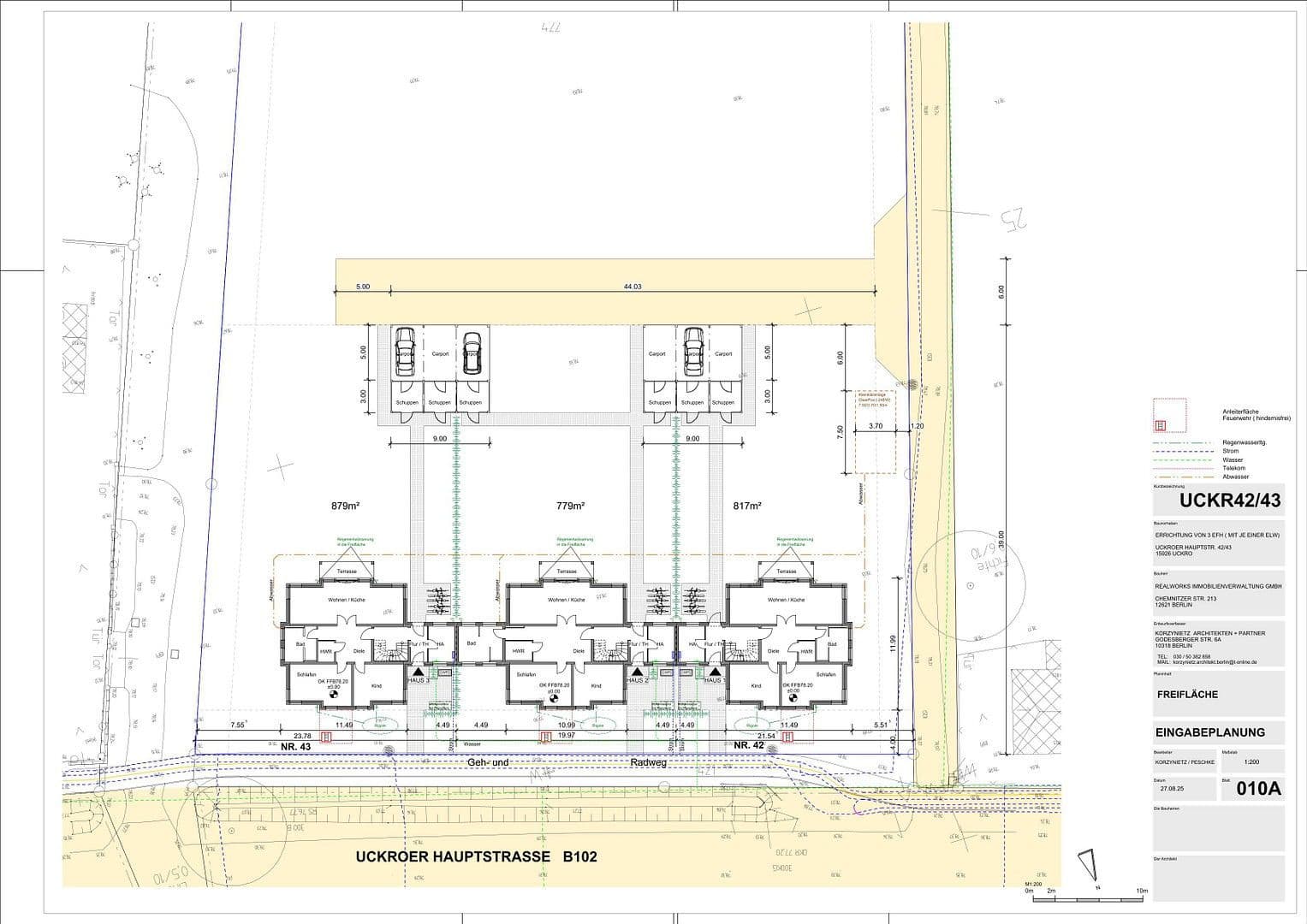
Uckroer Hauptstraße 42–43, , BrandenburskoMHD 2 minúty pešoNa predaj je súvislý developerský areál s celkovou plochou 8.261 m² na adrese Uckroer Hauptstraße 42–43 v Luckau OT Uckro.
K pozemku patrí právoplatný stavebný súhlas na výstavbu:
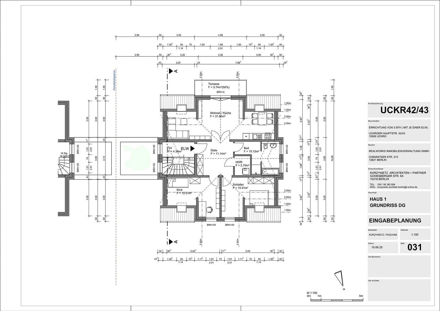
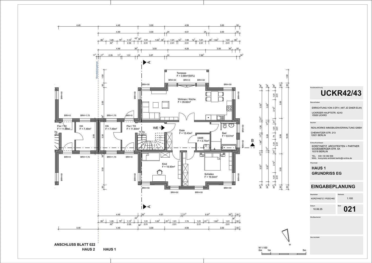
• 3 rodinné domy
- Každý s 2 obytnými jednotkami
- Spolu 6 obytných jednotiek
Schválené plány zahŕňajú nasledujúce obytné plochy:
• Prízemie: cca 117–118 m²
• Poschodie / byt pre prístel: cca 94–95 m²
• Cca 212–213 m² na dom
• Celková obytná plocha: cca 636–639 m²
Všetky projektové podklady sú kompletné a zahŕňajú:
• Stavebný súhlas
• Kompletnú schválenú projektovú dokumentáciu
• Pôdny expertný posudok
• Drenážne doklady
• Doklady o poistení
Projekt je tak okamžite realizovateľný.
Dodatočný rozvojový potenciál
Okrem schválenej výstavby disponuje pozemok aj značnou rezervou pre ďalší vývoj.
Na túto plochu môže byť iniciovaný územný plán. Podľa aktuálneho stavu daný zámer získava podporu obce.
V prípade úspešného vypracovania územného plánu by bolo navyše možné:
• 6 ďalších rodinných domov
- Každý s až 2 obytnými jednotkami
- Alternatívne využiteľné ako klasické rodinné domy
Perspektívne tak vyplýva možnosť celkovo:
• Až 9 rodinných domov
alebo
• Až 18 obytných jednotiek (podliehajúc štátnym povoleniam)
Pripravené podklady od projektového kancelárie pre možnú žiadosť o územný plán už existujú. Tieto dokumenty poskytujú solídny základ pre štruktúrovaný ďalší rozvoj areálu.
Takýto objekt spája istú počiatočnú výstavbu s krátkodobým až strednodobým rozvojovým potenciálom.
Popis lokality
Pozemok sa nachádza na Uckroer Hauptstraße, v časti Uckro mesta Luckau (okres Dahme-Spreewald, Brandenburg).
Lokalita je charakteristická kombináciou vidieckeho obytného komfortu a funkčného dopravného spojenia:
• Priame napojenie na cestu B102
• Stanica Uckro v krátkej vzdialenosti
• Rýchla dostupnosť do Luckau so všetkou infraštruktúrou
• Regionálne spojenie smerom k Lübben a okoliu
Okolie dominuje veľkým pozemkom, ustálenou rodinnou výstavbou a pokojnou obytnou atmosférou.
Ďalšou ekonomickou výhodou je blízkosť k Luckau, kde sa nachádza niekoľko zavedených stavebných firiem a remeselných podnikov, čo umožňuje efektívne stavebné procesy a krátke vzdialenosti počas fázy výstavby.
Pozemok je ponúkaný ako súhrnný areál.
Jedná sa o rozvojový projekt s už zabezpečeným stavebným povolením a s ďalším perspektívnym rozvojovým potenciálom.
Kombinácia:
• Okamžite realizovateľnej výstavby
• Kompletných dostupných podkladov
• Už pripravených plánovacích podkladov pre možné územné plánovanie
• Perspektívy komunálnej podpory
predstavuje ekonomicky zaujímavú investičnú príležitosť.
Ďalšie podklady budú radi poskytnuté pri preukázanom kvalifikovanom záujme.
Parametre nehnuteľnosti
| Dostupné od | 14. 3. 2026 |
|---|---|
| Plocha pozemku | 8 261 m² |
| Číslo inzerátu | 997246 |
|---|---|
| Cena za jednotku | 76 € / m2 |
Čo táto nehnuteľnosť ponúka?
| MHD 2 minúty pešo |
V okolí nehnuteľnosti nájdete
Stále hľadáte to pravé?
Nastavte si strážneho psa. Ponuky vybrané na mieru dostanete súhrnne 1× denne e-mailom. S Premium profilom máte po ruke rovno 5 strážcov a keď sa niečo objaví, informujú vás obratom.





