Prenájom bytu 5+1 • 138 m² bez realitkyBahnhofstraße 18, , Bavorsko
Trausnový byt v historickej podnikateľskej vile – 138 m² s obrovskou strešnou terasou nad 60 m²
Hľadáte priestranný, štýlový byt s osobitým charakterom?
Potom je táto starostlivo zrekonštruovaná byty v historickej budove na 1. poschodí impozantnej podnikateľskej vily z roku 1890 presne to pravé pre Vás!
Byt na prvý pohľad:
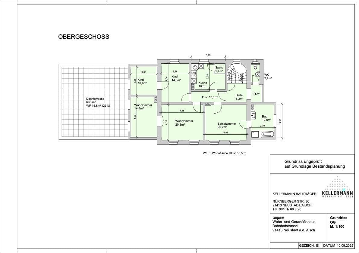
Obytná plocha: cca 138,5 m² | 5 izieb | Rok výstavby: 1890 | Rekonštruovaný: 2024 | K dispozícii ihneď
Rozloženie:
Byt zaujme premysleným rozdelením priestorov: dve priestranné obývacie izby (20,3 m² a 14,8 m²), svetlá spálňa (20,2 m²), dve detské izby (14,8 m² a 10,6 m²), moderná zabudovaná kuchyňa so spiatočnou komorou, veľká kúpeľňa (10,5 m²) a samostatné WC. Navyše patrí k bytu predsieň, chodba a dostatok úložného priestoru.
Hlavný prvok: Strešná terasa
Úžasná strešná terasa s rozlohou cca 63 m² Vás v teplých mesiacoch pozýva na oddych, grilovanie a užívanie si výhľadov – skutočne jedinečný prvok, ktorý v takejto veľkosti nájdete zriedka!
Výbava & Šarm:
Vysoké, reprezentatívne priestory s podnikateľským šarmom, moderné dizajnové podlahy, nová zabudovaná kuchyňa, drevené okná a plynové kúrenie vytvárajú príjemnú atmosféru bývania, ktorá spája původný charakter starých budov s moderným komfortom.
Lokalita:
Vila sa nachádza v centrálnom okolí okresného mesta Neustadt an der Aisch. Detské ihrisko, materská škola, škola, lekári, nemocnica, športoviská, bazény, kaviarne a dobre zásobené obchody sú všetky v pešej vzdialenosti. Veľmi dobré dopravné spojenie cez spolkovú cestu B8 a vlakové spoje do Norimberku a Würzburgu.
Parametre nehnuteľnosti
| Dostupné od | 4. 3. 2026 |
|---|---|
| Dispozícia | 5+1 |
| Číslo inzerátu | 997168 |
| Cena za jednotku | 11 € / m2 |
| Stav | Po rekonštrukcii |
|---|---|
| Poschodie | 1. poschodie z 2 |
| Úžitková plocha | 138 m² |
Čo táto nehnuteľnosť ponúka?
| MHD 0 minút pešo |
| Terasa |
V okolí nehnuteľnosti nájdete
Stále hľadáte to pravé?
Nastavte si strážneho psa. Ponuky vybrané na mieru dostanete súhrnne 1× denne e-mailom. S Premium profilom máte po ruke rovno 5 strážcov a keď sa niečo objaví, informujú vás obratom.














