Predaj domu 5+1 • 184 m² bez realitkyAm Pannhaus 3, , Severné Porýnie - Westfálsko
Am Pannhaus 3, , Severné Porýnie - WestfálskoMHD 4 minúty pešo • Parkovanie • GarážTáto priestranná rodinná vila s približne 184 m² obytných priestorov a s pozemkom o veľkosti približne 833 m² sa nachádza v pokojnej lokalite v Aachen-Laurensbergu. Samostatne stojaci rohový bungalov s plochou sedlovou strechou bol postavený v rokoch 1966/67 v pevnom, pre tú dobu predvídavom stavebným štýle. Stavebný materiál je preto stále vo veľmi dobrom stave.
Komplexná obnova vonkajších priestorov a vnútorných častí prebehla v rokoch 2015/16 za prítomnosti odborných remeselníkov.
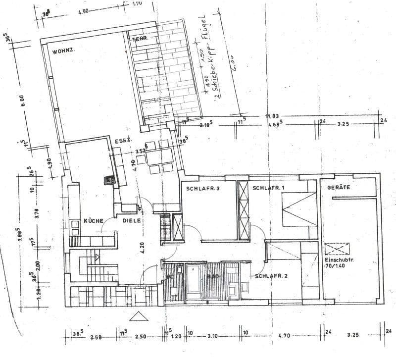
Celková obytná plocha je 184 m², z toho 140 m² v prízemí a 44 m² v suteréne. Pozemok so zimnou záhradou orientovanou na juh ponúka nezakryté výhľady smerom na Aachen. Jedná sa o priamy súkromný predaj bez prenájmu.
Energetický štandard (energetický preukaz) je momentálne prepracovávaný energetickým poradcou. V roku 2016 bola inštalovaná nová olejová kotolňa.
Dom sa nachádza v Aachen-Laurensbergu, obľúbenej mestskej časti Aachenu. Okolie vyniká dobrou infraštruktúrou, s možnosťami nákupov dennej potreby, ako aj so školami a materskými škôlkami v blízkom okolí. Prepojenie na verejnú dopravu je dobré, rovnako ako rýchly prístup k diaľnici, čo ocenia najmä dojíždzajúci. Viaceré zelené plochy a parky v okolí ponúkajú možnosti na oddych.
V roku 2016 prebehla modernizácia prízemia:
Boli položené nové obklady v kuchyni a predsieni, kompletne zrekonštruované kúpeľňa a toaleta pre hostí. Elektroinštalácie boli prekontrolované odborníkom, pričom bolo obnovené aj parketové drevo v obývacej izbe a spálňovom oddelení. V spálňovom oddelení a v kuchyni boli inštalované nové okná (UW 1,29 W/m²K) a rolietové žalúzie.
V roku 2015 bol zrekonštruovaný obytný priestor v suteréne vrátane pivnice so saunou a sprchovacej kúpeľne. Bol vytvorený parkovací priestor, vchodové dvere vrátane okiennej fasády boli obnovené. Aj dlažba pred vchodovými dverami bola kompletne prerábaná. Moderné vchodové dvere a garážové dvere vo sviežej oranžovej farbe dokončujú celkový dojem.
Rodinný dom je prenajatý do 30. apríla 2026. Z dôvodu rešpektovania súčasných nájomcov sa prehliadky uskutočňujú iba pri preukázanom vážnom záujme. Všetky zariadenia vrátane vstavaných kuchynských jednotiek patria súčasným nájomcom. Vstavané skrine v predsieni, jedálni a v spálňach patria k domu.
Parametre nehnuteľnosti
| Vek | Nad 50 rokov |
|---|---|
| Číslo inzerátu | 997145 |
| Plocha pozemku | 833 m² |
| Cena za jednotku | 5 109 € / m2 |
| Dispozícia | 5+1 |
|---|---|
| Úžitková plocha | 184 m² |
| Celkové poschodia | 2 |
Čo táto nehnuteľnosť ponúka?
| Pivnica | |
| Parkovanie | |
| Terasa |
| Garáž | |
| MHD 4 minúty pešo |
V okolí nehnuteľnosti nájdete
Stále hľadáte to pravé?
Nastavte si strážneho psa. Ponuky vybrané na mieru dostanete súhrnne 1× denne e-mailom. S Premium profilom máte po ruke rovno 5 strážcov a keď sa niečo objaví, informujú vás obratom.

















