Predaj bytu 6+1 • 220 m² bez realitky, Severné Porýnie - Westfálsko
, Severné Porýnie - WestfálskoMHD 1 minúta pešo • ParkovanieFREIESLEBEN-IMMOBILIEN Vám predstavuje tieto tri všestranne využiteľné byty v trojrodinnom dome v upravenej lokalite Recklinghausen Süd / König-Ludwig. Byty sú ponúkané ako balík za uvedenú celkovú cenu.
Trojrodinný dom bol postavený približne v roku 1900 v masívnom prevedení a je plne podzemný, postavený na vlastnom pozemku s rozlohou približne 360 m².
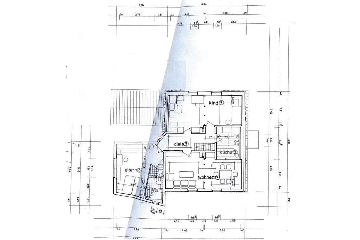
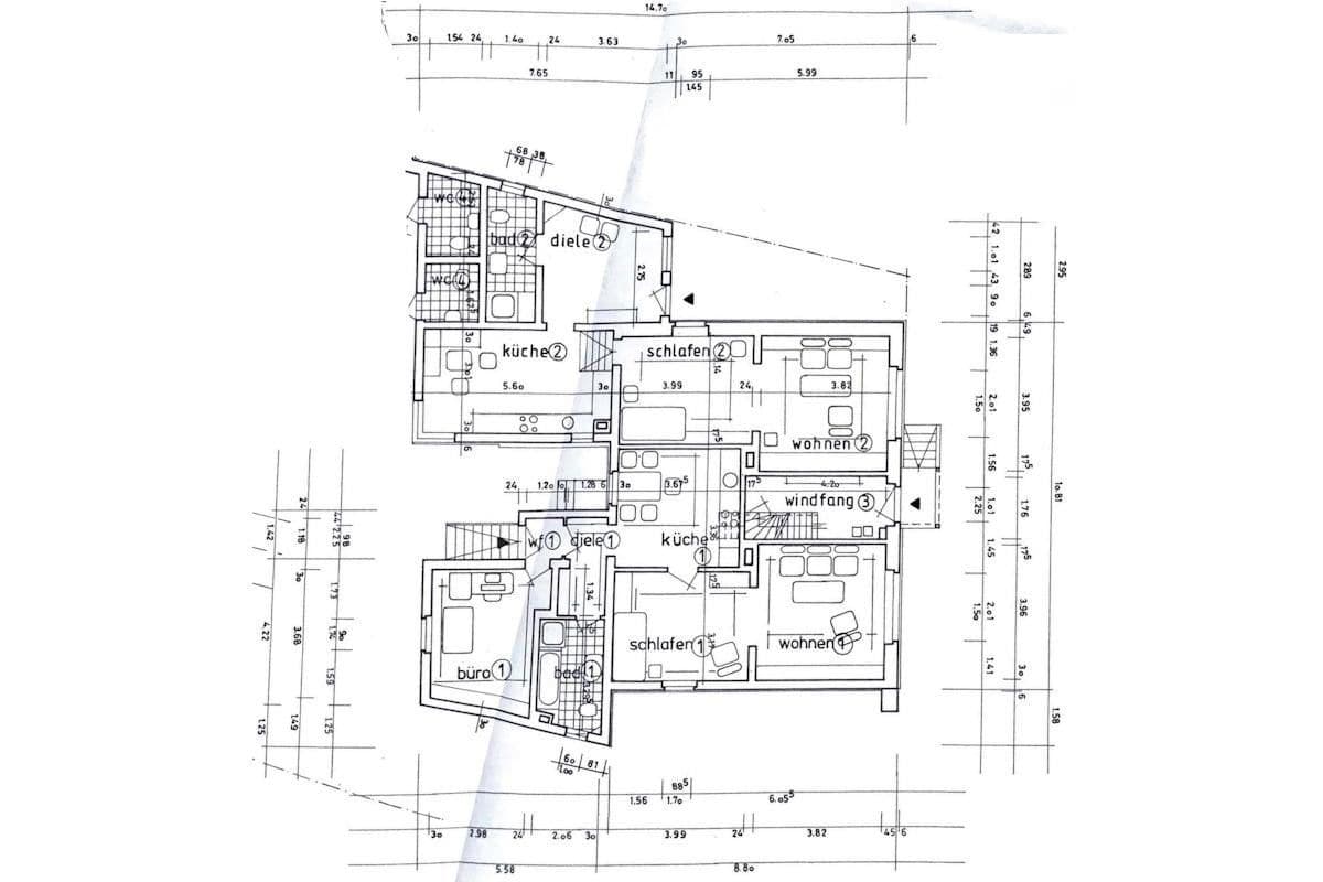
Ponúka približne 220 m² obytného priestoru, ktorý je rozdelený na dva byty v prízemí s približne 63 m² resp. 60 m² obytného priestoru a jeden byt v podkroví s približne 97 m² obytného priestoru.
K dispozícii je vyhotovený deliteľný plán, pričom pre každý z bytov existuje samostatný list vlastníctva. Po nadobudnutí je možné tieto tri byty využívať na vlastné bývanie, prenajímať ich alebo ich aj samostatne predať.
Väčší byt s približne 63 m² v prízemí trojrodinného domu ponúka obývačiu, spálňu, kuchyňu s rozlohou cca 12 m², kanceláriu, sprchovaciu kúpeľňu, halu a vstupnú halu.
Menší byt s približne 60 m² v prízemí ponúka obývačiu, spálňu, kuchyňu s rozlohou približne 16 m², halu s rozlohou približne 11 m² a kúpeľňu s prirodzeným denným svetlom.
Byt v podkroví ponúka približne 97 m² obytného priestoru, ktorý je rozdelený na obývačiu s rozlohou cca 27 m², spálňu cca 21 m², detskú izbu cca 23 m², kuchyňu, kúpeľňu s prirodzeným denným svetlom so štýlovou rohovou vaňou, priestrannú halu a vstupnú halu.
Všetky tri byty sú prístupné cez spoločné schodisko a majú samostatné vchody.
V suteréne domu sa nachádza práčovňa s kúrením a prípojkami, sušiareň, pre každý z bytov samostatný pivničný priestor, priechodová miestnosť aj chodba.
Pre automobily je pre každý byt zabezpečené jedno parkovacie miesto.
Dom je vykurovaný plynovým ústredným kúrením z roku 2015.
Momentálne sú všetky byty prázdne.
Chcete si ich ihneď pozrieť?
Pošlite nám prosím dopyt cez kontaktný formulár a my Vás kontaktujeme neodkladne.
Písomné dopyty sa vybavujú podstatne rýchlejšie než telefonické dopyty!
BEZ PROVÍZIE PRE KÚPUJÚCEHO
Atraktívne byty sa nachádzajú v upravenej zmiešanej štvrti obľúbeného mestského obvodu Recklinghausen, König-Ludwig.
V bezprostrednej blízkosti sa nachádzajú školy, materské školy, lekári, lekárne a obchody s potrebami pre každodenný život.
Pešo dostupný Südbad (vonkajší aj krytý bazén na Pappelallee) a prechádzky pozdĺž Emscher lákajú na voľnočasové aktivity.
Zastávky autobusov dobrej siete MHD sú tiež vzdialené niekoľko minút chôdze.
Automobilom sa dostanete do centra Recklinghausen približne za 15 minút. Vďaka blízkosti diaľnic A43 a A2 ste výborne prepojení s mestami Porúria aj Münsterlandu.
• 3 všestranne využiteľné byty v trojrodinnom dome
• Celkovo cca 220 m² obytného priestoru
• Rok výstavby cca 1900
• Masívna konštrukcia
• Pivničné priestory
• Samostatný vchod pre každý byt
• 3 parkovacie miesta
Toto je nezáväzná ponuka spoločnosti
FREIESLEBEN GmbH,
Steinstraße 14
45657 Recklinghausen
Tel.: 02361 – 90 61 030
Môžete nás telefonicky kontaktovať OD PONDELIA do NEDELE od 7:00 do 22:00. O víkendu Vám navyše ponúkame naše služby v oblasti oceňovania nehnuteľností, obhliadok objektov a osobného stretnutia.
Čo sa týka objektu, sme závislí od informácií poskytnutých majiteľmi a úradmi. Za správnosť a úplnosť údajov nie je možné prevziať žiadnu zodpovednosť. Okrem toho nedá sa ani garantovať stav objektu ani likvidita zmluvných strán.
Chcete, aby bola aj Vaša nehnuteľnosť profesionálne uvedená na trh?
• Využite náš bezplatný servis a nechajte si stanoviť aktuálnu hodnotu Vašej nehnuteľnosti jedným z našich realitných špecialistov.
• Zlepšite predajné príležitosti svojej nehnuteľnosti tým, že Vám pripravíme marketingový plán presne podľa Vášho objektu.
• Využite našu vynikajúcu celonárodnú sieť, ktorá Vám pomôže rýchlo nájsť kupujúcich – stovky záujemcov na Vás čakajú!
Zavolajte nám, tešíme sa na Vás!
Centrála Münsterland: Tel.: 0251 – 39 444 998
Centrála Porúrie: Tel.: 0234 – 92 56 98 00
Parametre nehnuteľnosti
| Vek | Nad 50 rokov |
|---|---|
| Dispozícia | 6+1 |
| PENB | D - Menej hospodárne |
| Cena za jednotku | 1 363 € / m2 |
| Stav | Dobrý |
|---|---|
| Číslo inzerátu | 997082 |
| Úžitková plocha | 220 m² |
Čo táto nehnuteľnosť ponúka?
| Pivnica | |
| MHD 1 minúta pešo |
| Parkovanie |
V okolí nehnuteľnosti nájdete
Stále hľadáte to pravé?
Nastavte si strážneho psa. Ponuky vybrané na mieru dostanete súhrnne 1× denne e-mailom. S Premium profilom máte po ruke rovno 5 strážcov a keď sa niečo objaví, informujú vás obratom.



















