Predaj domu 5+1 • 151 m² bez realitkyPonnsdorfer Weg 4 A, , Brandenbursko
Ponnsdorfer Weg 4 A, , BrandenburskoMHD 4 minúty pešo • Parkovanie • GarážMODERNÝ RODINNÝ DOM S CHARAKTEROM A KOMFORTOM – NOVOSTAVBA NA PRIESTRANNOM POZEMKU V MÜNCHHAUSEN PRI FINSTERWALDE
Vitajte vo vašom novom domove! Tento moderný, masívne postavený rodinný dom od renomovaného dodávateľa Heinz von Heiden (typ Alto 630) spája súčasnú architektúru, energeticky úsporné technické vybavenie a priestranné usporiadanie – ideálny pre rodiny, ktoré si cenia kvalitu a komfort bývania.
OBJEKTÍVNE ÚDAJE
Obytná plocha: cca 151 m² + cca 40 m² úložného priestoru na podkroví
Veľkosť pozemku: cca 1 000 m²
Izby: 5
Kúpeľne: 2
Garáž: Široká garáž s oddelenými dverami a bočným vstupom
Rok výstavby: 2025 (novostavba / prvé nasťahovanie)
Vstavaná kuchyňa: Moderná vstavaná kuchyňa je zahrnutá v kúpnej cene a harmonicky zapadá do otvoreného obývacieho a jedálneho priestoru.
--------------------------------------------------------------------------------
ROZDIEľ PRIESTORU A VYBAVENIE
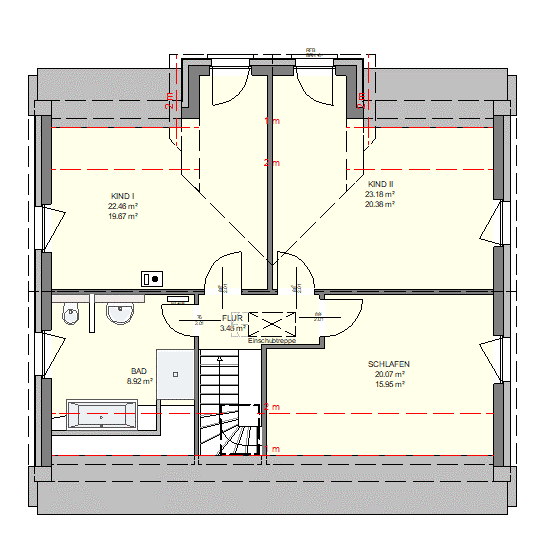
Už pri vstupe do domu vás ohromí svetlý, otvorený koncept bývania: priestranný obývací a jedálenský priestor s otvorenou kuchyňou tvorí srdce domu. Veľké okná zaisťujú dostatok prirodzeného svetla a vytvárajú príjemnú atmosféru. Elegantný výklenok pre terasu dodáva pocit väčšieho priestoru – ako v prízemí, tak na podkroví.
V prízemí sa nachádza okrem toho moderná kúpeľňa so sprchou, technická miestnosť budovy a univerzálna izba, ktorú možno využiť ako hosťovú izbu alebo pracovňu. Veľkoformátové dlaždice dodávajú miestnostiam vznešený a nenáročný vzhľad.
Cez masívne bukové drevené schody (ošetrené na sivom) s nerezovo-dreveným zábradlím sa dostanete na podkrovie. Tu na vás čakajú tri priestranné spálne a štýlová kúpeľňa so sprchou vybavenou dlaždicami (90x120 cm) bez prahu, vaňou, nástenným WC a kvalitným umývadlom.
Izolované podkrovie (cca 40 m², so strešným oknom a elektrickým pripojením) ponúka dodatočný úložný priestor alebo možnosť ďalšieho prístavby.
--------------------------------------------------------------------------------
TECHNIKA A VYBAVENIE V DETAILI
• Účinné vzduch-voda tepelné čerpadlo s podlahovým kúrením na oboch úrovniach
• Nezávislý kachľový komín – príprava pre pripojenie krbu
• Elektrické hliníkové žalúzie ovládateľné individuálne cez aplikáciu
• Sieťové zásuvky vo všetkých obytných a spálňových miestnostiach
• Dvojfarebná vonkajšia fasáda (biela/sivá)
• Okná, terasové dvere a vstupné dvere: vonkajšia strana v odtieni antracitu, vnútorná strana biela
• Vysokokvalitná hlinená strešná tehla (Braas Rubin 9V, kráľovská sivá, glazovaná)
Interiérové úpravy na podkroví (podlahové krytiny, úprava stien) ako aj dizajn vonkajších priestorov môžu byť prispôsobené úplne podľa vašich individuálnych predstáv – ideálne pre dodanie osobného dotyku vášmu novému domovu.
Možnosť multigeneračného objektu: Na požiadanie je možné zakúpiť aj susediaci bungalov (109 m²). Obe budovy spoločne tvoria atraktívny multigeneračný objekt.
--------------------------------------------------------------------------------
GARÁŽ A VONKAJŠIE PRIESTORY
Masívna široká garáž (7,00 m x 3,45 m x 2,54 m) s farebným sekčným dverovým systémom a bočnými vchodovými dverami sa harmonicky začlení do celkového konceptu a ponúka priestor pre automobil, záhradné náradie a oveľa viac.
--------------------------------------------------------------------------------
LOKALITA
Dom sa nachádza v 03249 Münchhausen, časti mestečka Sonnewalde v okrese Elbe-Elster (južné Braniborsko). Do centra Finsterwalde sa dostanete za pár minút – nájdete tu všetky obchody bežnej dennej potreby, lekárne, ordinácie, školy, materské škôlky a tiež Elbe-Elster kliniku.
Autobusová linka 595 spája Münchhausen so stanicou vo Finsterwalde a autobusovým nádražím v Luckau – ideálna aj pre dochádzajúcich.
--------------------------------------------------------------------------------
ZÁVEREČNÉ POZNAMKY
Moderný, energeticky efektívny domov s priestranným usporiadaním, kvalitným vybavením a množstvom možností prispôsobenia – ideálny pre rodiny, ktoré si cenia kvalitu, komfort a individualitu.
--------------------------------------------------------------------------------
Parametre nehnuteľnosti
| Vek | Nad 50 rokov |
|---|---|
| Dispozícia | 5+1 |
| PENB | A - Mimoriadne úsporné |
| Plocha pozemku | 920 m² |
| Stav | Novostavba |
|---|---|
| Číslo inzerátu | 997079 |
| Úžitková plocha | 151 m² |
| Cena za jednotku | 2 582 € / m2 |
Čo táto nehnuteľnosť ponúka?
| Garáž | |
| MHD 4 minúty pešo |
| Parkovanie |
V okolí nehnuteľnosti nájdete
Stále hľadáte to pravé?
Nastavte si strážneho psa. Ponuky vybrané na mieru dostanete súhrnne 1× denne e-mailom. S Premium profilom máte po ruke rovno 5 strážcov a keď sa niečo objaví, informujú vás obratom.














