Predaj bytu 3+1 • 72 m² bez realitky, Porýnie-Falcko
, Porýnie-FalckoMHD 1 minúta pešo • Výťah • GarážPonúka sa jedinečný byt vo vlastníctve so špičkovým vybavením, veľkou terasou a nezablokovateľným výhľadom na Rýn.
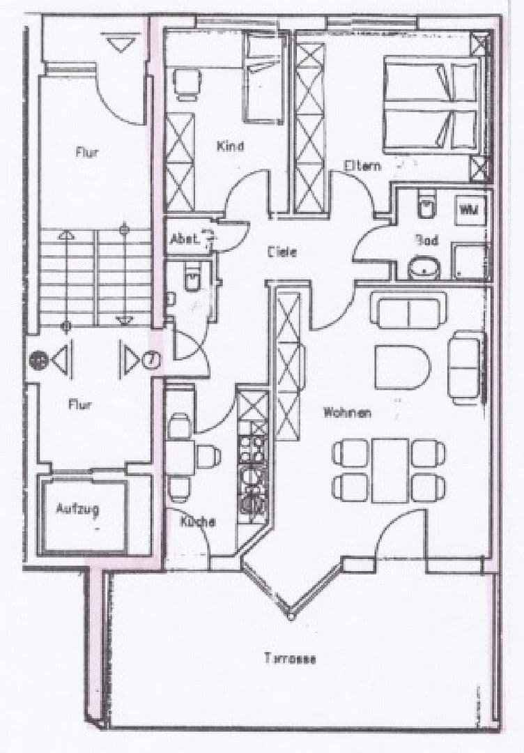
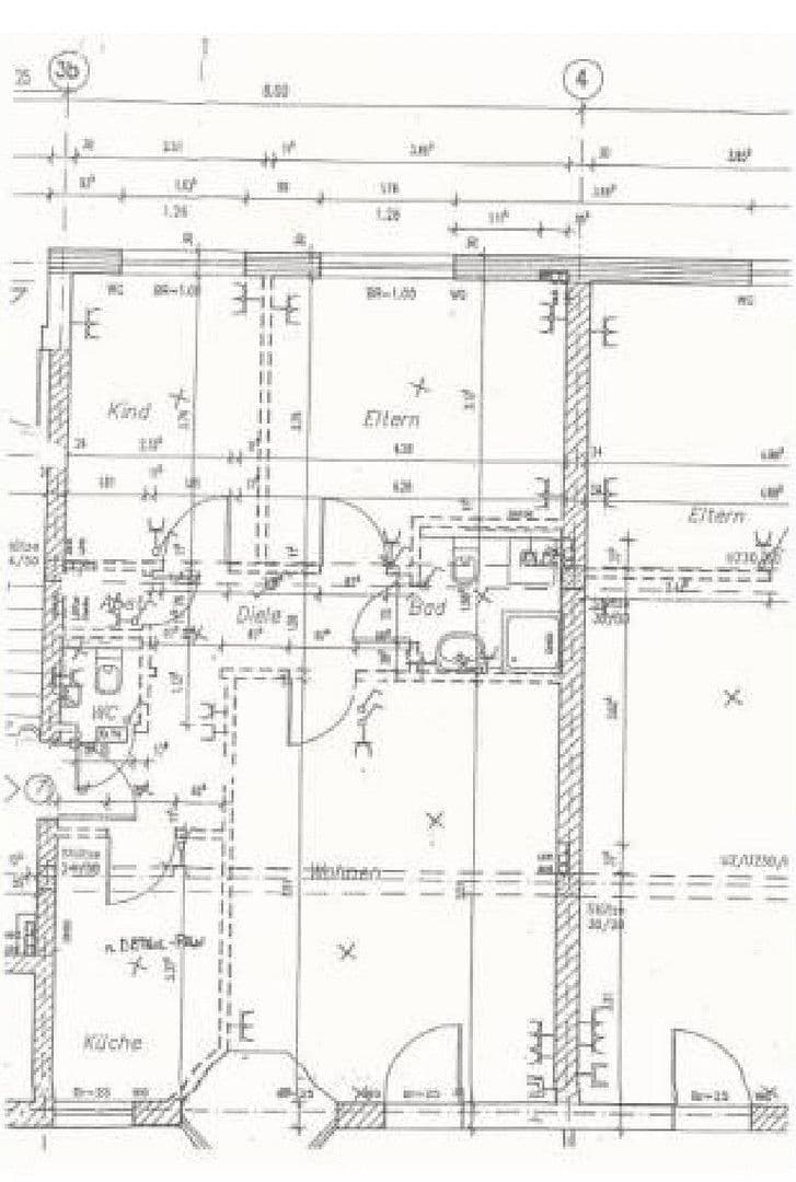
Ponúkaná nehnuteľnosť je viac než len byt – je to skutočný domov pre ľudí, ktorí si cenia nadštandardné bývanie! Tento 3-izbový byt z roku 1994 má 72 m² obytného priestoru, približne 12 m² úžitkového priestoru a bol v roku 2015 kompletne zrekonštruovaný. Bola inštalovaná nová, kvalitná zabudovaná kuchyňa značky Nolte, kompletné elektrické vedenia boli obnovené a rozšírené, takže sú teraz všade zásuvky a káblové pripojenia. Bol položený nový parket z pravého dreva, ktorý vďaka svojej jemnej štruktúre a príjemnému teplu pod nohami vytvára útulnú atmosféru.
Všetky dvere v byte boli vymenené za nové biele dvere, čím nadobudol byt nadčasovo moderný vzhľad. Všetky okná boli vybavené elektricky ovládanými žalúziami, ktoré sú čiastočne programovateľné. Hlavná kúpeľňa bola taktiež kompletne zrekonštruovaná a teraz pôsobí moderným dojmom v odtieňoch antracitu a bielej, s takmer bezpodlahovou sprchou, sušičom uterákov a batériami od IdealStandard a Hansgrohe.
Na začiatku roku 2025 boli inštalované nové trojsklené okná, ktoré sú čiastočne vybavené proti slnečnej ochrane a čiastočne s ochranou proti vniknutiu, čím spĺňajú najvyššie požiadavky, zaisťujú moderné a úsporné bývanie a výrazne znižujú náklady na energiu. Rovnako bola na začiatku tohto roka vymenená aj vstupná dvere spolu so zámkom, ktoré majú protivnikaciu a protihlukovú funkciu.
Okrem toho existuje možnosť na terase o rozlohe takmer 24 m² vybudovať stály (či čiastočný) prístrešok, aby ste mohli tráviť vonkajšie hodiny nielen na slnku, ale aj v daždi, a tak neobmedzene využívať nádhernú južnú orientáciu s výhľadom na Rýn. Na zníženie nákladov na elektrinu je tiež možné, po dohode, prevziať komunitou vlastníkov schválenú balkónovú elektráreň. Celkovo sa táto rozľahlá terasa s výhľadom a špeciálnymi možnosťami javí ako mimoriadne privilegium.
Vo vašom novom domove nájdete, okrem obývačky a kuchyne, dve spálne alebo spálňu a pracovňu, čo robí byt ideálnym pre páry alebo malé rodiny, ale aj pre jednotlivcov, ktorí potrebujú viac priestoru. Okrem toho je tu malá úložná miestnosť v byte a priestranná pivnica. Aby vám nič nechýbalo, byt obsahuje okrem hlavnej kúpeľne aj malé hostinské WC.
Okrem bytu je k dispozícii, za príplatok, aj parkovacie miesto v podzemnej garáži, takže môžete vždy suchou nohou vojsť z bytu priamo do príjemne teplého auta. Týmto sa v zime vyhnete klzkým podmienkam, chladu a akémukoľvek riziku.
Ak vás ponuka zaujala, budem sa tešiť na váš dopyt. Nehnuteľnosť je predávaná bez provízie priamo od súkromného predávajúceho. Prosím, vyhnite sa dopytom zo strany maklérov.
Ponúkaná nehnuteľnosť sa nachádza v veľmi obľúbenej nadmorskej polohe vo Vallandare. Tu nájdete absolútny pokoj a fantastický výhľad na Rýn aj do diaľky, ktorý vás určite nadchne. Obchody bežnej dennej potreby a množstvo rekreačných možností (bazén, tenis, športové ihrisko, kanoový klub, cyklistické a turistické trasy) sú vzdialené len niekoľko minút pešo.
Mesto Vallendar, ležiace na pravej brehu Rýna v okrese Mayen-Koblenz, sa vyznačuje veľmi dobrou infraštruktúrou s priamym autobusovým spojením do Koblenza, Bendorfu, Neuwiedu, ako aj so železničnou stanicou. Autom sú za pár minút dostupné diaľnice A48, A3 a A61, ako aj spolkové cesty B42, B9 a ďalšie. Centrum Koblenza dosiahnete za menej ako 10 minút a Neuwied je vzdialený len 15 minút! V mieste nájdete všetky zariadenia denného života, školy, materskú školu a aj zdravotnícke zariadenia. Atraktívne obytné prostredie, blízkosť k Koblenzu a nepopísateľne krásny výhľad na Rýn robia z tohto miesta skvelé miesto na život. Preto nie je prekvapujúce, že Vallendar je veľmi žiadanou lokalitou.
Vybavenie bytu je nadčasovo moderné a takmer všetky kľúčové prvky boli nedávno obnovené.
• 2006 – Obnovenie centrálneho vykurovacieho systému
• 2015 – Kompletná rekonštrukcia bytu s novou kúpeľňou, novou kuchyňou, novými elektro a káblovými rozvodmi (resp. ich rozšírením), novým parketovým podlahovým krytom z pravého dreva, elektrickými žalúziami a novými dverami
• 2023 – Nové natretie fasády
• 2025 – Nové trojsklené plastové okná
Parametre nehnuteľnosti
| Vek | Nad 50 rokov |
|---|---|
| Stav | Po rekonštrukcii |
| Poschodie | 2. poschodie |
| PENB | D - Menej hospodárne |
| Cena za jednotku | 3 819 € / m2 |
| Dostupné od | 16. 3. 2026 |
|---|---|
| Dispozícia | 3+1 |
| Číslo inzerátu | 996839 |
| Úžitková plocha | 72 m² |
Čo táto nehnuteľnosť ponúka?
| Pivnica | |
| Výťah | |
| Terasa |
| Garáž | |
| MHD 1 minúta pešo |
V okolí nehnuteľnosti nájdete
Stále hľadáte to pravé?
Nastavte si strážneho psa. Ponuky vybrané na mieru dostanete súhrnne 1× denne e-mailom. S Premium profilom máte po ruke rovno 5 strážcov a keď sa niečo objaví, informujú vás obratom.











