
Prenájom bytu 4+1 • 107 m² bez realitkyAm Rübenstein 3, , Hesensko
Am Rübenstein 3, , HesenskoMHD 1 minúta pešoTento pôvabný dom s drevenou konštrukciou z približne roku 1890 spája historický charakter s funkčným rozložením a pevným základom. Základná rekonštrukcia prebehla okolo roku 1980.
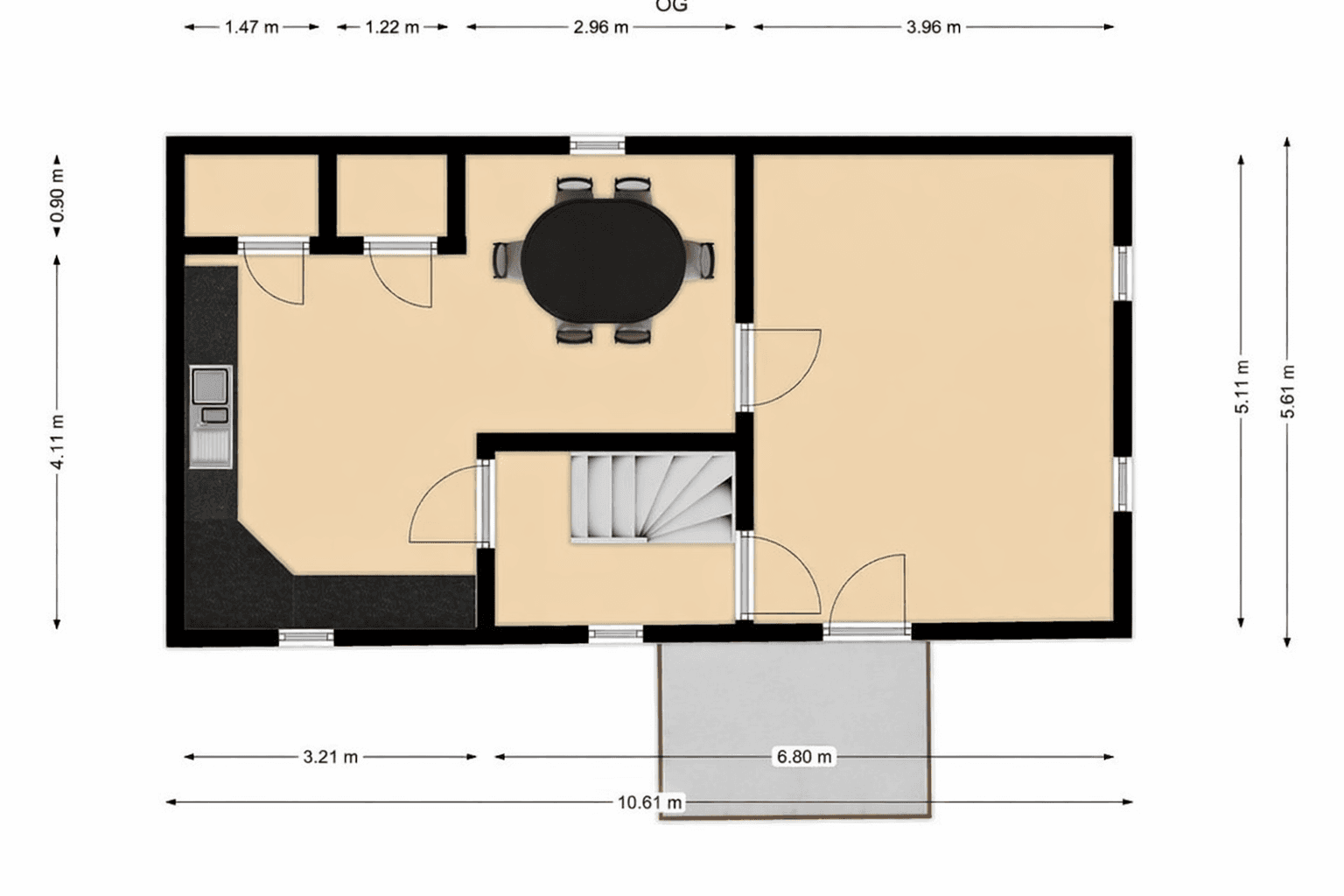
Dom sa rozprestiera na troch úrovniach (prízemie, poschodie a podkrovie) a ponúka obytnú plochu približne 107 m².
Nehnuteľnosť je ideálna pre rodiny, spolubývajúcich alebo páry s väčšími nárokmi na priestor, ktorí ocenia charakter vyvinutého dedinského jadra.
Objekt sa nachádza v Heskem, časti obce Ebsdorfergrund v okrese Marburg-Biedenkopf. Poloha spája pokojné bývanie vo vidieckom prostredí s dobrou dostupnosťou universitného mesta Marburg.
Obchody s potravinami a iné zariadenia pre každodenné potreby sú ľahko dostupné. Edeka sa nachádza približne 700 metrov od domu, ďalšie možnosti nákupu – vrátane Rewe obchodu v Dreihausen – sú dostupné v niekoľkých minútach jazdy.
Verejná doprava je veľmi dobre zabezpečená:
Autobusová zastávka je vzdialená len asi 80 metrov, autobusové nádražie je v dosahu približne 500 metrov. Odtiaľ sú pravidelné spoje smerom na Marburg a do okolitých častí obce.
Rodiny majú výhodu blízkosti verejných inštitúcií. Základná škola Ebsdorfergrund aj plavecký bazén sa nachádzajú približne 500 metrov od nehnuteľnosti.
Univerzitné mesto Marburg je dostupné približne 10–15 minútou jazdy autom a ponúka kompletnú infraštruktúru vrátane kliník, univerzity, maloobchodu, gastronómie a kultúrnych zariadení.
Okolie je charakterizované vyvinutou obytnou štruktúrou, tradičnými domami s drevenou konštrukciou a pokojným, susedským prostredím.
Dom je udržiavaný a pripravený na nastěhovanie. Pred novým prenájmom boli vykonané údržbové a renovačné práce.
Nehnuteľnosť disponuje centrálnym olejovým kúrením, dvoma kúpeľňami a funkčným rozložením rozprestierajúcim sa na troch úrovniach.
Spoločný vnútorný dvor spolu s ďalším sklepovým priestorom logicky rozširujú dispozíciu priestoru.
Objekt je okamžite nasťahovateľný a disponuje priestrannou zabudovanou kuchyňou.
Parametre nehnuteľnosti
| Dostupné od | 15. 3. 2026 |
|---|---|
| Dispozícia | 4+1 |
| Úžitková plocha | 107 m² |
| Stav | Dobrý |
|---|---|
| Číslo inzerátu | 996694 |
| Cena za jednotku | 7 € / m2 |
Čo táto nehnuteľnosť ponúka?
| Balkón | |
| MHD 1 minúta pešo |
| Pivnica |
V okolí nehnuteľnosti nájdete
Stále hľadáte to pravé?
Nastavte si strážneho psa. Ponuky vybrané na mieru dostanete súhrnne 1× denne e-mailom. S Premium profilom máte po ruke rovno 5 strážcov a keď sa niečo objaví, informujú vás obratom.















