Predaj domu 4+1 • 124 m² bez realitkyFREIBADNÄHE GRUNDSSTÜCK EXKLUSIV NUR FÜR DANWOOD-HAUSBAU Güssing Burgenland 7540
FREIBADNÄHE GRUNDSSTÜCK EXKLUSIV NUR FÜR DANWOOD-HAUSBAU Güssing Burgenland 7540MHD 2 minúty pešo • GarážKompaktný a premyslený – zázrak priestoru na malej dispozícii.
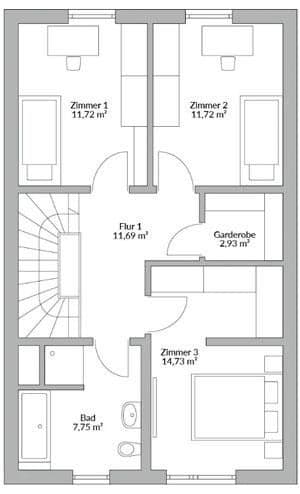
Napriek malej zastavanej ploche tento dom spĺňa všetky požiadavky moderného bývania. Kuchyňa má funkčné usporiadanie, technická miestnosť ponúka dostatok miesta pre domovú techniku a uskladnenie. Kúpeľňa je vybavená vaňou aj sprchou, navyše je k dispozícii aj hostinská toaleta. Chodba poskytuje priestranný priestor pre garderóbu, pričom detské izby a spálne ponúkajú dostatočné možnosti úložného priestoru. Obývacia a jedálenská časť zaujme veľkými oknami a otvorenými prechodmi, ktoré opticky zväčšujú priestor.
Ideálne pre tých, ktorí sa zameriavajú na podstatu vecí – bez kompromisov v komforte.
Na vašom pozemku alebo v...
Güssing: cca 2 600 m², poloha úplne rovná. Veľkosti aj polohy pozemkov možno vyberať podľa vlastného želania – od 500 m² do 1 500 m².
Tu sú stavebné pozemky prémiovej triedy! V najlepšej lokalite a s dychberúcim výhľadom na nádherný hrad Güssing!
Güssing ponúka budúcnosti bezpečný, dostupný a energeticky nezávislý život v prírode, čo robí investíciu do nehnuteľnosti tu strategickou hodnotovou investíciou.
Prečo Güssing
Energetický priekopník a udržateľnosť:
Mesto je energeticky sebestačné a medzinárodne uznávané.
Vysoké pokrytie (nad 85 %) regionálnym biomasy diaľkového kúrenia vedie k stabilným a výhodným nákladom na kúrenie.
Dostupné ceny nehnuteľností:
Ceny sú ešte výrazne priaznivejšie ako priemer v Rakúsku, čo umožňuje splnenie snov o vlastnom domove s priestrannými pozemkami.
Silná infraštruktúra a kvalita života:
Ako predmestie okresu zaručuje Güssing krátke vzdialenosti a najlepšie zázemie.
Plánované veľké investície:
Nový vzdelávací kampus a moderné lekárske centrum (od 2026).
Kultúrne centrum (hrad Güssing) a blízkosť termálnych kúpeľov.
Úplné spustenie S7 prinesie značné výhody pre Güssing a jeho obyvateľov:
• Rýchlejšie spojenie s metropolitnými oblasťami: Hlavná diaľnica výrazne skracuje dojazd na rýchlostnú cestu A2 (južná diaľnica), čím sa výrazne znižujú cestovné časy do Grazu a Viedne.
• Odľahčenie regiónu: Tranzitná doprava, ktorá predtým silno zaťažovala obce ako Fürstenfeld a Rudersdorf, bude smerovaná po novej trase.
• Hospodárske impulzy: Nové prepojenie, okrem iného cez pripojovací bod pri Rudersdorf/Dobersdorf a blízkosť spojenia s Königsdorfom, posilní Güssing ako predmestie okresu a hospodársku lokalitu vďaka lepšej dostupnosti a podpore nových obchodných parkov.
Hodnotová stabilita a rozvojový potenciál:
Cielené komunálne investície do infraštruktúry, revitalizácie centra mesta a technologického centra zaisťujú dlhodobú stabilitu hodnoty nehnuteľností.
Komunálna stratégia sa zameriava na zvládnutie demografických výziev a etablovanie Güssingu ako atraktívnej lokality pre bývanie aj podnikanie.
Cieľová skupina
Rodiny, ktoré hľadajú budúcnosť, bezpečnosť a prírodu, ako aj všetci, ktorí kladú dôraz na nízke náklady na energiu a ekologickú zodpovednosť.
Ďalšie pozemky v:
Pozemok, 8323 Kohldorf: Stavebný pozemok s množstvom slnka vo východnom štajerskom kopcovitom území, 15 km od Grazu!
Rozloha: 758 m² – kúpna cena: 66 000 €.
Pozemok, 8323 Kohldorf: Slnečný stavebný pozemok v Kohldorfe, 15 km východne od Grazu!
Rozloha: 787 m² – kúpna cena: 69 000 €.
Pozemok, 8311 Markt Hartmannsdorf: Úplne zrekonštruovaný a slnečný stavebný pozemok v Markt Hartmannsdorf.
Rozloha: 920 m² – kúpna cena: 53 000 €.
Pozemok, 9335 Lölling Graben: Stavebný pozemok s úžasným diaľkovým výhľadom na malebné pohorie Korutínska.
Rozloha: 1 001 m² – kúpna cena: 50 000 €.
Pozemok, 8075 Hart pri Graze: Slnečný pozemok pred bránami Grazu.
Rozloha: 1 980 m² – kúpna cena: 475 000 €.
Pozemok na predaj v Stainz: Slnečný pozemok na okraji mesta Stainz.
Rozloha: 825 m² – kúpna cena: 149 000 €.
Medzi vlastníkom pozemku a staviteľom domu neexistuje žiadne ekonomické prepojenie.
Technika
Technika, ktorá uľahčuje bývanie. Technologický balík Today 3AL kombinuje modernú technológiu tepelného čerpadla s ohrevnou zásobou teplej vody a inteligentným ventilačným systémom.
Výsledok: domov, ktorý sa automaticky stará o príjemnú vnútornú klímu – teplo v zime, sviežo v lete, efektívne po celý rok.
Podlahové kúrenie zabezpečuje príjemné teplo v každej miestnosti, zatiaľ čo centrálne vetranie s rekuperáciou tepla šetrí energiu a zároveň zabezpečuje stálu čerstvú vzduchovosť.
Ide o technologický balík, ktorý dokonale spája komfort, efektívnosť a budúcu istotu.
Elektrické žalúzie:
Žalúzie DANWOOD sú dokonalým doplnkom k energeticky efektívnej stavebnej metóde DANWOOD. Chránia pred horúčavou v lete, udržiavajú teplo v dome počas zimy a vždy zabezpečujú súkromie a bezpečnosť. S elektrickým ovládaním alebo inteligentným riadením ich možno používať pohodlne a intuitívne – komfort, ktorý oceníte každý deň.
Stručne povedané – u DANWOOD sú žalúzie voliteľné, ale technicky dokonale integrovateľné, elektrické, odolné a ideálne pre modernú architektúru.
Sanitárne zariadenie:
• Sklenená sprchová stena – bezpečná, pohodlná
• Zavesená toaleta – ľahko čistiteľná, hygienická
• Umývadlo
• Kvalitné batérie – odolné, ľahko ovládateľné, stabilné pri teplotách
• Voliteľne, podľa modelu:
– Vaňa – ideálna pre relax alebo spoločné večerné rituály
– Voliteľne dvojitý umývadlový pult – bez ranného zahltenia
– Zabudované batérie – bezpečné, elegantné, ľahko čistiteľné
Všetko je navrhnuté tak, aby uľahčilo každodenný život a zostalo dlho krásne.
Maľovacie práce:
Steny a stropy – pripravené na nasťahovanie. Všetky vnútorné steny a stropy sú realizované v štandarde "key-ready", čo znamená:
• Hladké, tmelované a obrúsené povrchy
• Biela finálna úprava kvalitnou disperznou farbou
• Čistý, rovnomerný vzhľad vo všetkých obytných priestoroch – DANWOOD dodáva hotový povrch
• Žiadne viditeľné spoje alebo prechody vďaka priemyselnej precíznosti
Tým je dom okamžite obývateľný bez potreby ďalších maliarskych prác.
Vinyl / Laminát / Obklady:
Obývacie a spálne – teplé, odolné, príjemné!
Všetky obývacie a spálne sú vybavené kvalitnými, nenáročnými podlahovými krytinami, ktoré spájajú teplo, komfort a praktickosť.
Standardné prevedenie (v závislosti od modelu):
• Kvalitná dizajnová vinylová podlaha v drevenom vzhľade
• Odolná, tichá, príjemná na dotyk
• Ideálna pre rodiny, domácich miláčikov a každodenné využitie
• Harmonické farebné odtiene (svetlý dub, prírodný dub, šedý dub – podľa výberu v Design Centre Pinkafeld)
Voliteľne:
• Laminát v prémiovej kvalite
• Parket z masívneho dreva (za príplatok)
Alternatívne dizajnové línie (betónový vzhľad, tmavý drevený vzhľad, teplé prírodné odtiene) DANWOOD
Poznámka: Všetky ceny domov sú uvádzané od hornej hrany základovej dosky. Obrázky môžu zobrazovať voliteľné špeciálne vybavenie.
Parametre nehnuteľnosti
| Stav | Novostavba |
|---|---|
| Číslo inzerátu | 996414 |
| Plocha pozemku | 1 m² |
| Cena za jednotku | 2 248 € / m2 |
| Dispozícia | 4+1 |
|---|---|
| Úžitková plocha | 124 m² |
| Celkové poschodia | 2 |
Čo táto nehnuteľnosť ponúka?
| Garáž |
| MHD 2 minúty pešo |
V okolí nehnuteľnosti nájdete
Stále hľadáte to pravé?
Nastavte si strážneho psa. Ponuky vybrané na mieru dostanete súhrnne 1× denne e-mailom. S Premium profilom máte po ruke rovno 5 strážcov a keď sa niečo objaví, informujú vás obratom.





















