Predaj domu 6+1 • 254 m² bez realitky, Dolné Sasko
, Dolné SaskoMHD 1 minúta pešo • Parkovanie • GarážTento v roku 2020 masívne postavený rodinný dom ponúka priestranný obytný priestor pre rodiny, home office a flexibilné životné koncepty.
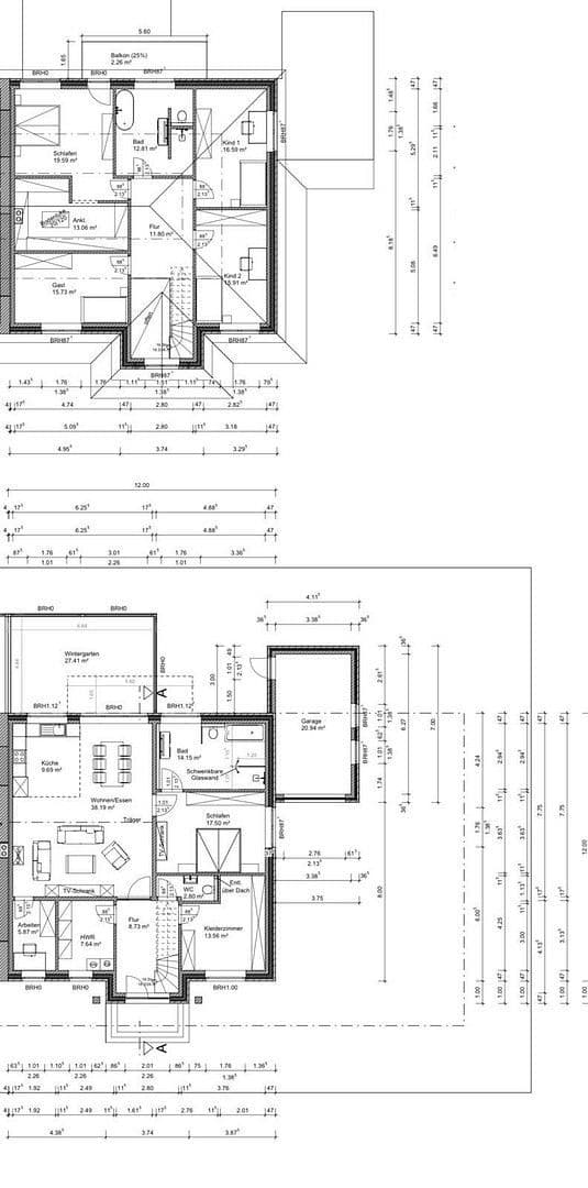
Otvorený obývací a jedálenský priestor s podlahovými oknami tvorí srdce domu a vytvára svetlú, prívetivú atmosféru. Pripojená zimná záhrada výrazne rozširuje obytný priestor a poskytuje chránený úkryt s výhľadom do záhrady.
Špeciálnym plusom je samostatná spálňa v prízemí – ideálna ako izba pre hostí, kancelária alebo pre bezbariérové bývanie. Dom preto dlhodobo ponúka vysokú flexibilitu.
V hornom poschodí sa nachádzajú štyri ďalšie spálne a priestranný balkón s výhľadom na pokojné obytné prostredie. Dve moderné kúpeľne a samostatné toaletné zariadenie pre hostí zabezpečujú komfort v každodennom živote.
Nehnuteľnosť je okamžite k dispozícii a je ideálna pre rodiny, ktoré chcú spojiť moderné bývanie s energetickou efektívnosťou.
Vybavenie presvedčí v každom detaile:
• Rok výstavby: 2020
• KfW-55 štandard
• Podlahové kúrenie v celom dome
• Trojsklenené Schüco-okná
• Masívna výstavba s veľmi dobrým zateplením
• Kvalitné podlahové krytiny
• Granit vo vstupnej oblasti
• Krb
• Zimná záhrada
• Terasa a záhrada
• Balkón na hornom poschodí
Na požiadanie je možné za príplatok prebrať aj vstavanú kuchyňu a kvalitný vstavaný nábytok – ideálne pre kupujúcich, ktorí hľadajú okamžite nasťahovateľný domov.
Tento dom spája komfort, funkčnosť a estetiku na najvyššej úrovni – domov, ktorý vytvára hodnoty a ponúka kvalitu života.
Nehnuteľnosť sa nachádza v pokojnej a žiadanej obytné oblasti Bissendorf pri Osnabrück, jednej z najobľúbenejších lokalít v regióne Osnabrück. Tu si môžete vychutnať výhody moderného životného štýlu uprostred zelenej, rodinne prívetivej obce.
Obchody, školy, materské školy a zdravotnícka starostlivosť sú v bezprostrednej blízkosti. Vďaka dobromu dopravnému spojeniu sa vám Osnabrück a okolitá mestá dostanú rýchlo a pohodlne cez diaľnicu A30 alebo cestu B51.
Poloha v Bissendorfe poskytuje pozemku jedinečnú atmosféru – tu sa stretáva pokoj, príroda a štýlové bývanie. Udržiavané prostredie, pokojná susedská komunita a blízkosť k prechádzkam a prírode robia tento domov obzvlášť atraktívnym pre náročné rodiny a páry.
– Rok výstavby: 2020
– Obytná plocha: cca 254 m²
– Pozemok: cca 510 m²
– Izby: 6 (z toho 5 spální)
– Konštrukcia: masívna výstavba, KfW-55
– Predajná cena: 769.000 €
– Vstavaná kuchyňa a nábytok: na požiadanie za príplatok
Parametre nehnuteľnosti
| Vek | Nad 50 rokov |
|---|---|
| Stav | Veľmi dobrý |
| Číslo inzerátu | 996383 |
| Plocha pozemku | 510 m² |
| Cena za jednotku | 3 028 € / m2 |
| Dostupné od | 14. 3. 2026 |
|---|---|
| Dispozícia | 6+1 |
| Úžitková plocha | 254 m² |
| Celkové poschodia | 2 |
Čo táto nehnuteľnosť ponúka?
| Balkón | |
| Garáž | |
| MHD 1 minúta pešo |
| Bezbariérový prístup | |
| Parkovanie | |
| Terasa |
V okolí nehnuteľnosti nájdete
Stále hľadáte to pravé?
Nastavte si strážneho psa. Ponuky vybrané na mieru dostanete súhrnne 1× denne e-mailom. S Premium profilom máte po ruke rovno 5 strážcov a keď sa niečo objaví, informujú vás obratom.








