Predaj domu 4+1 • 119 m² bez realitky, Brandenbursko
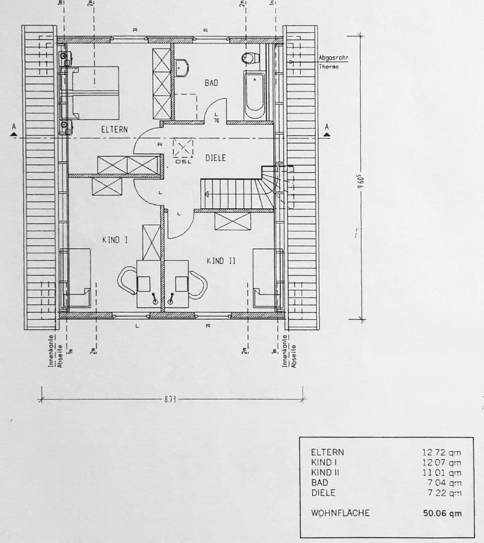
, BrandenburskoMHD 1 minúta pešo • ParkovanieNa predaj je udržiavaný rodinný dom s celkovou hrubou / využiteľnou plochou 165,84 m² (z toho cca 28,89 m² podlahovateľného podkrovia) a cca 118,77 m² obytného priestoru, nachádzajúci sa na rohovom pozemku s 520 m² v Bernau Friedenstal.
Vybrané výhody nehnuteľnosti:
• Rohový pozemok s 520 m², úplne oplotený s kovovým mrežovým plotom a fóliou na ochranu súkromia
• Fotovoltaická elektráreň (vlastníctvo) s 64 panelmi a 3 meničmi (13,2 kWp) – s atraktívnou odmenou za dodávanie elektriny až do roku 2030 (mesačná výplata); pravý menič v technickej miestnosti bol opravený v novembri 2023
• Kompletně zrekonštruovaná elektrická inštalácia (2019) vrátane multimedialého vybavenia v každej izbe a prípravou na inštaláciu silnoproudového obvodu pre ostrovku v kuchyni
• 4 izby, moderná kúpeľňa so sprchou a rohovou vaňou; podlahové vykurovanie (s pripojením radiátora) a hosťovské WC (modernizované v roku 2022)
• Obývacia a jedálenská izba s krbovým kachľovým ohrievačom a komínom (december 2022)
• Podlahovateľné podkrovia s elektrickou prípojkou a novým strešným oknom (2023)
• Podlahy: laminát so zásahovými lištami, dlaždice v kuchyni, na chodbe, v hosťovskom WC a kúpeľni
• Energeticky úsporné dvojsklové izolačné okná
• Plynový kotol (2001) funguje bez problémov (vymenená obetná anóda v roku 2019, vymenený tepelnej výmenník v roku 2021)
• Optické vlákno s pripojením s rýchlosťou až 1000 Mbit/s (2021)
Exteriér:
• Masívny drevený karport pre 2 autá so zapojením elektriny
• 2 ďalšie parkovacie miesta na prístupe
• 7,7 m² veľký psí kútik, momentálne využívaný ako sklad
• 8,56 m² masívny prístrešok
• Zapustená vodná cisterna s kapacitou 6000 litrov
• Detský domček s pieskoviskom
• 20,4 m² terasa s markízou
• Vonkajšie pripojenie vody s vlastným meračom
• Rôzne vyvýšené záhony pre záhradkárov
A nezabudnite, priateľskí a rodinorientovaní susedia!
Dom sa nachádza v Bernau, v dopravne výhodnej lokalite, cca 10 minút pešo od linky S-Bahn S2. Materské škôlky, školy a obchody sú pešo dostupné – ideálne pre rodiny a dojíždzaných.
Dôležitá poznámka: Súkromný predaj – nežiadajú sa dopyty zo strany maklérov. Prosím, zdržte sa kontaktovania od maklérov alebo ich zástupcov.
Parametre nehnuteľnosti
| Vek | Nad 50 rokov |
|---|---|
| Dispozícia | 4+1 |
| PENB | C - Hospodárne |
| Plocha pozemku | 520 m² |
| Cena za jednotku | 5 252 € / m2 |
| Stav | Dobrý |
|---|---|
| Číslo inzerátu | 996359 |
| Úžitková plocha | 119 m² |
| Celkové poschodia | 1 |
Čo táto nehnuteľnosť ponúka?
| Parkovanie | |
| Terasa |
| MHD 1 minúta pešo |
V okolí nehnuteľnosti nájdete
Stále hľadáte to pravé?
Nastavte si strážneho psa. Ponuky vybrané na mieru dostanete súhrnne 1× denne e-mailom. S Premium profilom máte po ruke rovno 5 strážcov a keď sa niečo objaví, informujú vás obratom.














