Predaj domu • 161 m² bez realitkyHafenstraße 1, , Meklenbursko-Predpomoransko
Hafenstraße 1, , Meklenbursko-PredpomoranskoMHD 4 minúty pešo • ParkovaniePozemok snov priamo na brehu Teterower Peene s približne 30 m súkromného prístupu k vode.
Lodný domček je vhodný pre člny do cca 6,00 m dĺžky a do cca 2,50 m šírky, pričom obsahuje aj obytný priestor.
Ak milujete prírodu, vyrazte zo svojho lodného domčeka s pádlovou loďou proti prúdu, kde môžete zažiť stretnutie s riekavmi, volavkami či kormoránmi.
Pre rybárov je tu možnosť rybolovu priamo z pozemku, alebo opustiť lodný domček s rybárskou loďou (vrátane prívesu k preprave po ceste, ktorý je súčasťou ponuky) smerom k jazeru Kummerower.
Ak máte radi dlhé plavby, opustite svoj lodný domček s prípadnou kabínkovou loďou, ktorá môže byť aj umiestnená vo vnútri domčeka. Cez rieku Peene sa potom dostanete do Baltského mora – napríklad v zadnej časti vody na brehu ostrova Usedom, do prístavov Krummin alebo Zinnowitz.
Aj keď nie ste nadšencom pre lodnú dopravu, táto nehnuteľnosť je ideálna aj ako budúce dôchodkové bývanie.
Rodinný dom (nie je chránený ako pamiatka):
Postavený ako jednofamilový dom pre prvého prístavného správcu mesta Neukalen.
Zv exterior bol značne zrekonštruovaný; v roku 2011 bol postavený nový rám strechy a nová strešná krytina.
Interiér ešte nie je dokončený, ale čiastočne obývaný. Je vykurovaný veľkou keramickou pecou a moderným krbovým sporákom.
Je možnosť inštalácie solárneho systému pre vykurovanie. Energetický preukaz bol podaný.
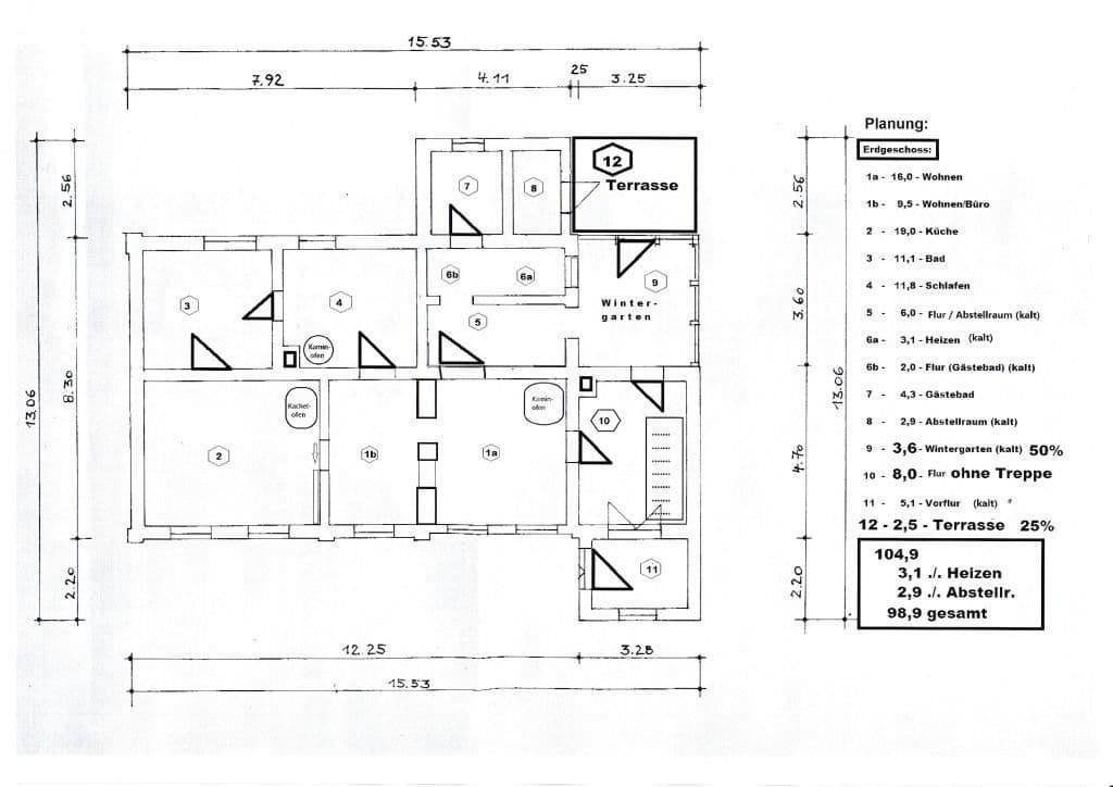
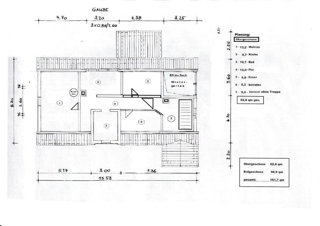
Plán rodinného domu (celkovo cca 161 m²):
– Prízemie: cca 99 m² podľa priloženého pôdorysu.
– Poschodie: cca 62 m² podľa priloženého pôdorysu, plánované ako rekreačný byt.
Nachádza sa v meste Neukalen na rieke Peene (pozrite internet) priamo pri Teterower Peene.
V okolí sú dostupné nákupné možnosti, ambulancia, lekáreň a sporiteľňa.
Máte tiež k dispozícii niekoľko spolkov a dobrovoľnú hasičskú službu.
Mestá ako Rostock, Stralsund, Greifswald alebo ostrov Rügen sú dosiahnuteľné približne do 1 hodiny autom.
Fotografie miesta a ponúkanej nehnuteľnosti nájdete na internete – fotograf Berthold Brinkmann z Rostocku uverejnil pekné snímky v sekcii bertbrink, fotografie I, letecké snímky, júl 2021 Neukalen.
Parkovacie miesta pre vozidlá:
• 2x osobné autá v dvojitom carport,
• 1x miesto pre obytný automobil,
• 1x zimné parkovacie miesto pre príves a loď.
Parametre nehnuteľnosti
| Vek | Nad 50 rokov |
|---|---|
| Číslo inzerátu | 996309 |
| Plocha pozemku | 720 m² |
| Cena za jednotku | 2 453 € / m2 |
| Stav | Pred rekonštrukciou |
|---|---|
| Úžitková plocha | 161 m² |
| Celkové poschodia | 2 |
Čo táto nehnuteľnosť ponúka?
| Parkovanie | |
| Terasa |
| MHD 4 minúty pešo |
V okolí nehnuteľnosti nájdete
Stále hľadáte to pravé?
Nastavte si strážneho psa. Ponuky vybrané na mieru dostanete súhrnne 1× denne e-mailom. S Premium profilom máte po ruke rovno 5 strážcov a keď sa niečo objaví, informujú vás obratom.


















