
Predaj domu 5+1 • 110 m² bez realitkyOsterfeuerbergstr. 24 Bremen Walle Bremen 28219
Tento starý bremský radový dom zaujme klasickou, funkčnou dispozíciou a bol počas rokov opakovane renovovaný.
Radový dom je flexibilne využiteľný, či už ako spolubývanie, viacgeneračné bývanie alebo jednoducho pre väčšie rodiny! Dispozícia ponúka mnoho možností:
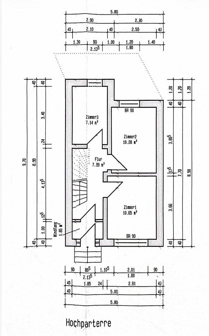
Prízemie: 2 izby plus kuchyňa, kúpeľňa a vstup do malej záhrady
Horné poschodie: 2 izby plus kuchyňa, kúpeľňa a strešná terasa (10 m²)
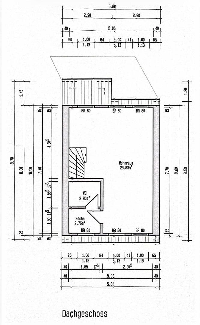
Podkrovie: veľký obývací priestor (takmer 30 m²) s kúpeľňou a kuchynským kútom
Okrem toho má dom čiastočný suterén!
Celková obytná plocha je približne 120 m² (vrátane 10 m² strešnej terasy)
Vybavenie a stav
Podľa energetického preukazu pochádza plynové kúrenie z roku 2002.
Okna sú prevažne drevené z roku 1988, pričom niektoré boli už nahradené plastovými oknami.
Nehnuteľnosť je udržiavaná, avšak celkovo v stave vyžadujúcom renováciu. V závislosti od požiadaviek a využívacieho konceptu je potrebné počítať s modernizačnými a renovačnými prácami. To dáva kupujúcim možnosť prispôsobiť a zhodnotiť dom podľa vlastných predstáv.
Špecifiká
• Flexibilné možnosti využitia (rodinný dom, dvojdom, spolubývanie, viacgeneračné bývanie)
• S minimálnou stavebnou úpravou je možné využiť aj ako dve samostatné obytné jednotky
• Atraktívny pre kapitálových investorov (napr. spolubývanie alebo študentské bývanie)
• Bez poplatkov makléra – predaj priamo od súkromnej osoby
Lokalita domu sa nachádza v zóne s rýchlosťou 30 km/h, avšak stále centrálna. Verejná doprava, možnosti nákupu a školy sú dostupné pešo za pár minút.
Parametre nehnuteľnosti
| Vek | Nad 50 rokov |
|---|---|
| Dispozícia | 5+1 |
| PENB | G - Mimoriadne nehospodárne |
| Plocha pozemku | 103 m² |
| Cena za jednotku | 2 682 € / m2 |
| Dostupné od | 4. 3. 2026 |
|---|---|
| Číslo inzerátu | 996247 |
| Úžitková plocha | 110 m² |
| Celkové poschodia | 3 |
Čo táto nehnuteľnosť ponúka?
| Pivnica | |
| Terasa |
| MHD 2 minúty pešo |
V okolí nehnuteľnosti nájdete
Stále hľadáte to pravé?
Nastavte si strážneho psa. Ponuky vybrané na mieru dostanete súhrnne 1× denne e-mailom. S Premium profilom máte po ruke rovno 5 strážcov a keď sa niečo objaví, informujú vás obratom.
















