
Predaj domu 7+1 • 155 m² bez realitky, Bádensko-Wurttembersko
, Bádensko-WurttemberskoMHD 2 minúty pešo • Parkovanie • GarážTento udržiavaný a komplexne zmodernizovaný rodinný dom zaujme svojou priestrannou dispozíciou, rozmanitými možnosťami využitia a harmonickým obytným prostredím v tichej lokalite. Pôvodne postavený v roku 1954, bol dom počas rokov priebežne rekonštruovaný a dnes sa prezentuje vo veľmi dobrom celkovom stave so súčasným obytným komfortom.
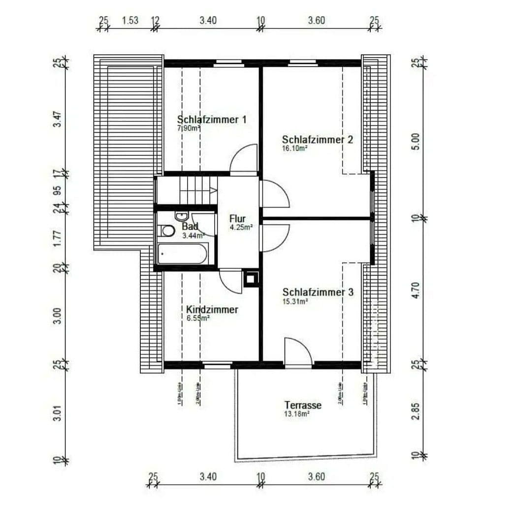
Na obytnej ploche približne 155 m² sa celkovo rozprestiera sedem dobre navrhnutých izieb rozložených do dvoch obytných podlaží. Nehnuteľnosť tak ponúka dostatok priestoru pre rodiny, viacgeneračné bývanie alebo kombináciu bývania a práce pod jednou strechou. Už pri vstupe do domu vás privíta príjemná predsieň, z ktorej sú prístupné všetky miestnosti prízemia.
Srdcom domu je priestranný obývací a jedálenský priestor s príjemným množstvom svetla a priamym vstupom do exteriéru. Veľké okná vytvárajú priateľskú atmosféru a harmonicky spájajú vnútorný a vonkajší priestor. Túto úroveň dopĺňa funkčná kuchyňa s jedálenským kútom a ďalšie flexibilne využiteľné miestnosti, ktoré sa ideálne hodia ako spálňa, izba pre hostí alebo domáca kancelária.
Na hornom podlaží sa nachádza niekoľko spálň s útulným charakterom a ďalšia kúpeľňa. Šikmé strechy dodávajú izbám mimoriadne domácku atmosféru a zároveň zabezpečujú individuálny pocit priestoru. Celkovo sú k dispozícii štyri spálne, čo robí dom ideálnym pre rodiny s deťmi.
Podzemie ponúka dodatočné využiteľné priestory ako aj zrekonštruovanú časť, ktorá je momentálne využívaná ako fitness miestnosť. Okrem klasických pivničných a úložných priestorov sa tu otvára ďalší potenciál pre koníčky, voľnočasové aktivity alebo dodatočné úložisko.
Pozemok s rozlohou približne 412 m² je navrhnutý s minimálnou údržbou a ponúka nielen dostatočné parkovacie miesta, ale aj atraktívne vonkajšie priestory na oddych a relaxáciu. Veľká terasa v prízemí so strechou, rovnako aj ďalšia terasa na hornom podlaží s elegantnou pergolou, rozširujú obytný priestor do exteriéru a umožňujú slnečné chvíle v súkromí domova.
Tento atraktívny záber je doplnený o dve garáže a ďalšie parkovacie miesta priamo pri dome. Nehnuteľnosť je ideálna pre kupujúcich, ktorí hľadajú domov s veľkým priestorom a možnosťami rozvoja.
Ponúkaná nehnuteľnosť sa nachádza v žiadanej lokalite Brackenheim v okrese Heilbronn, obľúbenom meste s vysokou kvalitou života a vynikajúcou infraštruktúrou. Okolie je charakterizované udržiavanými rodinnými domami, pokojnými ulicami a rodinne prívetivým susedstvom a ponúka ideálnu kombináciu bývania blízko prírody s dobrou dostupnosťou susedných miest.
Brackenheim je považovaný za atraktívnu oblasť na bývanie v hospodársky silnej regióne Heilbronn-Franken. Mesto spája vidiecku idylku s blízkosťou mestského prostredia a ponúka všetky zariadenia každodenných potrieb v pohodlnej vzdialenosti. Obchody, pekárne, lekárne, ordinácie a gastronomické zariadenia sú dostupné v priebehu niekoľkých minút.
Najvýraznejšou výhodou je vynikajúca infraštruktúra pre rodiny. Školky, základné školy a stredné školy sa nachádzajú priamo v blízkosti a čiastočne sú pohodlne dosiahnuteľné pešo alebo na bicykli. Mnohé možnosti voľnočasových aktivít, športové kluby a rekreačné oblasti prispievajú navyše k vysokej hodnote bývania.
Okolitá vinica a zelené plochy pozývajú na prechádzky, cykloturistiku či športové aktivity v prírode. Súčasne majú dochádzajúci pracovníci prospech zo dobrej dopravnej dostupnosti smerom na Heilbronn, Ludwigsburg a Stuttgart. Vďaka blízkosti štátnych ciest a diaľničných prípoj sú regionálne hospodárske centrá rýchlo dosiahnuteľné.
Verejná doprava je taktiež dobre rozvinutá a zabezpečuje spoľahlivé spojenie do okolitých miest a obcí. Táto lokalita sa tak hodí nielen pre dochádzajúcich pracujúcich, ale aj pre rodiny, ktoré chcú kombinovať pokojné bývanie s dobrou dostupnosťou.
Samotná obytná oblasť sa vyznačuje príjemným kľudom bez priechodovej premávky. Zároveň majú obyvatelia prospech z krátkych vzdialeností ku všetkým dôležitým zariadeniam. Táto vyvážená kombinácia robí lokalitu obzvlášť atraktívnou pre dlhodobé bývanie a udržateľnú hodnotovú stabilitu nehnuteľnosti.
Rodinný dom zaujme rozsiahlym a udržiavaným vybavením, ktoré spĺňa moderné požiadavky na bývanie a umožňuje komfortné bývanie bez väčších rekonštrukčných prác. V rámci rôznych modernizačných opatrení bola nehnuteľnosť priebežne udržiavaná a prispôsobovaná súčasným štandardom.
Ohrievanie sa zabezpečuje prostredníctvom centrálneho kúrenia s plynom ako hlavným energetickým zdrojom, čo zaručuje efektívne a spoľahlivé zásobovanie teplom. Použité plastové okná spolu so solídnou stavebnou konštrukciou prispievajú k príjemnému vnútornému podnebiu a dobrej energetickej efektívnosti.
V obývacích a spálňových priestoroch boli prevažne položené moderné laminátové podlahy, ktoré vytvárajú útulnú atmosféru a zároveň sú nenáročné na údržbu a odolné. Kuchynské a kúpeľňové priestory sú obložené dlažbou a poskytujú funkčný aj nadčasový vzhľad.
Najvýraznejšou črtou je priestranný obývací priestor s priamym vstupom na terasu a do záhrady. Tento vonkajší priestor výrazne rozširuje obytný komfort a ponúka ideálne podmienky pre rodinný život, voľnočasové aktivity alebo spoločenské večery vonku. K dispozícii je aj balkon, ktorý poskytuje dodatočné možnosti útočišťa v exteriéri.
Dom disponuje dvoma plnohodnotnými kúpeľňami, čo poskytuje vyšší dennodenný komfort aj pre rozsiahlejšie rodiny. Ako doplnok ponúka podzemie viacúčelové priestory, vrátane vybaveného fitness centra, úložných priestorov a tradičných pivničných priestorov.
Krb v obývacej izbe vytvára navyše príjemnú atmosféru a zvyšuje hodnotu bývania najmä v zimných mesiacoch. Dostupná terasa a záhradný priestor ponúkajú rozmanité možnosti využitia – od oddychu až po individuálne záhradné úpravy.
Pre vozidlá sú k dispozícii dve garáže a ďalšie vonkajšie parkovacie miesta, čím je zabezpečený dostatočný počet parkovacích miest. Udržiavaný celkový stav nehnuteľnosti umožňuje rýchly sťahovací proces bez nutnosti rozsiahlych investícií.
Celkovo sa vybavenie domu prezentuje premyslene, rodinne prívetivo a funkčne, pričom sa úspešne spája komfort, dostatok priestoru a kvalita bývania.
Parametre nehnuteľnosti
| Vek | Nad 50 rokov |
|---|---|
| Dispozícia | 7+1 |
| Úžitková plocha | 155 m² |
| Celkové poschodia | 2 |
| Stav | Po rekonštrukcii |
|---|---|
| Číslo inzerátu | 996209 |
| Plocha pozemku | 412 m² |
| Cena za jednotku | 3 542 € / m2 |
Čo táto nehnuteľnosť ponúka?
| Balkón | |
| Garáž | |
| MHD 2 minúty pešo |
| Pivnica | |
| Parkovanie | |
| Terasa |
V okolí nehnuteľnosti nájdete
Stále hľadáte to pravé?
Nastavte si strážneho psa. Ponuky vybrané na mieru dostanete súhrnne 1× denne e-mailom. S Premium profilom máte po ruke rovno 5 strážcov a keď sa niečo objaví, informujú vás obratom.
































