
Predaj garáže • 13 m² bez realitkyTáborská, Černošice - Černošice, Středočeský kraj
Táborská, Černošice - Černošice, Středočeský krajGarážCena559 999 CZKUšetríte 100 000 CZK659 999 CZK
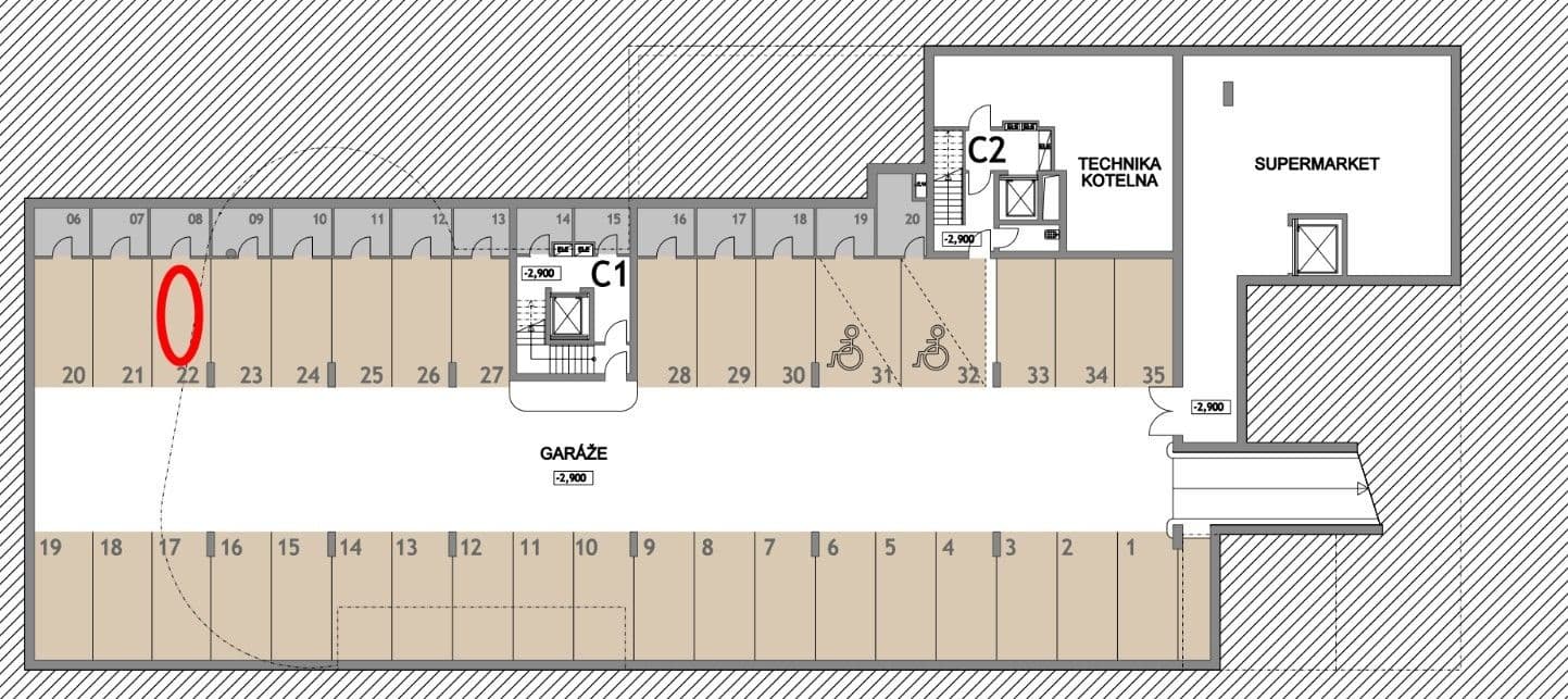
Nabízím ke koupi garážové stání, která splňuje veškeré požadavky na kvalitní a spolehlivý prostor pro vaše vozidlo. Stání se nachází v podzemí budovy (-1 patro) na ulici Táborská v Černošicích a je ve velmi dobrém stavu. V případě zájmu o bližší informace a domluvení termínu prohlídky mě neváhejte kontaktovat.
Parametre nehnuteľnosti
| Dostupné od | 1. 3. 2026 |
|---|---|
| Konštrukcia budovy | Tehla |
| Číslo inzerátu | 996187 |
| PENB | C - Hospodárne |
| Plocha garáže | 13 m² |
| Stav | Veľmi dobrý |
|---|---|
| Vybavené | Nevybavené |
| Vlastníctvo | Osobné |
| Poloha nehnuteľnosti | V bloku |
| Cena za jednotku | 43 076,85 CZK / m2 |
Čo táto nehnuteľnosť ponúka?
| Garáž |
V okolí nehnuteľnosti nájdete
Vzdialenosť k:
Cena559 999 CZKUšetríte 100 000 CZK659 999 CZK
Stále hľadáte to pravé?
Nastavte si strážneho psa. Ponuky vybrané na mieru dostanete súhrnne 1× denne e-mailom. S Premium profilom máte po ruke rovno 5 strážcov a keď sa niečo objaví, informujú vás obratom.




