
Predaj domu 4+kk • 110 m² bez realitkyÚjezd - Újezd u Uničova, Olomoucký kraj
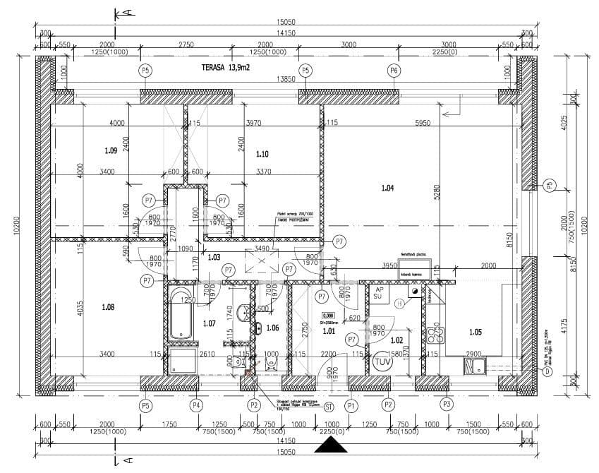
Nabízíme k prodeji novostavbu RD situovanou v obci Újezd, místní části Rybníček. Jde o kvalitní, dokončený, moderní, cihlový, samostatně stojící dům s užitnou plochou 110 m² a dispozicí 4+kk, prostorným půdním prostorem a velkou krytou terasou, pro komfortní bydlení (viz. přiložený půdorys) s ideální orientací zahrady na jihozápad. Novostavba je aktuálně v procesu kolaudace.
Pozemek má plochu 800 m² a dvě parkovací stání pro osobní automobily. Energetická třída A (kategorie mimořádně úsporná) znamená velmi nízkou spotřebu energie. Díky těmto parametrům můžete v dlouhodobém horizontu očekávat úsporu na energiích. Vytápění je řešeno tepelným čerpadlem a teplovodním podlahovým topením. Výměnu vzduchu zajišťuje větrání s rekuperací tepla.
Dojezdová vzdálenost od Olomouce je 22 km, od Litovle 15 km, od Šternberka 9 km a od Uničova 6 km.
Uvedená cena za nemovitost je včetně pozemku, zhotovených zpevněných ploch (nájezdy, chodníčky) a oplocení.
Kontaktujte nás na uvedeném telefonním čísle nebo e-mailu. Podrobné informace a fotografie na: rdrybnicek.cz
Nemáme zájem o žádnou formu zprostředkování prodeje.
Nepřejeme si být kontaktováni realitními kancelářemi.
Parametre nehnuteľnosti
| Dostupné od | 1. 3. 2026 |
|---|---|
| Konštrukcia budovy | Tehla |
| Vybavené | Nevybavené |
| Nízkoenergetická | Áno |
| PENB | A - Mimoriadne úsporné |
| Úžitková plocha | 110 m² |
| Cena za jednotku | 79 909 CZK / m2 |
| Stav | Novostavba |
|---|---|
| Dispozícia | 4+kk |
| Číslo inzerátu | 996096 |
| Vlastníctvo | Osobné |
| Poloha domu | Samostatný |
| Plocha pozemku | 800 m² |
Čo táto nehnuteľnosť ponúka?
| Parkovanie |
| Terasa 14 m² |
V okolí nehnuteľnosti nájdete
Stále hľadáte to pravé?
Nastavte si strážneho psa. Ponuky vybrané na mieru dostanete súhrnne 1× denne e-mailom. S Premium profilom máte po ruke rovno 5 strážcov a keď sa niečo objaví, informujú vás obratom.












