Predaj domu 7+1 • 209 m² bez realitky, Bádensko-Wurttembersko
, Bádensko-WurttemberskoMHD 5minút autom • Parkovanie • GarážExkluzívny rodinný dom v idylickej lokalite na okraji lesa
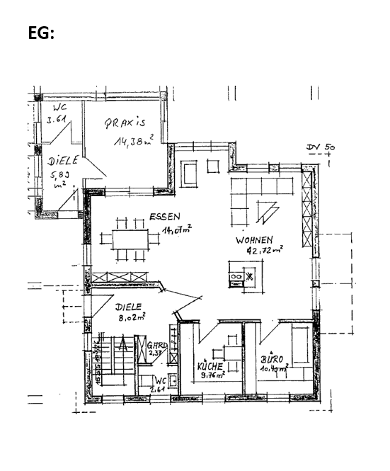
- Bez provízie - Tento výnimočný rodinný dom (vrátane prístavby priestoru pre ordináciu) spája vysoko kvalitné bývanie s mnohostrannými možnosťami využitia a nachádza sa idylicko na okraji lesa – ideálna kombinácia pokoja, prírody a moderného komfortu.
Napriek tomu ponúka nehnuteľnosť výborné dopravné spojenie na diaľnicu A81 a cestu B27. Stuttgart, Freiburk, Friedrichshafen a dokonca aj Zürich dosiahnete do 1,5 hodiny. Ideálne pre dojíždzaných pracovníkov alebo aj pre samostatne zárobkovo činných.
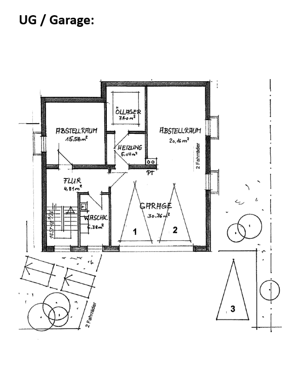
Rodinný dom zaujme premyslenou architektúrou a kvalitným vybavením. V dome sa nachádzajú tri integrované parkovacie miesta, doplnené tromi ďalšími parkovacími miestami pred budovou.
Otvorný obývací priestor upúta nová, moderná kuchyňa, útulný kachľový pec/ základná pec, ktorá poskytuje príjemné teplo. Vzácne masívne drevené parkety podčiarkujú exkluzívny charakter domu. Elektrické žalúzie vo všetkých relevantných častiach dodávajú ďalší komfort. Na hornom poschodí bol položený štýlový mozaikový parket. Okrem toho sa tu nachádza aj balkón, ktorý je prístupný z dvoch izieb.
Kúpeľňa je vybavená podlahovým kúrením a ponúka nádherný výhľad, ktorý vás pozýva k oddychu. Dva elegantné štýlové výstuže strechy a kvalitné glazované strešné tehličky dodávajú domu elegantnú strešnú líniu.
Osobitým lákadlom je prístavba priestoru pre ordináciu so samostatným vstupom, ktorá bola postavená v roku 2021. Veľké výklenky do okien otvárajú pohľad do zelene a umožňujú plynulé prepojenie interiéru s exteriérom. Bezprostredná lokalita na okraji lesa zaručuje pokoj, súkromie a výnimočnú kvalitu života – pôžitok z prírody priamo pred dverami.
Najmodernejšie vybavenie s dvoma posuvnými dverami od podlahy po strop, podlahovým kúrením a inteligentnou smart-home technológiou sa tak ideálne hodí pre ordináciu, zimnú záhradu, alebo aj kanceláriu.
Celý tento jedinečný koncept dotvára starostlivo navrhnutá vonkajšia záhrada so tromi terásami, ktoré ponúkajú počas celého dňa slnko alebo tieň a dokonale zvýrazňujú úchvatný výhľad do zelene.
Dom pre najvyššie požiadavky – ideálny pre rodiny, samostatne zárobkovo činných alebo pre tých, ktorí chcú štýlovo spojiť bývanie a prácu.
Obytná plocha: 209 m³
Prevádzková plocha: Sklad oleja/ kúrenie: 12 m³
Príslušenstvo garáže/ úložný priestor/ práčovňa: 72,70 m³
Parametre nehnuteľnosti
| Vek | Nad 50 rokov |
|---|---|
| Dispozícia | 7+1 |
| Úžitková plocha | 209 m² |
| Celkové poschodia | 2 |
| Stav | Dobrý |
|---|---|
| Číslo inzerátu | 995940 |
| Plocha pozemku | 703 m² |
| Cena za jednotku | 3 565 € / m2 |
Čo táto nehnuteľnosť ponúka?
| Balkón | |
| Garáž | |
| MHD 5 minút autom |
| Pivnica | |
| Parkovanie | |
| Terasa |
V okolí nehnuteľnosti nájdete
Stále hľadáte to pravé?
Nastavte si strážneho psa. Ponuky vybrané na mieru dostanete súhrnne 1× denne e-mailom. S Premium profilom máte po ruke rovno 5 strážcov a keď sa niečo objaví, informujú vás obratom.






















